中铁·咏月台(官方售楼处) 官网最新发布 - 中铁·咏月台销售中心 - 环境 - 户型 - 价格 - 地址 - 楼盘详情 - 电话 - 配套- 电话 - 交房时间
扫描到手机,新闻随时看
扫一扫,用手机看文章
更加方便分享给朋友
苏州【中铁永月台】
🔵 售楼处电话☑️☑️400-033-1899转接5888【24小时在线,周末无休】【官方已认证】
🔵 营销中心电话☑️☑️400-033-1899转接5888【24小时在线,周末无休】【官方已认证】
🔵 开发商营销中心-----欢迎来电预约尊享折扣-----匠心钜制恭迎品鉴


中铁·咏月台坐落于吴中城南板块,为全市率先落实住宅新规的住宅项目,拟建3栋4层叠加别墅与5栋10-11层洋房,主打低密改善型产品。

外立面以大面积玻璃和金属线条为主,现代简洁风,整体营造出通透轻盈的视觉感受。



首层全架空车库这一创新设计,大大提升了居住体验感。
1、全天候无雨归家:业主车辆经架空层车库,通过垂直电梯直达入户大堂,全程规避风雨,践行人车分流。

2、零坡道平层入户:车库平进平出设计,消除陡坡隐患,归家动线视野开阔,安全性与体验感同步提升。

3、阳光景观车库:革新性将车库地面化、景观化,使其成为社区景观的一部分。

4、低楼层视野提升:二层住宅与地面距离提升约5米,不仅可以让低楼层住户获得更开阔的视野,还能大大提升社区沿街界面整体形象。

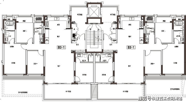
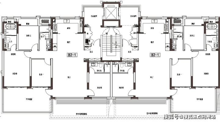
产品方面,全系四房起步。叠加别墅建面约176-192㎡、四代宅洋房建面约162-164㎡、洋房建面约132㎡。(具体面积段以开发商公示为准)
四代宅洋房产品:户户标配约25-35㎡空中庭院。奇数层庭院与客厅、次卧相连,偶数层庭院衔接主卧与次卧。
5# 四代宅洋房户型图:


苏州【中铁永月台】
🔵 售楼处电话☑️☑️400-033-1899转接5888【24小时在线,周末无休】【官方已认证】
🔵 营销中心电话☑️☑️400-033-1899转接5888【24小时在线,周末无休】【官方已认证】
🔵 开发商营销中心-----欢迎来电预约尊享折扣-----匠心钜制恭迎品鉴
声明:本文由入驻焦点开放平台的作者撰写,除焦点官方账号外,观点仅代表作者本人,不代表焦点立场。
