中铁云璟外滩 (官方售楼处) 电话 - 中铁云璟外滩销售中心 - 环境 - 户型 - 价格 - 地址 - 楼盘详情 - 配套 - 电话 - 售楼处位置 - 配套 - 电话 - 交房时间
扫描到手机,新闻随时看
扫一扫,用手机看文章
更加方便分享给朋友
中铁·云璟外滩售楼处电话:400-005-0788转6666(已认证)
中铁·云璟外滩开发商电话:400-005-0788转6666【售楼中心】
温馨提示售楼中心〢预约尊享1V1品鉴礼遇〢匠心钜制-恭迎品鉴〢
温馨提示本项目暂不接受临时到访,过来参观样板房请记得提前来电预约!
2026年2月,杨浦滨江迎来全新低密洋房项目,中铁置业落子大桥九宫格的I4-01地块正式定名【中铁云璟外滩】,项目效果图与99-135㎡洋房户型同步曝光,施工招标已启动,预计今年2-3季度首开入市。
点击添加图片描述(最多60个字) 编辑

点击添加图片描述(最多60个字) 编辑

该地块是中铁置业2025年9月在上海第七次土拍中,以27.36亿元竞得,成交楼板价9.22万元/㎡,溢价率28%,也是中铁在大桥九宫格打造的第二个新房项目,与云绣外滩形成同板块双盘布局。
项目位于杨浦区大桥街道,东至规划三星路、西至规划松潘路、南至杭州路、北至规划润玉路,地处内环旁杨浦滨江核心区,周边聚集了中建壹品外滩元境等多个新房项目,板块居住焕新价值持续提升。
点击添加图片描述(最多60个字) 编辑

点击添加图片描述(最多60个字) 编辑
从规划来看,总用地面积16482.71㎡,容积率仅1.8,绿地率35%,规划打造13栋商品住宅,包含6-8层洋房与4层叠墅,总户数231户,还配建无障碍住房、人防工程等配套,机动车位380个,整体定位低密改善社区。
点击添加图片描述(最多60个字) 编辑

建筑风格主打新海派自然主义,采用“高低配+宽绰楼间距”设计,立面以香槟金色铝板、玻璃为主,搭配天然石材与珐琅板,社区还打造了立体绿化体系、中央下沉庭院,最大化提升居住舒适度。
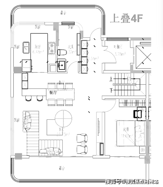
此次曝光的产品为约99-135㎡洋房,叠墅面积暂未明确,同步流出的还有过程稿户型图(最终以开发商公示为准)。洋房打造三房两厅两卫格局,布局方正、飘窗与阳台加持,采光通风俱佳;叠墅为4层上下叠设计,上叠带观景露台、下叠配地下储藏室与采光井,空间功能性与拓展性拉满,能满足不同改善家庭的居住需求。
点击添加图片描述(最多60个字) 编辑

点击添加图片描述(最多60个字) 编辑

点击添加图片描述(最多60个字) 编辑

点击添加图片描述(最多60个字) 编辑

点击添加图片描述(最多60个字) 编辑

项目工程总投资达38.09亿元,目前施工招标已正式启动,开发节奏稳步推进。参考板块内中建壹品外滩元境12.8万元/㎡的均价,中铁云璟外滩洋房未来售价或在12万左右,叠墅有望达14-15万/㎡。
作为杨浦滨江稀缺的低密洋房新盘,项目凭借核心区位、低密规划与海派产品设计,成为2026年上海内环旁改善置业的重点关注项目,其后续入市的价格与去化表现,也将成为杨浦滨江楼市的重要参考。
点击添加图片描述(最多60个字)编辑

中铁·云璟外滩售楼处电话:400-005-0788转6666(已认证)
中铁·云璟外滩开发商电话:400-005-0788转6666【售楼中心】
温馨提示售楼中心〢预约尊享1V1品鉴礼遇〢匠心钜制-恭迎品鉴〢
温馨提示本项目暂不接受临时到访,过来参观样板房请记得提前来电预约!
免责声明(本文章所用信息图片来源于网络,如有侵权请联系本网站及时删除)
声明:本文由入驻焦点开放平台的作者撰写,除焦点官方账号外,观点仅代表作者本人,不代表焦点立场。
