苏州东吴序官方售楼处-官方售楼中心首页网站(苏州东吴序)苏州东吴序户型配套-2025年最新楼盘测评

搜狐焦点荆州站 2025-10-20 10:35:54
用手机看
扫描到手机,新闻随时看

扫一扫,用手机看文章
更加方便分享给朋友

苏州东吴序 售楼处电话400-002-9578转接3333(已认证) 营销中心电话400-002-9578转接3333【售楼中心】 营销中心电话400-002-9578转接3333【售楼中心】 温馨提示:售楼中心〢预约尊享1V1品鉴礼遇〢匠心钜制-恭迎品鉴〢

苏州东吴序

售楼处电话400-002-9578转接3333(已认证)

营销中心电话400-002-9578转接3333【售楼中心】

营销中心电话400-002-9578转接3333【售楼中心】

温馨提示:售楼中心〢预约尊享1V1品鉴礼遇〢匠心钜制-恭迎品鉴〢

免责声明:【本文所用信息图片来源于网络,如侵权请联系本网站及时删除】

苏州众昌项目管理(吴中建设)底价拿下该地块,成交总价2.3亿,成交楼面价15040元/㎡。

地块位于长桥街道宝带西路与盘蠡路交汇口,出门就是地铁2/3号线盘蠡路站,一站即达姑苏世茂广场,与吴中实验小学隔河相望。

这个地段真没得说,属于城南与姑苏交界的地方,是正儿八经的主城核芯,共享双区配套,居住氛围浓厚。

周边次新有金地燕风华,2020年开盘卖得非常好,地缘性改善属性非常强!

产品方面,规划4栋3F联排+2栋8F洋房,一共只有78套房子!

面积段已经曝光,精装洋房约169㎡!联排约215-245㎡!

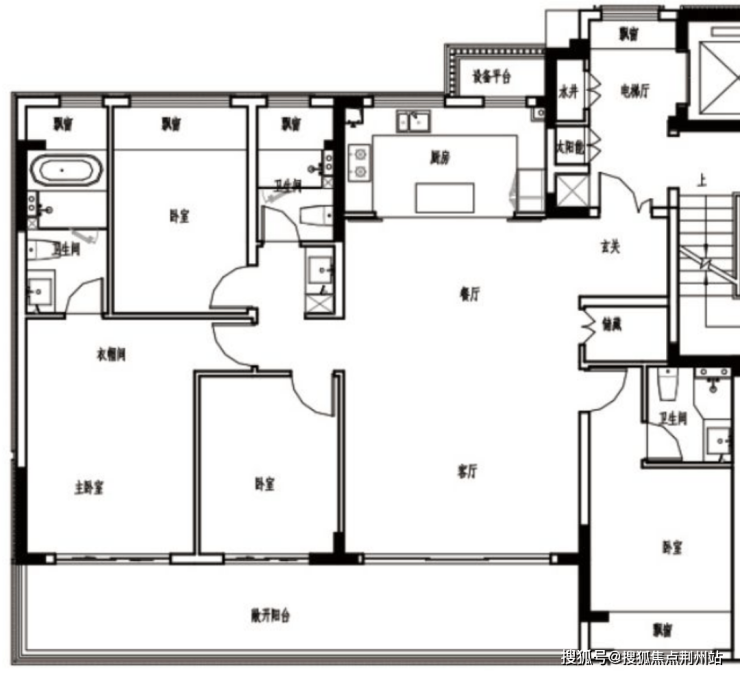
正式户型图暂未出炉,可参考公示户型——

先看联排,地上3层,独立入户,面宽约11米。

首层是LDKB一体化设计+老人房,二层以上南向全套房+全明卫设计,还有超大的露台与挑空赠送~

洋房约169㎡4房3卫,南向面宽约15米,入户带玄关+储藏室,全屋飘窗赠送,朝南双套房!

整个户型最大的亮点,必须是三联阳台,开敞设计,赠送面积相当可观!

洋房外立面窗墙比非常感人,阳台超长!

入户大堂品质和颜值都非常在线。

苏州东吴序

售楼处电话400-002-9578转接3333(已认证)

营销中心电话400-002-9578转接3333【售楼中心】

营销中心电话400-002-9578转接3333【售楼中心】

温馨提示:售楼中心〢预约尊享1V1品鉴礼遇〢匠心钜制-恭迎品鉴〢

免责声明:【本文所用信息图片来源于网络,如侵权请联系本网站及时删除】

声明:本文由入驻焦点开放平台的作者撰写,除焦点官方账号外,观点仅代表作者本人,不代表焦点立场。