中铁·咏月台(营销中心)官方网站-苏州中铁·咏月台售楼处电话-苏州中铁·咏月台售楼处电话-咏月台电话地址-价格-户型-小区环境-楼盘详情-交房时间-周边配套
扫描到手机,新闻随时看
扫一扫,用手机看文章
更加方便分享给朋友
🏡☎️苏州中铁·咏月台售楼处电话:400-002-9578转接5555【营销中心】
🏡☎️苏州中铁·咏月台售楼处位置:400-002-9578转接5555【楼盘电话】
🏡房价特价信息丨优惠政策丨详细解答丨在售房源丨在售户型图丨项目介绍丨
周边配套丨VR看房丨楼盘图丨沙盘图丨位置图丨配套图丨售楼处地址丨足不出户丨
根据已公示的规划方案,中铁咏月台容积率仅约1.5,全盘建筑限高40米,仅打造3栋4层叠墅和5栋10-11层洋房,共计186户,是个小而精的低密改善社区。
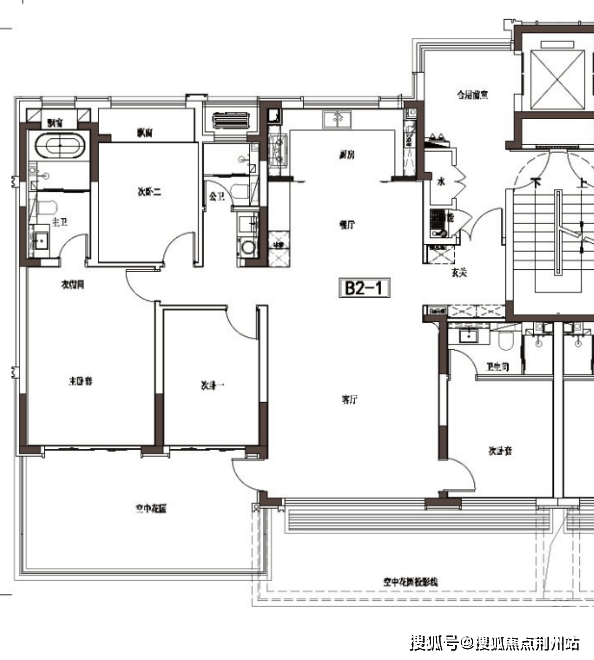
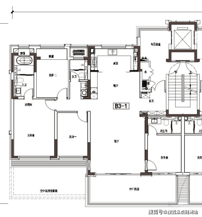
其中叠墅产品全盘仅36套,稀缺性突出。下叠面积约为186㎡和192㎡,上叠面积约为176㎡。

全盘仅36套的叠墅产品提供了极高的附加值。下叠建面约186-192㎡,配备南北双庭院、10米南向面宽及地下室赠送,客厅还带挑空;上叠建面约176㎡,拥有双露台+星空阁楼。
洋房产品包含两种类型。一类为四代住宅洋房,面积约162-164㎡;另一类为普通洋房,面积约132㎡。

项目中的四代洋房户型,设计了“错层双花园”系统:偶数层配备南向私密花园直连主卧,奇数层则设置社交花园衔接客厅。户型拥有约16.65米的南向超大面宽,采用LDKB一体化横厅设计,并配置双套房,得房率非常高。


另外还有宽境洋房建面约132㎡,四开间朝南,LDKG一体化设计,以较为友好的面积段+低总价+高品质,填补吴中城南改善的空白。
②苏州首个!真正的新规红利盘——首层全架空,车停地面、家在云端...
除了低密产品之外,中铁咏月台的最大亮点在于,这是苏州首批落实《改善型住宅技术要点》新规的盘,它创新性打造了苏州第一个“首层架空车库”。

大白话来说就是:它将传统的地下停车场抬升至地面一层,实现了多重突破性优势——
人车完全分流,实现"无雨归家",业主可从架空车库通过归家大堂垂直电梯直接入户;
车库平进平出,提升车行体验感和安全系数,并且车库可以拥有自然采光;
释放约2000㎡下沉庭院空间,用于配置物业服务、托育等功能;
减少地下开挖,降低了对城市环境的影响;
二层住宅相当于普通小区的三层高度,提升了低楼层住户的视野。
🏡☎️苏州中铁·咏月台售楼处电话:400-002-9578转接5555【营销中心】
🏡☎️苏州中铁·咏月台售楼处位置:400-002-9578转接5555【楼盘电话】
🏡房价特价信息丨优惠政策丨详细解答丨在售房源丨在售户型图丨项目介绍丨
周边配套丨VR看房丨楼盘图丨沙盘图丨位置图丨配套图丨售楼处地址丨足不出户丨
声明:本文由入驻焦点开放平台的作者撰写,除焦点官方账号外,观点仅代表作者本人,不代表焦点立场。
