邦泰璟和售楼处电话→邦泰璟和售楼中心电话→2026邦泰璟和楼盘百科→楼盘网站→楼盘测评→售楼中心电话→楼盘百科→24小时热线电话→楼盘详情
扫描到手机,新闻随时看
扫一扫,用手机看文章
更加方便分享给朋友
武汉邦泰•璟和售楼处电话▓:400-005-0788转接4444(售楼处已认证)
武汉邦泰•璟和营销中心电话▓:400-005-0788转接4444【营销中心】
温馨提示:售楼中心〢预约尊享1V1品鉴礼遇〢匠心钜制-恭迎品鉴〢
免责声明:本文所用信息图片来源于网络,如侵权请联系本网站及时删除
四川邦泰投资集团是一家民营企业,该项目也是这家房企首次进入武汉市场。这年头,还有民营房企在武汉溢价拿地,确实非常罕见。
该项目共包含8栋23-31层的高层住宅,全部都是一线看江的江景房,预计首开2、3、8号楼。

该项目地块狭长,一字排开,临江面很宽,楼栋基本都是东南朝向,西北向都是一线看江。
值得一提的是,项目被三弓路隔离成了两个地块,其中东侧地块仅2栋楼。且两个地块有独立的大门入口,都位于临江大道边上。

虽然东侧地块较小,不过,两个地块之间规划了一个空中连廊,将两个地块连接,如此一来两个地块的景观资源可共享。

前不久,邦泰璟和的实景示范区刚刚开放,大门,景墙,中岛,水景......展示面还是比较惊艳的。


晚上亮灯之后,看上去还是高大上的:


会所里有棋牌室、KTV、私宴厅、健身房等。




重点来看户型,作为一线江景房,户型设计的怎么样,对江景房来说至关重要。
该项目首开2、3、8号楼,均是两梯两户结构,每栋楼都只有一种户型,不同楼栋定位相对比较纯粹。
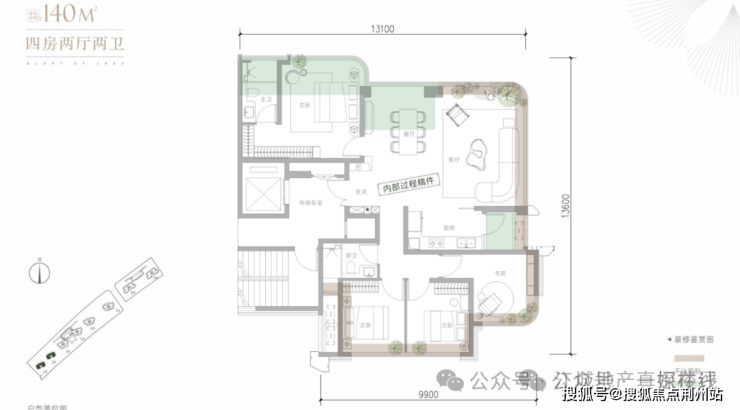
其中,2号楼中是建面约140平四房两厅两卫户型:
该户型是整个项目面积最小的户型,主卧、餐客厅朝北看江,观江视野不错。
两个次卧、书房朝南,南向也有一定的日照采光面,相对来说,兼顾了看江和南向日照,舒适度上比江南岸差不多面积的户型略有提升。需要注意的是,主卧紧邻电梯井的不利影响。

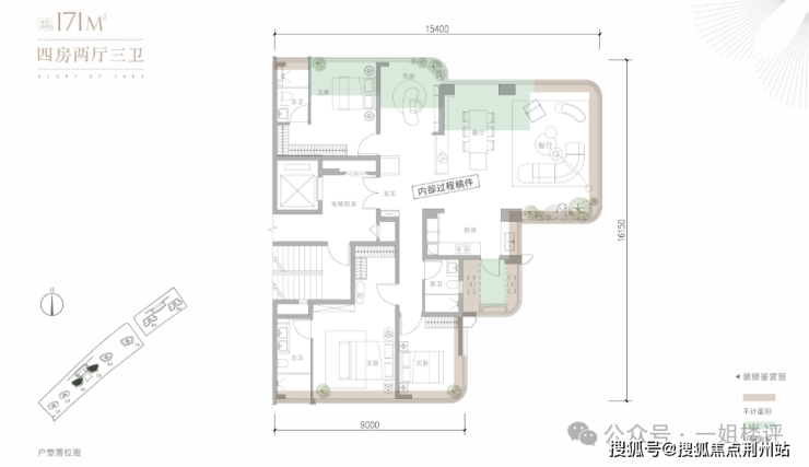
3号楼中则是建面约171平四房两厅三卫户型:
该户型双套房设计,客厅全景舱,有不错的看江视野,餐厅、书房均可看江。
不过比较大的主卧是朝南的,看不了江。好在,北侧还有一个主卧套房可以看江,不过这间套房靠近电梯井,可能有噪音影响。

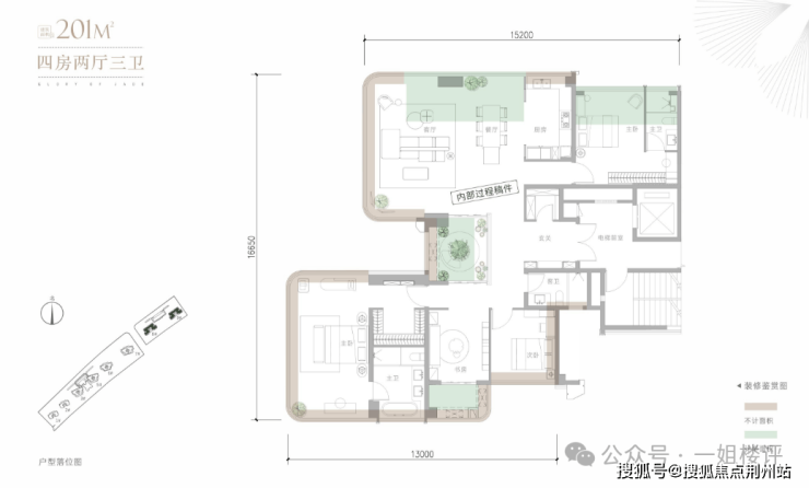
8号楼中则是建面约201平四房两厅三卫的大户型:
这个户型跟武汉城建江南岸的大户型有些类似,客厅和主卧都做了全景舱,均有很好的看江视野,需要注意的是西边户的西晒影响。
另外,该户型也是双套房设计,北侧套房挨着电梯井,可能会有噪音影响。
该户型的优化面积也非常丰富,客厅、主卧均是三面飘窗优化,书房的阳台外面还有设备平台优化面积,优化后综合得房率约100%以上。

可以看到,该项目每个户型都有不错的观江面,而且客厅基本都是全景舱设计,整体的爽感很强,但是部分主卧套房紧邻电梯井算是个BUG,建面约171平的主卧大套房看不了江。
武汉邦泰•璟和售楼处电话▓:400-005-0788转接4444(售楼处已认证)
武汉邦泰•璟和营销中心电话▓:400-005-0788转接4444【营销中心】
温馨提示:售楼中心〢预约尊享1V1品鉴礼遇〢匠心钜制-恭迎品鉴〢
免责声明:本文所用信息图片来源于网络,如侵权请联系本网站及时删除
声明:本文由入驻焦点开放平台的作者撰写,除焦点官方账号外,观点仅代表作者本人,不代表焦点立场。
