保利和光晨樾(售楼处) 首页 - 武汉保利和光晨樾销售中心 - 环境 - 户型 - 价格 - 地址 - 招商紫荆府楼盘详情 - 配套 - 电话 - 交房时间 - 配套 - 电话
扫描到手机,新闻随时看
扫一扫,用手机看文章
更加方便分享给朋友
🏡☎️保利和光晨樾售楼处电话:400-005-0788转接5555【营销中心】
🏡☎️保利和光晨樾售楼处位置:400-005-0788转接5555【楼盘电话】
🏡房价特价信息丨优惠政策丨详细解答丨在售房源丨在售户型图丨项目介绍丨
周边配套丨VR看房丨楼盘图丨沙盘图丨位置图丨配套图丨售楼处地址丨足不出户丨
保利・和光晨樾由国企江夏经发投公司与保利集团共同打造,是高端和光系低密住区。项目择址江夏区白沙洲大道光谷南大健康产业园旁,专为产业园高科技企业员工量身打造,让你在工作之余,能享受到时代的优雅栖居。

项目亮点多多,居住体验超棒

作为全国第四座保利高端和光系产品,这里可是别墅级低密住区。小区采用合院、高层搭配的设计,北高南低的形态错落有致,保证了每一户都有充足的采光。而且,中央景观轴、七大景观带、篮球场、亲子乐园等多场景交汇,无论是想晨跑锻炼、饭后散步,还是和朋友来一场热血的篮球赛,都能满足你,充分契合青年人才对健康户外活动的需求。
拎包入住,省心又省力
人才公寓一期租售面积达14112平方米,共有128套房源。更重要的是,公寓严格按照“拎包入住”标准配置,家具方面,床、衣柜、餐桌、沙发、茶几等一应俱全;设施上,密码门锁、电视投影仪、空调、冰箱、洗衣机、热水器、油烟机等也都安装到位。你只需带上个人物品,就能轻松开启全新的生活,无需为装修和购置家具费心费力。
共享空间,构建优质朋友圈
为了给入驻人才提供更舒适、便捷且富有趣味的居住环境,经发投公司根据人才需求,计划在公寓量身打造动静结合的共享公共空间。这个空间将融合阳光书屋、多功能活动区、人才驿站、党建活动等元素。
在这里,你可以在阳光书屋里安静阅读,提升自我;也可以在多功能活动区和其他人才交流互动、举办活动,不仅能拥有更优更好的“居住港湾”,还能轻松构建属于自己的优质“朋友圈”。
租金标准清晰,选择多样

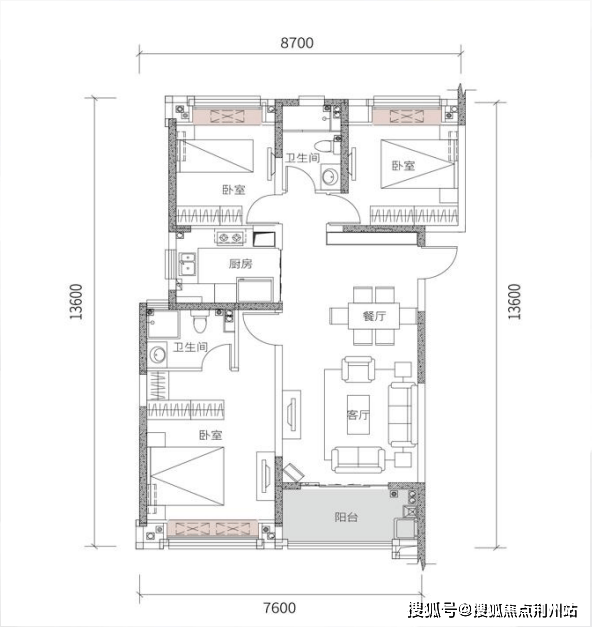
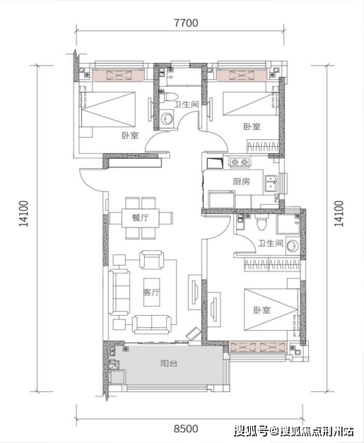
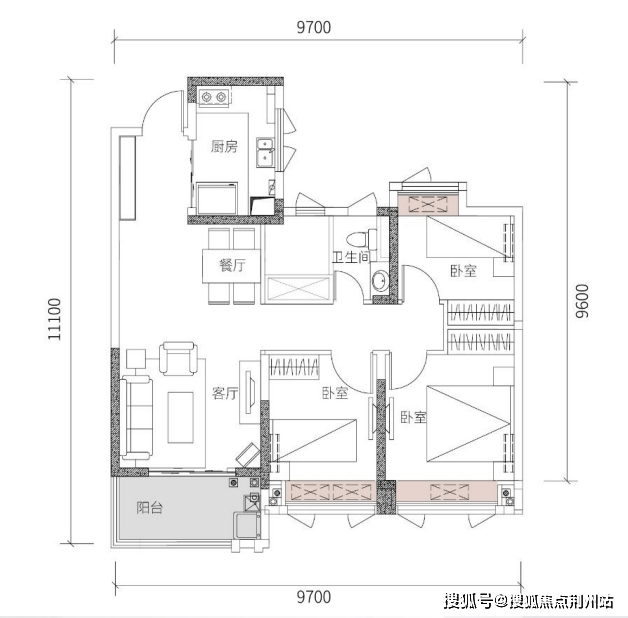
A户型:32套,三室两厅两卫,建筑面积约125平方米,租赁价格1753.63—2104.11元

B户型:32套,三室两厅两卫,建筑面积约118平方米,租赁价格1663.15—1993.18元

D户型:64套,三室两厅一卫,建筑面积约99平方米,租赁价格1448.54—1728.06元
注:单平方租金为14.01元/m²—17.31元/m²,性价比超高!
人才租赁房合同原则上一年一签,租赁期限不超过3年,合同中应注明入住人才因住房情况发生变化、不再符合人才安居条件的,应主动及时告知运营机构,并按政策规定处理。各区应定期开展人才安居资格复核,及时根据人才家庭有关变化情况依法依规处理。
人才租赁房租赁期满后应予退出。确有需要的,经本人申请最多可再延长2年,延长期内不享受政府租金优惠。入住人才租赁房后,入住人才因工作原因需跨区调换房源的,可向意向调入区房管部门提出申请。达成配租意向后,须退出原有人才租赁房、结清有关费用并注销合同备案后,方可签订新租赁合同。
🏡☎️保利和光晨樾售楼处电话:400-005-0788转接5555【营销中心】
🏡☎️保利和光晨樾售楼处位置:400-005-0788转接5555【楼盘电话】
🏡房价特价信息丨优惠政策丨详细解答丨在售房源丨在售户型图丨项目介绍丨
周边配套丨VR看房丨楼盘图丨沙盘图丨位置图丨配套图丨售楼处地址丨足不出户丨
声明:本文由入驻焦点开放平台的作者撰写,除焦点官方账号外,观点仅代表作者本人,不代表焦点立场。
