2026武汉天创元萃售楼处电话_来电预约看房_(武汉天创元萃营销中心)楼盘详情-2026最新房价
扫描到手机,新闻随时看
扫一扫,用手机看文章
更加方便分享给朋友
武汉天创元萃售楼处电话▓:400-002-9578转接4444(售楼处已认证)
武汉天创元萃营销中心电话▓:400-002-9578转接4444【营销中心】
温馨提示:售楼中心〢预约尊享1V1品鉴礼遇〢匠心钜制-恭迎品鉴〢
免责声明:本文所用信息图片来源于网络,如侵权请联系本网站及时删除

【项目位置】武昌区中山路与解放路交汇处
【产权年限】70年
【交房标准】毛坯
【总占地面积】约1.17方
【总建筑面积】约2.35万方
【绿地率】30%
【容积率】2.0
【总户数】159户
【车位数量】170个
【车位比例】1:1.07
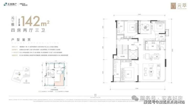
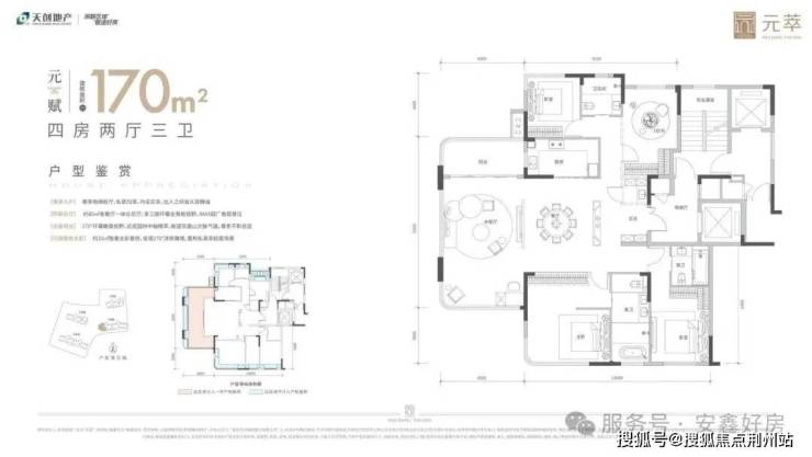
【户型】127-171㎡ 四房
【物业费】尚未公开
【物业公司】武汉泽创物业服务有限公司
区位优势
项目位于项目位于武昌区司门口板块,距离内环线直线距离约1.2公里,属于内环。
交通
自驾:项目位于解放路、中山路城市双主轴交汇处,坐拥三横三纵一桥一隧的立体交通,畅达武汉三镇。
地铁:项目下楼就是地铁5号线昙华林武胜门站,到地铁2号线螃蟹岬站直线距离约为1.2公里。

项目到武昌江滩(大堤口广场外滩公园)直线距离约为400多米,到黄鹤楼公园直线距离约为1.1公里,到内沙湖公园直线距离约为1.5公里。

学校项目周边拥有湖北省武昌实验中学、中华路系名校、武汉中学等优质教育资源。

商圈项目周边聚集武昌滨江商圈、昙华林商圈、中南汉街商圈三大顶级商圈,到昙华林泛悦汇直线距离约为1.2公里,到武昌万象城直线距离约为3.7公里,到武汉滨江天街直线距离约为4.7公里。

医疗项目到湖北省中医院直线距离约为600多米,到武汉市第三医院直线距离约为1.5公里,到武汉北斗星儿童医院直线距离约为1.6公里,到武汉大学人民医院直线距离约为2.2公里。
产品亮点

项目采用现代公建化手法,融合金属铝板、玻璃幕墙与天然石材打造外立面。
项目以凤凰山为屏,以长江水为灵,从非遗工艺中提取肌理,同步卢浮宫金字塔的“经纬线”的世界审美。以“无穹元境”为主题,打造六重无穹景致的“五礼制归家礼仪”。
一礼:元制古法,礼遇非遗
纯古铜鎏金水波纹,由非遗匠人手工凿刻“引水琢玉”
二礼:元蕴风水,引水琢玉
设门、台、水、亭四点成线,借鉴匠法于中央水景巧设全景会客厅,打造立体多维水景园林。
三礼:元脉雅景,山水入怀
打造绿野童梦无界儿童乐园、无界运动场,无界花园以自然花木、花园替代传统隔断,打造景观节点,借凤凰山为天然背景。
四礼:元庭礼序,显赫归邸
中央车站式大厅「铂金仓」采用奢石“红丝绸”,设计完全独立、双向通行的尊荣车道;
社区尊奢会所「风雅集」风雅集,私宴厅、会客厅、行政酒廊、棋牌室、室内桌球、KTV等多元空间;
私属下沉庭院「鸣翠台」围合式布局,精择名贵花卉绿植,圈层社交专属场域。
五礼:精工钜制,元礼迎归
转译千年仪门元素,传承经典建筑要素,首层公区打破传统入户局限,星级大堂融入昂贵奢石,每一步皆尊崇。
户型鉴赏
武汉天创元萃售楼处电话▓:400-002-9578转接4444(售楼处已认证)
武汉天创元萃营销中心电话▓:400-002-9578转接4444【营销中心】
温馨提示:售楼中心〢预约尊享1V1品鉴礼遇〢匠心钜制-恭迎品鉴〢
免责声明:本文所用信息图片来源于网络,如侵权请联系本网站及时删除
声明:本文由入驻焦点开放平台的作者撰写,除焦点官方账号外,观点仅代表作者本人,不代表焦点立场。
