楼盘推荐@济南中海未来之境→售楼处24小时电话→济南中海未来之境售楼中心首页网站→楼盘百科详情→400专线电话
扫描到手机,新闻随时看
扫一扫,用手机看文章
更加方便分享给朋友
济南中海未来之境售楼处电话:400-002-9578转6666(已认证)
济南中海未来之境售楼处电话:400-002-9578转6666【售楼中心】
济南中海未来之境售楼处电话:400-002-9578转6666【售楼中心】
温馨提示售楼中心〢预约尊享1V1品鉴礼遇〢匠心钜制-恭迎品鉴〢
中海地产在山东核心城市大手笔拿地,恰逢四代宅风潮,这一背景下,中海地产将盛福04地块打造成其在济南首个第四代住宅项目——中海时光之境。济南中海未来之境售楼处电话:400-002-9578转6666【售楼中心】
作为济南首个合规落地的第四代住宅,项目依托2025年济南计容新规政策支持,实现了“户户有花园”的空间革新,从自然融合、空间体验、场景拓展等多维度直接提升居住舒适度。济南中海未来之境售楼处电话:400-002-9578转6666【售楼中心】

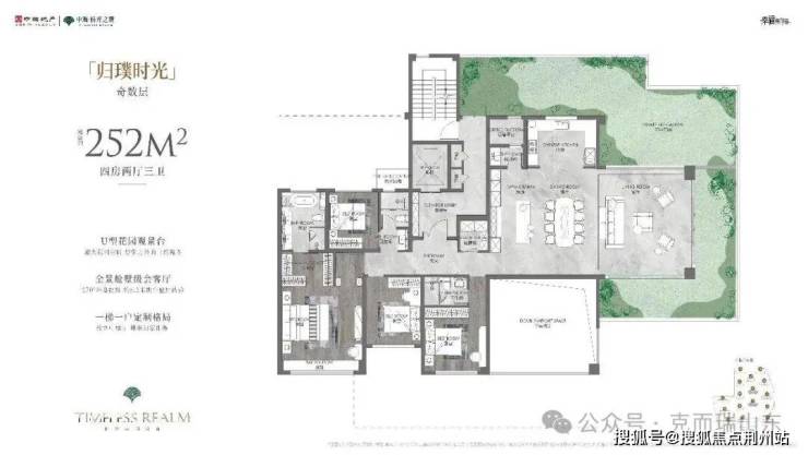
252m²户型样板间实景第四代宅设计的核心目标之一,便是满足人与自然融合共生的心理需求。中海时光之境户户约6.2米层高的花园露台,相当于为业主在高空开辟了专属 “绿色空间”,可种植绿植、摆放休闲家具,让日常居住能直接接触自然景观,缓解高层住宅的 “疏离感”。济南中海未来之境售楼处电话:400-002-9578转6666【售楼中心】
空中花园还可拓展空间尺度与功能,提升居住实用性。从中海时光之境的户型数据来看,不同面积段户型的空中花园均带有可观的赠送面积,如252㎡户型奇数层露台赠送约102㎡、偶数层约76㎡,155㎡户型奇数层露台赠送约16㎡、偶数层约13㎡,这些赠送空间直接提升得房率(最高达134%),让业主获得更多可自主支配的区域 —— 既可用作家庭休闲区,满足品茶、阅读等放松需求;也可作为亲子互动空间,或打造专属园艺区,打破传统住宅 “室内空间固定” 的局限,丰富居住场景。济南中海未来之境售楼处电话:400-002-9578转6666【售楼中心】
252m²户型样板间实景中海时光之境部分户型的空中花园搭配 270° 环幕全景舱设计(如 252㎡、210㎡户型),大面积露台与落地窗结合,视野开阔度远超传统高层住宅的封闭阳台,进一步提升居住的通透感与愉悦度。中海时光之境,源自中海地产主打高端改善、甚至奢享型住宅的产品线,在延续顶线产品 “择址观、文化观、产品观、圈层观” 四大核心基因上,项目形成了清晰的落地路径。济南中海未来之境售楼处电话:400-002-9578转6666【售楼中心】
其一,产品观层面,以高规格硬件呈现 “既有面子又有里子” 的产品主张 —— 社区大门采用东西跨度约92米、高度约11米的大尺度设计,搭配地上地下双酒店式环岛落客区,通过空间的仪式感营造富有尊享感的归家体验;建筑立面采用类玻璃幕墙+铝板线条+玻璃栏板组合,打造 “蓝宝石天幕” 立面;精装体系引入有厨电品类“爱马仕”之称的嘉格纳品牌,并搭配大金、汉斯格雅、唯宝等国际一线品牌。济南中海未来之境售楼处电话:400-002-9578转6666【售楼中心】
瑜伽室实景其二,圈层观层面,依托约2000㎡海派繁花生活馆构建高端社交场景,打造健身房、瑜伽室、私宴厅、茶室、艺术长廊、棋牌室、会客厅、VIP沙龙区8处艺术空间,且交付后由中海物业自主运营及管理,保障服务稳定性,为高净值客群提供契合圈层需求的社交与休闲平台。济南中海未来之境售楼处电话:400-002-9578转6666【售楼中心】
济南中海未来之境售楼处电话:400-002-9578转6666(已认证)
济南中海未来之境售楼处电话:400-002-9578转6666【售楼中心】
温馨提示售楼中心〢预约尊享1V1品鉴礼遇〢匠心钜制-恭迎品鉴〢
免责声明(本文章所用信息图片来源于网络,如有侵权请联系本网站及时删除)
声明:本文由入驻焦点开放平台的作者撰写,除焦点官方账号外,观点仅代表作者本人,不代表焦点立场。
