天津保利珺璟和煦项目首页网站丨2025天津保利珺璟和煦售楼处电话丨天津保利珺璟和煦营销中心丨天津保利珺璟和煦楼盘详情-地址-户型-价格
扫描到手机,新闻随时看
扫一扫,用手机看文章
更加方便分享给朋友
天津保利珺璟和煦
售楼处电话:400-002-9578转9999(已认证)
网上销售中心——24小时在线咨询TEL——恭迎品鉴!
-----------欢迎来电预约尊享专业顾问讲解一对一服务!
免责声明:(本文章所用信息图片来源于网络,如有侵权请联系本网站及时删除)
一、基础信息
建筑面积: 约6.76万方
产品组成:8栋,8-10层洋房
总住户数:388户
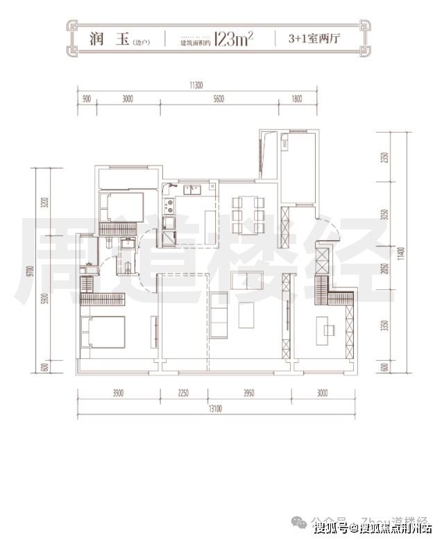
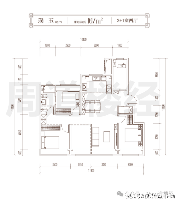
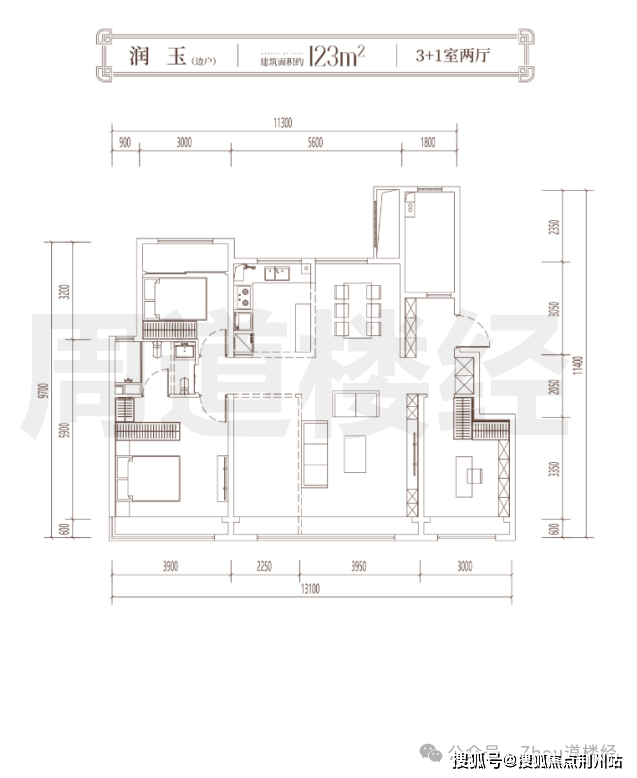
首开户型:92/106/123/139㎡
装修标准:毛坯
产品业态: 70年住宅产品
绿化率: 40%
容积率: 1.55
车位配比:车位配比1:1.4
物业公司: 保利物业
二、户型鉴赏



三、周边配套

1、交通配套—— 一横三纵双高速双地铁
➺一横:外环南路
➺三纵:卫津南路、友谊南路、解放南路
➺双高速:荣乌高速(荣成至乌海)、津港高速
➺双地铁:地铁6号线、7号线(在建中)
2、商业配套 —— 五重城市级商圈
➺梅江永旺&印象城(900米,步行可达)、山姆(1.7公里)、万达广场(步行1.4公里)、环宇城(步行2公里)、龙湖天街(5.5公里)
3、自然资源 —— 四公园
➺梅江公园(水域面积占比超30%,绿化覆盖率超 45%)、新梅江公园、卫津河公园、太湖路公园
4、医疗配套 —— 三医院
➺天津市第四医院、海河医院、中医一附院
➺铭华门诊医院,步行10分钟可达
➺天津市河西区中医医院(2.1公里)
5、教育配套—— 2所小学、1所中学
➺育英小学、梅江天津小学、大寺中学
四、开发商介绍



天津保利珺璟和煦
售楼处电话:400-002-9578转9999(已认证)
网上销售中心——24小时在线咨询TEL——恭迎品鉴!
-----------欢迎来电预约尊享专业顾问讲解一对一服务!
免责声明:(本文章所用信息图片来源于网络,如有侵权请联系本网站及时删除)
声明:本文由入驻焦点开放平台的作者撰写,除焦点官方账号外,观点仅代表作者本人,不代表焦点立场。
