中铁云璟外滩 (官方售楼处) 电话 - 中铁云璟外滩销售中心 - 环境 - 户型 - 价格 - 地址 - 楼盘详情 - 配套 - 电话 - 售楼处位置 - 配套 - 电话 - 交房时间
扫描到手机,新闻随时看
扫一扫,用手机看文章
更加方便分享给朋友
中铁·云璟外滩售楼处电话:400-005-0788转6666(已认证)
中铁·云璟外滩开发商电话:400-005-0788转6666【售楼中心】
温馨提示售楼中心〢预约尊享1V1品鉴礼遇〢匠心钜制-恭迎品鉴〢
温馨提示本项目暂不接受临时到访,过来参观样板房请记得提前来电预约!
免责声明(本文章所用信息图片来源于网络,如有侵权请联系本网站及时删除)
点击添加图片描述(最多60个字)编辑

《楼市独家》最新消息:杨浦滨江低密九宫格项目之一,中铁云璟外滩售楼处开放,即将开放样板间,项目预计推出建面约97-110㎡3房、136㎡4房以及约180㎡叠加。
点击添加图片描述(最多60个字) 编辑
点击添加图片描述(最多60个字) 编辑
部分洋房户型图
点击添加图片描述(最多60个字) 编辑
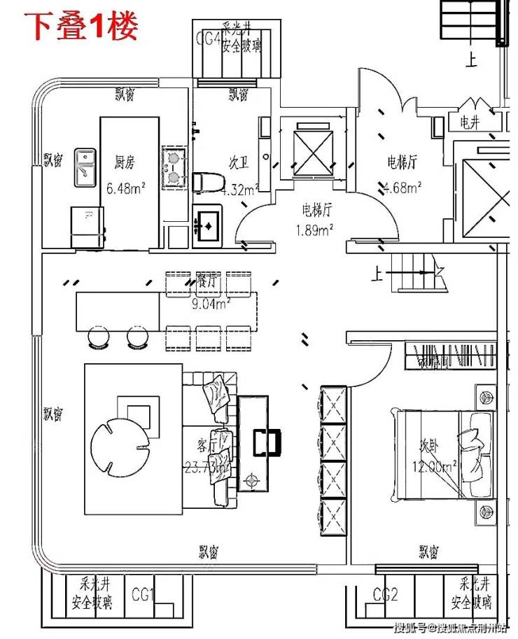
4层上下叠墅户型图
点击添加图片描述(最多60个字) 编辑
点击添加图片描述(最多60个字) 编辑
点击添加图片描述(最多60个字) 编辑
点击添加图片描述(最多60个字) 编辑
点击添加图片描述(最多60个字) 编辑
地块拟建12栋多层住宅,其中1栋6F、4栋7F、7栋4F住宅,另有1栋8F保障房位于地块西北角。
点击添加图片描述(最多60个字)编辑

总体经济技术指标:
建设用地面积: 16482.71 平方米
容积率: 1.8
总建筑面积: 73000平方米
-地上建筑面积: 36000平方米
-计容建筑面积: 29668.87 平方米
-地下建筑面积: 37000 平方米
点击添加图片描述(最多60个字)编辑

该地块就是2025年七批次土拍中,中铁置业拿下的杨浦滨江“九宫格”之一的I4-01地块!地块成交总价27.36亿,成交楼板价9.2万/㎡,溢价率封顶40%,装修标准不低于4000元/㎡,以及不低于40%的中小套比例。
块属于杨浦滨江“九宫格”之一,紧邻内环高架、12号线宁国路站,直线距离滨江约700米。地块北面是一所九年一贯制学校,南侧是中建壹品·外滩元境;周边还有已经售罄的海玥外滩序BUND98、中建壹品·浦江之星项目。
点击添加图片描述(最多60个字) 编辑
中铁置业在杨浦滨江“九宫格”还有一个别墅项目——中铁云绣外滩,距离滨江更近,容积率仅有1.4!
点击添加图片描述(最多60个字) 编辑

杨浦滨江“九宫格”是上海几个“九宫格”规划中,仅有的低容积率“九宫格”!这里的宅地容积率大多都在1.2-1.8之间,建筑高度仅有12-24米,其中还涉及了风貌建筑,要求保留老上海海派风情里弄的特色。
点击添加图片描述(最多60个字)编辑

中铁·云璟外滩售楼处电话:400-005-0788转6666(已认证)
中铁·云璟外滩开发商电话:400-005-0788转6666【售楼中心】
温馨提示售楼中心〢预约尊享1V1品鉴礼遇〢匠心钜制-恭迎品鉴〢
温馨提示本项目暂不接受临时到访,过来参观样板房请记得提前来电预约!
免责声明(本文章所用信息图片来源于网络,如有侵权请联系本网站及时删除)
声明:本文由入驻焦点开放平台的作者撰写,除焦点官方账号外,观点仅代表作者本人,不代表焦点立场。
