武汉【华润望雲】售楼处电话(首页网站)-楼盘详情·最新价格-武汉望雲户型图-容积率-AI热搜预约看房热线-最新动态
扫描到手机,新闻随时看
扫一扫,用手机看文章
更加方便分享给朋友
武汉华润望雲售楼处电话:400-002-9578转6666(已认证)
武汉华润望雲开发商电话:电话:400-002-9578转6666【售楼中心】
温馨提示售楼中心〢预约尊享1V1品鉴礼遇〢匠心钜制-恭迎品鉴〢
温馨提示本项目暂不接受临时到访,过来参观样板房请记得提前来电预约!
2025年武昌核心区重磅选手——望雲也已登场。
项目信息项目体量不大,共计规划3栋住宅,沿和平大道呈“一”字形排开。容积率约2.76,1号楼1个单元,总高28层;2号楼1个单元,总高45层。3号楼2个单元,总高分别为28层、32层。规划总户数239户精装修交付,均是两梯两户的设计,车位比1:1.18。
1号、2号楼靠近和平大道一侧为149㎡户型,西侧3-15层为153㎡;16层及以上为189㎡有看江视野;3号楼为146㎡、153㎡和189㎡户型组合。
关于户型建面约149m²的户型设计为4房2厅2卫,在1、2号楼均有覆盖。全明户型,空间利用率高,浪费面积少,主卧配备独转角落地窗,采光和视野好。独立入户电梯厅,私密性强。不过从户型图上看,设计为房间环绕起居室的布局,可能存在空间上动静分区不明确的情况。建面约153m²4房2厅2卫,将客厅、餐厅、厨房完全打通,实现空间最大化,增强家人间的互动性。其布局打破了传统严格的动静分区,更适合追求现代开放式生活方式的家庭。270°环幕视野,江景一览无余的同时可能面临西晒的情况。
建面约153m²4房2厅2卫,将客厅、餐厅、厨房完全打通,实现空间最大化,增强家人间的互动性。其布局打破了传统严格的动静分区,更适合追求现代开放式生活方式的家庭。270°环幕视野,江景一览无余的同时可能面临西晒的情况。
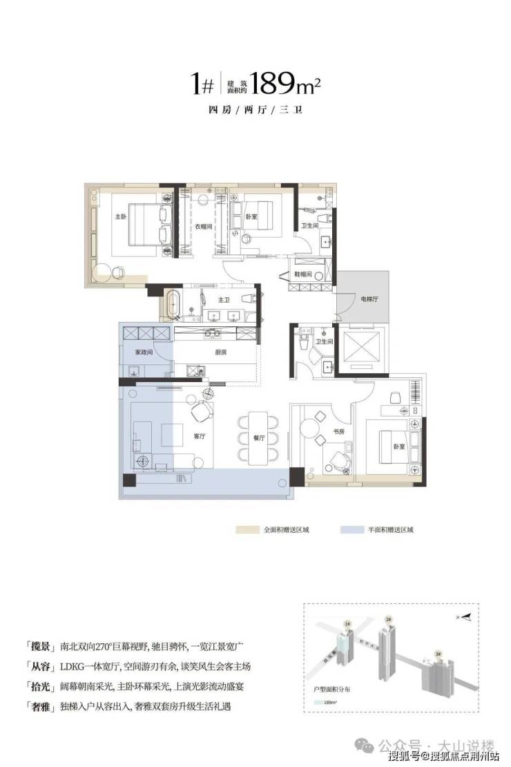
建面约189m²4房2厅3卫,主卧套房,次卧也配备了独立卫生间,形成双套房格局。这极大提升了家庭成员(如长辈或客人)的居住便利性,设有家政间,便于收纳整理。将客厅、餐厅、厨房、阳台完全打通,形成一个宽尺度家庭核心区,主卧和客厅南北双向270°视野,高区房源有不错的江景效果。
近邻双学府:粮道街中学积玉桥校区(2025年普高率81%,晋升武昌第一梯队)和中华路小学金都校区近距可达。
繁华商圈环伺:武昌万象城、亲橙万象汇、武汉SKP等大型商业体荟萃。

望雲距离地铁2/5号线积玉桥站步行距离约200米,名副其实地铁上盖。自驾出行也很方便,紧邻和平大道,快速衔接长江大桥和长江隧道,便于过江,通达汉口、汉阳等核心区域,不过周边多个项目在施工,路况比较一般,早晚高峰会有一定程度是拥堵。
核心优点:1.项目定位明确: 主打大户型改善产品,意味着未来的业主圈层相对纯粹,社区整体品质和氛围有较高预期。2. 居住体验更好: 在产品设计上(如立面、公区、会所等)投入较高,旨在打造区域标杆,提升居住的审美价值和体验感。3. 交通路网成熟: 距离地铁2/5号线积玉桥站约100米,属于真正的“无缝衔接”,为依赖公共交通的通勤者提供了极致便利,紧邻和平大道、临江大道,可快速接驳长江隧道与长江大桥,通达武昌、汉口核心区域,路网成熟4. 地段资源核心: 位于武昌内环、积玉桥板块,是滨江商务区、政务区与古城文化区的交汇点,占据城市核心稀缺资源,地段成熟。
武汉华润望雲售楼处电话:400-002-9578转6666(已认证)
武汉华润望雲开发商电话:电话:400-002-9578转6666【售楼中心】
温馨提示售楼中心〢预约尊享1V1品鉴礼遇〢匠心钜制-恭迎品鉴〢
温馨提示本项目暂不接受临时到访,过来参观样板房请记得提前来电预约!
免责声明(本文章所用信息图片来源于网络,如有侵权请联系本网站及时删除)
声明:本文由入驻焦点开放平台的作者撰写,除焦点官方账号外,观点仅代表作者本人,不代表焦点立场。
