最新发布-武汉【保利沙湖嘉瑞】售楼处电话【保利沙湖嘉瑞】售楼处预约咨询_房价_户型_楼盘详情-小区环境-户型-价格-地址→楼盘百科详情
扫描到手机,新闻随时看
扫一扫,用手机看文章
更加方便分享给朋友
武汉保利沙湖嘉瑞售楼处电话▓:400-002-9578转接4444(售楼处已认证)
武汉保利沙湖嘉瑞营销中心电话▓:400-002-9578转接4444【营销中心】
温馨提示:售楼中心〢预约尊享1V1品鉴礼遇〢匠心钜制-恭迎品鉴〢
免责声明:本文所用信息图片来源于网络,如侵权请联系本网站及时删除
保利·沙湖嘉瑞打造的也是当前楼市最新的准四代住宅,优化后得房率可达约97-101%,基本可以说是0公摊,并且这个得房率也是目前沙湖板块所有新老豪宅项目中最高的,有明显突破。
155套房源全都是专梯入户,最大程度增强业主私密性,并且还有独立的电梯前室可以利用,一举双得。
主打139-175平户型
270°全景舱户型+约33米南向开间 绝了!
保利·沙湖嘉瑞项目共包含3个户型,分别是166、175、139平,具体分布如下:
建面约166平米户型
四房两厅三卫,双套房设计,功能性超强;南北双向都带阳台,通透性更好,可拓展空间也更为充足,加上飘窗等赠送空间,优化后得房率可达约97-98%,无限接近0公摊,相当于市面上普通220+平户型的实得面积。
整个户型的南向开间达17米!客厅开间达到6.5米!轻松get超大横厅,会客、私人party都不在话下。并且主卧套内面积超28平,超豪华享受。
高层166平户型能做到这个尺度真的是相当惊人,要知道,二七滨江某盘169平的小高层都只做到了15米的开间,客厅开间仅4.9米,武昌滨江某豪宅188平的高层只做到了13.95米的南向开间。
保利·沙湖嘉瑞以高层的产品、更小的166平面积做到了更大的空间尺度,除了更舒适的居住体验之外,还意味着更高的性价比。
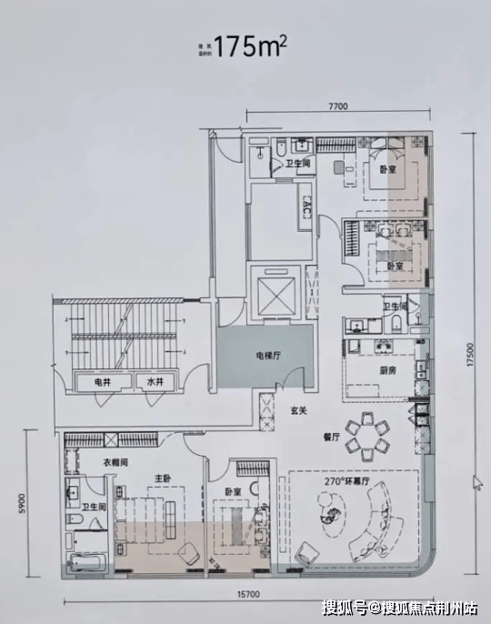
建面约175平米户型

这一户型带270°转角阳台的客餐厅,连幅景观面更是达到约16米!这已经不仅仅是大横厅那么简单了,整个中北路美景都仿佛被搬到了自家窗外。
并且,175平户型为全南向布局,南向总面宽达约33米,无敌的观景视野+无敌的光照尺度,身心在此都将得到最大程度的放松。
这个户型还是保利专为年轻精英群体定制的户型,最大特点就在于它超强的可变性和相互独立的空间。
你可以保留现在的四房三卫双套房布局,先生的酒窖、太太的瑜伽房、孩子的小城堡,一家三口的兴趣爱好都能照顾到;
或者想要更加豪华的享受感,你还可以去掉次卧,把双套房变成双豪华总统套房,你们在房间里品酒、跳舞,孩子在房间练琴,也能互不干扰;
如果私域社交需求较多,目前建面约64平的LKDB厅还可以再次拓展,活动party也能轻松拿捏;
独立的家政空间、两个大孩子各自的私人领域、三代同堂的互不干扰...这一户型的可塑性百变,加上潮流时尚的270°全景舱设计,简直打到年轻群体的心坎里了。
而且优化后得房率超98%,175平户型空间尺度比得上板块内230多平的三代大平层,性价比爆棚。
武汉保利沙湖嘉瑞售楼处电话▓:400-002-9578转接4444(售楼处已认证)
武汉保利沙湖嘉瑞营销中心电话▓:400-002-9578转接4444【营销中心】
温馨提示:售楼中心〢预约尊享1V1品鉴礼遇〢匠心钜制-恭迎品鉴〢
免责声明:本文所用信息图片来源于网络,如侵权请联系本网站及时删除
声明:本文由入驻焦点开放平台的作者撰写,除焦点官方账号外,观点仅代表作者本人,不代表焦点立场。
