武汉天创元萃(售楼处) 官方 - 天创元萃销售中心 - 环境 - 户型 - 价格 - 地址 -天创元萃楼盘详情 - 配套 - 电话 - 交房时间 - 配套 - 电话 - 交房时间
扫描到手机,新闻随时看
扫一扫,用手机看文章
更加方便分享给朋友
武汉天创元萃售楼处电话:400-005-0788转6666(已认证)
武汉天创元萃开发商电话:400-005-0788转6666【售楼中心】
温馨提示售楼中心〢预约尊享1V1品鉴礼遇〢匠心钜制-恭迎品鉴〢
温馨提示本项目暂不接受临时到访,过来参观样板房请记得提前来电预约!
项目一共4栋住宅,均为两个单元的,且所有楼栋建筑高度均不超过40米。这个建筑高度,相当于隔壁华发外滩玺的一半。1号楼1单元为11F,2单元为13F;2号楼1单元为13F,2单元为13F;3号楼1单元为10F,2单元为12F;4号楼1单元为13F,2单元也是13F。项目的3、4号楼为西南朝向,1、2号楼为东南朝向。4栋楼均为2梯2户的设计。
项目位于武昌内环滨江的南段,属于武昌古城板块,是武昌传统的富人区。
周边长江大桥、黄鹤楼等地标,江对面就是龟山电视塔,不出家门就可以领略武汉的秀丽风光。
对比周边的华发外滩玺、华发农讲所地块,天创西城壕的劣势在于不临江。

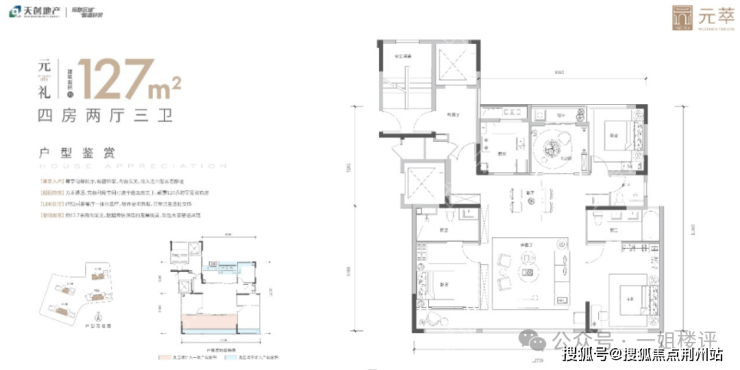
建面约127平户型最多,做的是四房两厅三卫:
该户型带独立电梯前室,南向大阳台外面有花池优化面积,北向还有一处设备平台优化空间,整体优化面积确实比较多。
因此这个户型做了四房三卫,南向是双套房设计,功能性比较强,不过有个套卫是暗房。

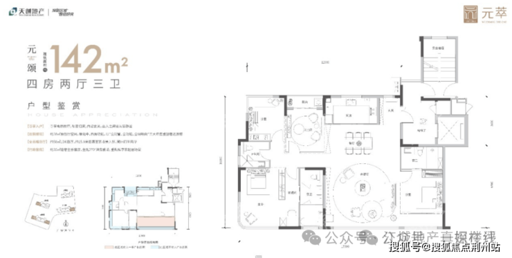
建面约142平户型也是四房两厅三卫:
该户型为2、3、4号楼端头边户,除了南向大开间之外,还是三面采光,主卧和北侧卧室是双面飘窗优化,尤其是主卧做了270°拐角飘窗。
这个户型也是南向双套房,客厅、主卧空间都非常大,还有一个较大的独立电梯前厅,不过依然有个套房的卫生间是暗房。

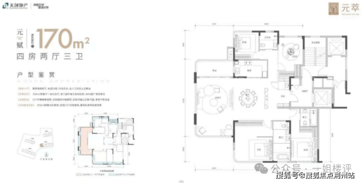
最大面积的是建面约172平的四房两厅三卫大平层:
这个户型仅分布于2号楼最西端,房源数量是最少的,也是面积最大的户型。
客厅采用270度全景舱设计,南向主卧套房也采用了转角窗设计,配合2号楼西头的位置,可三面俯瞰小区园林,景观视野不错,不过也有西晒的影响。

地铁:项目距离地铁5号线昙华林武胜门地铁站C口约100米。
自驾:项目周边就是武珞路,可以前往中南商圈、梦时代;途径长江大桥,可以前往汉阳和汉口核心。
休闲配套:项目周边有大堤口广场外滩公园,直线距离约340米,往前一点就是武昌江滩。
医疗配套:项目距离湖北省中医院(花园山院区)直线距离约700米,这是一所三甲医院。

武汉天创元萃售楼处电话:400-005-0788转6666(已认证)
武汉天创元萃开发商电话:400-005-0788转6666【售楼中心】
温馨提示售楼中心〢预约尊享1V1品鉴礼遇〢匠心钜制-恭迎品鉴〢
温馨提示本项目暂不接受临时到访,过来参观样板房请记得提前来电预约!
免责声明(本文章所用信息图片来源于网络,如有侵权请联系本网站及时删除)
声明:本文由入驻焦点开放平台的作者撰写,除焦点官方账号外,观点仅代表作者本人,不代表焦点立场。
