武汉保利·星奕官方售楼处电话→武汉保利·星奕售楼中心电话→2026武汉保利·星奕楼盘百科→首页网站→楼盘测评→售楼中心电话→楼盘百科→24小时热线电话
扫描到手机,新闻随时看
扫一扫,用手机看文章
更加方便分享给朋友
武汉保利·星奕售楼处电话▓:400-005-0788转接4444(售楼处已认证)
武汉保利·星奕营销中心电话▓:400-005-0788转接4444【营销中心】
温馨提示:售楼中心〢预约尊享1V1品鉴礼遇〢匠心钜制-恭迎品鉴〢
免责声明:本文所用信息图片来源于网络,如侵权请联系本网站及时删除
保利刚亮相的全新项目 ——保利星奕,清晰看到顶豪基因到武汉改善范本的完整传承线。这不是简单复制,而是保利用十年白沙洲深耕经验,把一线城市顶豪标准,精准落地到武昌新二环。在武汉改善市场越来越卷“地段+产品+长期主义”的今天,星奕的出现,本质是用顶豪逻辑做改善,直接拉高板块天花板。
01白沙洲缺的不是房子,是真正的低密改善
白沙洲这些年不缺楼盘,但一直有个痛点:高密度、高公摊、缺会所、缺仪式感、缺长期品质。刚需盘扎堆,刚改只能“将就”,想一步到位住得体面、舒服、有圈层,选择寥寥。
保利星奕一出手就踩中要害:
板块罕见约2.0容积率,仅721户,摒弃了白沙洲常见的超高层设计,建筑密度仅18.77%,彻底告别拥挤感;
8栋9-17层小高层为主,2栋26层高层,低公摊、高得房率,居住舒适度拉满;
主打105-143㎡准四代住宅,户均面积120.5㎡,得房率约100%;
星舟奕享会所+下沉庭院,恒温泳池、健身房、私宴厅、茶室、国医馆全配齐,这在白沙洲是破天荒。
把广州顶豪的仪式感、会所体系、精工标准平移过来。
在新二环这个位置,做纯粹低密、高定会所、全周期户型,保利星奕是第一个敢把“改善”做透的项目。
1.仪式感:从「超级大门」到「酒店式归家」
玥玺湾的超级大门、环岛落客、11米台地园林,是顶豪的仪式感。
到了保利星奕,变成超200米城市界面、9米挑高20米宽阔尺门头,地下车库做中央车站+地下会客厅,归家动线完全是五星级酒店的标准。
在白沙洲,没人这么做。多数小区进门就是路、就是车位,而保利星奕从你下车第一步,就告诉你:这是家,不是宿舍。
保利星奕同样请CCD担纲会所与大堂设计,深植白沙洲600年航运文脉,以「星航万里」为叙事,把武汉梅花、汉绣、巴公房子穹顶、圆弧拱券融入建筑与大堂。
不是堆砌奢华,是文化共鸣。这种汉派奢雅,比单纯的土豪风,更符合武汉改善的审美。
3.配套力:星舟奕享会所,白沙洲的「改善面子」
保利星奕创新打造“首层大堂+下沉庭院+架空层”三重立体高定会所,超配约300㎡水晶玻璃穹顶花房,天光直落,像都市里的悬浮绿洲;
约28米高定恒温泳池、女王吧、瑜伽室、健身房、国医馆、SPA馆……下楼就是星级酒店体验,健身、会客、放松一站式搞定。
在白沙洲,多数小区只有“草坪+步道”,星奕直接给了完整度假生活体系,这就是降维打击。
03户型真改善:约100%得房率,空间自由创变
改善买房,最怕“面子够、里子虚”。保利星奕建面约105-143㎡低密四代,把实用性拉满。
保利星奕主推建面约105-143㎡准四代住宅,打破传统空间桎梏,实现约100%得房率,全屋极少承重墙,客厅与次卧无剪力墙约束,空间自由创变,轻松适配新婚宽厅、二孩多居、三代同堂等全家庭周期需求。
户型图都已经出来了,起步户型是105m²,独梯入户。
▲105m²户型图
▲129m²户型图
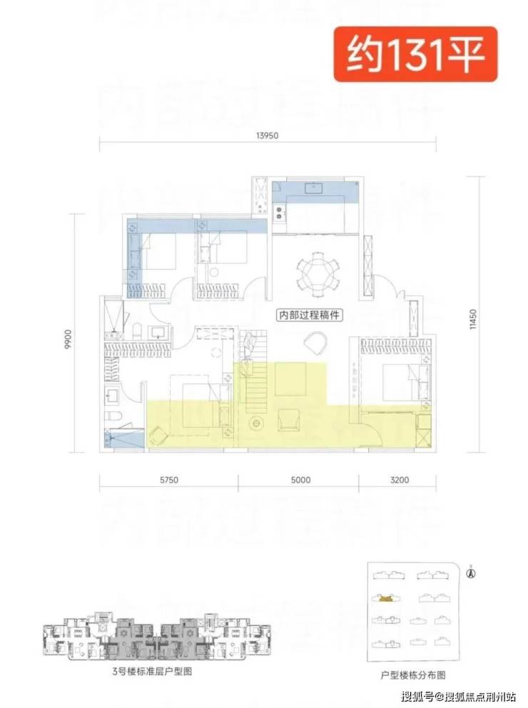
▲131m²户型图
▲143m²户型图
以105㎡三房两卫爆款户型为例:
私享前厅:独立电梯前厅,专属归家动线,仪式感与私密性拉满;
越级面宽:超11米南向采光面,三开间朝南,全屋通透敞亮;
LDK方厅:宽厅连通约7.5米巨幕阳台,消融空间边界,家人互动更从容;
私谧主卧:约3.7米开间套房,全景飘窗+独立卫浴,私属谧境不被打扰;
灵动次卧:双次卧可变,公卫三式分离,起居高效有序。
武汉保利·星奕售楼处电话▓:400-005-0788转接4444(售楼处已认证)
武汉保利·星奕营销中心电话▓:400-005-0788转接4444【营销中心】
温馨提示:售楼中心〢预约尊享1V1品鉴礼遇〢匠心钜制-恭迎品鉴〢
免责声明:本文所用信息图片来源于网络,如侵权请联系本网站及时删除
声明:本文由入驻焦点开放平台的作者撰写,除焦点官方账号外,观点仅代表作者本人,不代表焦点立场。
