绿城体北潮鸣售楼处电话<首页网站>绿城体北潮鸣售楼中心地址_24小时电话_最新详情

搜狐焦点荆州站 2025-10-20 10:34:01
用手机看
扫描到手机,新闻随时看

扫一扫,用手机看文章
更加方便分享给朋友

天津绿城体北潮鸣售楼处电话:400-002-9578转6666(已认证) 天津绿城体北潮鸣售楼处电话:400-002-9578转6666【售楼中心】 温馨提示售楼中心〢预约尊享1V1品鉴礼遇〢匠心钜制-恭迎品鉴〢

天津绿城体北潮鸣售楼处电话:400-002-9578转6666(已认证)

天津绿城体北潮鸣售楼处电话:400-002-9578转6666【售楼中心】

天津绿城体北潮鸣售楼处电话:400-002-9578转6666【售楼中心】

温馨提示售楼中心〢预约尊享1V1品鉴礼遇〢匠心钜制-恭迎品鉴〢

河西津铁绿城体北潮鸣规划小高、洋房,小高层户型129平米,洋房户型130、143平米。水晶宫临时售楼处已开放,预计8月排卡,目前关注度极高。

河西w5地块保利将落地TOP级产品“天系”。规划12栋小高和洋房,小高107平米,洋房111、130、143、170平米。环宇城等外展即将开放,小高层价格预计在4万+。

河西金地梅江印金地安江里项目案名为金地梅江印,北侧临近九年一贯制学校。规划纯洋房社区,设计开放式阳台,户型为95、117、133平米。金地梅江印外展开放,预计7月出样板间,8月底开盘。

河西创意之城璞园璞园产品做了升级,规划纯小高层社区,户型为89、119、139、156、168平米。即将开放示范区、实体样板间,首开10、11号楼,交2万锁房号。119平米总价407-425万;139平米总价470-490万;168平米总价590-615万。

格调观麟花园二期格调观麟花园二期位于一期北侧,容积率2.9。从规划来看,社区一共有6栋楼。1-3号楼为26层到顶的高层;4和6号楼为17层到顶的小高层;5号楼为洋房,由三个单元组成,分别为7层、8层、7层到顶。

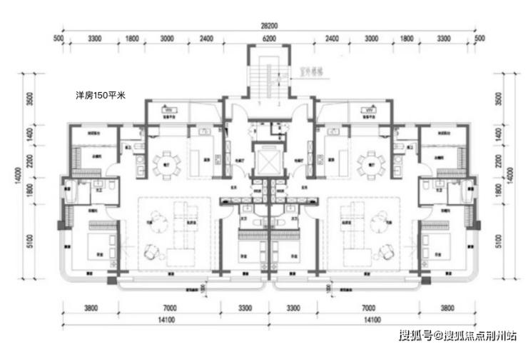
社区规划424户,户均面积为112.2平米。预计10月开盘。南开建投奥体誉院山西建投凌庄子地块,案名为建投奥体誉院。东侧B地块为小高层,首开4、5号楼,户型97、114、120平米,预计3.3-3.4万/平米。西侧C地块为洋房,首开5、6、7号楼,户型120、150平米,预计3.7-3.8万/平米。临时售楼处已开放

红桥天津金茂府京津冀同城商务区内的高端改善项目,设计为金茂“府系”科技住宅。分为东西两翼,西翼规划高层+小高+洋房,户型108-184平米;东翼规划全洋房,户型164、184平米。西地块开启升级,首开小高3、4号楼,户型110、118、139平米;洋房7、8号楼,户型164、184平米。售楼处、样板间已开放,精装修交付。

天津绿城体北潮鸣售楼处电话:400-002-9578转6666(已认证)

天津绿城体北潮鸣售楼处电话:400-002-9578转6666【售楼中心】

温馨提示售楼中心〢预约尊享1V1品鉴礼遇〢匠心钜制-恭迎品鉴〢

免责声明(本文章所用信息图片来源于网络,如有侵权请联系本网站及时删除)

声明:本文由入驻焦点开放平台的作者撰写,除焦点官方账号外,观点仅代表作者本人,不代表焦点立场。