最新动态:苏州建屋新棠玥→售楼处电话→在售面积→房价|最新销售公告|周边配套介绍-全城热销-欢迎来电预约!
扫描到手机,新闻随时看
扫一扫,用手机看文章
更加方便分享给朋友
🌈苏州建屋新棠玥售楼处电话☎️400-002-9578转接5555(专人接听)
🌈苏州建屋新棠玥营销中心电话:☎️400-002-9578转接5555【营销中心】
🌈温馨提示:拨打400电话,听到嘀声后,输入分机号5555即可!
实景示范区即将盛大公开
建屋·新棠玥,即斜港置业斜塘86号地块项目,即,苏地2023-WG-86号地块项目,位于工业园区星塘街西、独墅湖大道北,是2023年11月29日,斜港置业以底价150039万元竞得,成交楼面价22000元/平。

该项目的地块用途为城镇住宅用地,占地面积40117.34平,建筑面积106364.42平,计容建筑面积68014.72平,容积率1.7.
根据规划,项目拟建11栋13-17F住宅,其中,1栋13F小高层、1栋14F小高层、2栋16F小高层、7栋17F小高层。

项目的产品发布会在上周举办,部分产品信息也首次发布!同时,项目预计将于近期公开实景示范区!
项目对标沧浪亭的整体设计,引入六大苏园核心场景,打造“三轴六境六园七会所”,通过“池岛-静潭-山石-水榭-草林-竹嬉”六种水岸度假生活美学,重塑当代游园体验,并且通过下沉会所、以及架空层设计,引入水景、绿植与灰空间,营造一种仿若置身一座“大园子”的体感,在建筑排布的设计主动减容,最终达成了19.8%的容积率,也就是在五分之一土地上造房,实现“低密”基因的强化,以及人均均好的景观实现。

🌈苏州建屋新棠玥售楼处电话☎️400-002-9578转接5555(专人接听)
🌈苏州建屋新棠玥营销中心电话:☎️400-002-9578转接5555【营销中心】
🌈温馨提示:拨打400电话,听到嘀声后,输入分机号5555即可!

1,这是斜塘板块的纯新盘;
2,该项目的容积率为1.7,其产品为11栋小高层,以17F小高层产品为主;
3,从效果图来看,其住宅的风格为现代化;
4,其外立面的材料为浅灰色铝板、中灰色铝板、银白色铝板、灰色型铝板、米白色石材、灰色金属格栅、香槟金铝板等;
5,项目的每层层高为3.1米;
6,根据要求,项目的住宅为全装修交付,装标要求在2000-5000元/平;
关于更多苏州楼市的楼盘信息,或者您想和其他购房小伙伴一起咨询讨论,欢迎扫描下方二维码,添加小胖君,加入小胖看房团~

两种户型出炉
建屋·新棠玥目前只公布了两种户型,分别是建筑面积约172平和215平!



🌈苏州建屋新棠玥售楼处电话☎️400-002-9578转接5555(专人接听)
🌈苏州建屋新棠玥营销中心电话:☎️400-002-9578转接5555【营销中心】
🌈温馨提示:拨打400电话,听到嘀声后,输入分机号5555即可!


效果图过程稿,非交付标准





效果图过程稿,非交付标准
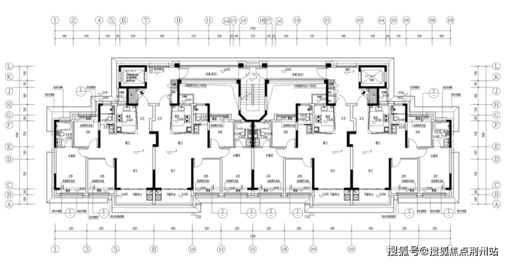
此前公示中,项目还公布了一种小高层户型!
10#,14F小高层
2梯4户

🌈苏州建屋新棠玥售楼处电话☎️400-002-9578转接5555(专人接听)
🌈苏州建屋新棠玥营销中心电话:☎️400-002-9578转接5555【营销中心】
🌈温馨提示:拨打400电话,听到嘀声后,输入分机号5555即可!
3房2厅2卫
3房2厅3卫的房屋套型
3开间朝南
客厅是方厅,开间为4米
阳台开间为4米
主卧,套房设计,有独立卫生间,主卧的开间为3.3米

周边界面 近独墅湖
建屋·新棠玥位于工业园区星塘街西、独墅湖大道北,属于斜塘板块,不过项目南面就是独墅湖板块。
周边界面来看,居住氛围也是比较浓的。
北面是住宅小区莲花新村,东面河流,南面是独墅湖大道,隔河就是住宅小区翰林缘,西面则是在建的保利珺华赋。

周边配套来看目前还是比较完备的,项目周边已经比较成熟。
交通上来看,目前距离西面最近的是8号线莲池桥站,大约在1.2公里左右,东面距离较近的是在建的6号线北斜步站,约2.0公里。
自驾是比较方便的,项目南面就是独墅湖大道,往西直接连接南环和东环,去往市区是比较方便的,东面的星塘街,可以连接奥体和独墅湖高教区。再往东面的中环东线,串联湖东、青剑湖。

🌈苏州建屋新棠玥售楼处电话☎️400-002-9578转接5555(专人接听)
🌈苏州建屋新棠玥营销中心电话:☎️400-002-9578转接5555【营销中心】
🌈温馨提示:拨打400电话,听到嘀声后,输入分机号5555即可!
声明:本文由入驻焦点开放平台的作者撰写,除焦点官方账号外,观点仅代表作者本人,不代表焦点立场。
