苏州沁沄居官方售楼处电话(沁沄居)官方首页网站-沁沄居开发商营销中心-欢迎您-楼盘详情-最新价格-户型图-容积率@2026售楼处中心
扫描到手机,新闻随时看
扫一扫,用手机看文章
更加方便分享给朋友
☎️☎️苏州沁沄居售楼处电话:400-005-0788转接5555【已认证】
☎️☎️苏州沁沄居售楼处位置:400-005-0788转接5555【售楼中心】
☎️☎️房价特价信息丨优惠政策丨详细解答丨在售房源丨在售户型图丨项目介绍丨
周边配套丨VR看房丨楼盘图丨沙盘图丨位置图丨配套图丨售楼处地址丨足不出户丨
规划已曝!墅类为主
沁沄居,即,苏地2024-WG-Z23号地块项目,位于吴中区甪直镇甫澄路西侧、南沙路南侧,是2024年10月18日,斜港置业&甪直房地产以底价54373万元竞得,成交楼面价12000元/平。

该项目的地块用途为城镇住宅用地,占地面积44422.4平,总建筑面积82546.09平,计容建筑面积45310.85平,容积率1.02
根据规划,项目拟建建26栋住宅,其中,18栋3F住宅、8栋6F住宅。
1,该项目位于吴中区甪直板块,也是板块内的限定款之一;
2,该项目的容积率为1.02,为纯低密的住宅项目;‘
3,项目的产品为叠墅和联排,以联排为主;从位置来看,南低北高;
4,根据要求,住宅的外立面为金属板材、石材、真石漆等中高端建材,项目的品质是较为高端;
5,住宅单套户型面积不得低于140平,这是一个纯改善的住宅社区;
6,项目的住宅建筑总层数6层以上的须按照不低于2000元/平标准进行前期装修,6层及6层以下的毛坯交付;

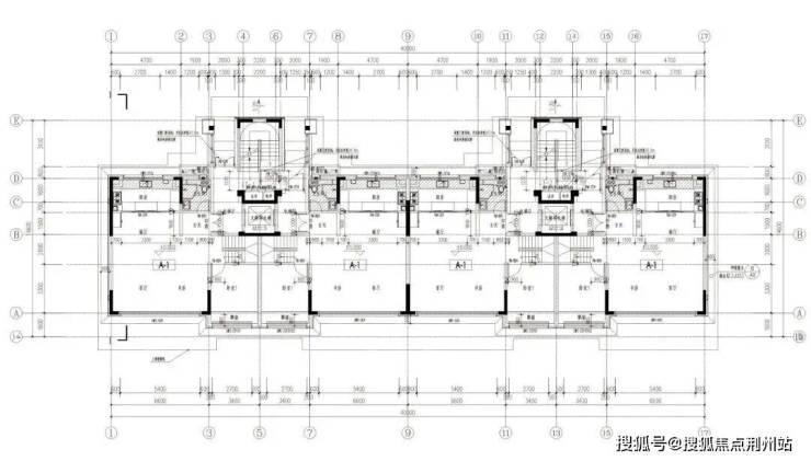
规划户型




☎️☎️苏州沁沄居售楼处电话:400-005-0788转接5555【已认证】
☎️☎️苏州沁沄居售楼处位置:400-005-0788转接5555【售楼中心】
☎️☎️房价特价信息丨优惠政策丨详细解答丨在售房源丨在售户型图丨项目介绍丨
周边配套丨VR看房丨楼盘图丨沙盘图丨位置图丨配套图丨售楼处地址丨足不出户丨
声明:本文由入驻焦点开放平台的作者撰写,除焦点官方账号外,观点仅代表作者本人,不代表焦点立场。
