武汉天创元萃售楼处电话→武汉天创元萃售楼中心电话→楼盘百科→武汉天创元萃首页网站→楼盘百科→武汉天创元萃24小时热线电话!
扫描到手机,新闻随时看
扫一扫,用手机看文章
更加方便分享给朋友
武汉天创元萃
售楼处电话▓:400-002-9578转接4444(已认证)
营销中心电话▓:400-002-9578转接4444【售楼中心】
温馨提示:售楼中心〢预约尊享1V1品鉴礼遇〢匠心钜制-恭迎品鉴〢
免责声明:本文所用信息图片来源于网络,如侵权请联系本网站及时删除
昙华林作为武汉市武昌区的地标性文化建筑群,近年来也吸引了不少本地人和游客去参观,而西城壕择址武昌内环中山路和解放路交汇处,政府重点打造的武昌滨江文化商务区与武昌古城历史风貌旅游区交汇核心板块,踞守1800年城脉正席。自「三国」孙权建夏口城肇始城脉,经「唐宋」李白、崔颢诗咏沉淀文韵,至「明清」成九省中枢商埠要地,「近代」更成为武昌起义策源地与张之洞实业兴国摇篮。这里是当之无愧的千年文明厚土,当代贵胄所往。今天要介绍的项目就坐落于这个充满历史底蕴的地方--天创元萃
天创元萃项目,即P(2025)035号地块,位于武昌区中山路与解放路交汇处西城壕B地块。规划用地面积为11771平方米,其中二类居住用地10545平方米,防护绿地479平方米,公园绿地747平方米。规划用地性质为二类居住用地、防护绿地、公园绿地。最大计容建筑面积控制在2.35万平方米以内,最高容积率约2.0,建筑高度控制在40米以内。该地块由湖北天创房地产开发集团有限公司竞得,成交价为34150万元,成交楼面价为14531.9元/m²,溢价率高达约30.6%,为近年来罕见。
01
项目基础信息
【开 发 商】:天创地产(汉阳区国企)
【项目区位】:武昌区中山路与解放路交汇处
【面 积】:建面约127㎡、142m²
【楼 层】:10~13层洋房
【装 修】:精装
【产 权】:70年
【梯 户 比】:1 梯 1 户、2 梯 2 户
【容 积 率】:2.0
【车位配比】:1:1.07
【得 房 率】:约106%~113%左右
【地 铁】:地铁 5 号线 昙华林站
【教 育】:中华路小学金都校区、粮道街中学积玉桥校区、武昌实验中学
【医 疗】:湖北省中医院、湖北省人民医院

天创元萃共规划4栋10~13层洋房住宅,总户数159户,车位170个,1 号楼1 单元为11 层,2 单元为 13 层,均为 127m²户型。2 号楼2 个单元均为 13 层,有127m²、142m²、170m² 3 个户型。3 号楼 1 单元为 10 层,142m²户型,2 单元为 12 层,127m²、142m² 2 个户型。4 号楼 2 个单元均为 13 层,有 127m²、142m²2 个户型。从平面图来看,1号楼1单元、3号楼1单元可能为非常罕见的1梯1户结构,其他单元可能均为2梯2户纯板楼结构。
02
户型赏析
元 礼丨约127m² 四房两厅三卫
该户型位于1号楼2 单元及 2、3、4 号楼的中间户,南北通透,127m²的空间做成了 4 房 3 卫,可以说是功能型拉满。独立的电梯前室,一方面归家的舒适性得到了保障,也扩大了得房率。采用大横厅设计,连接南向阳台,最大化空间感和采光。3 开间朝南,2 个卧室套房均为南向。
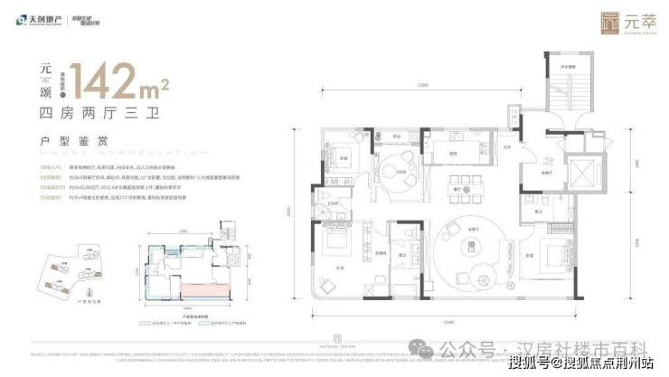
元 颂丨约142m² 四房两厅三卫
该户型位于 2号楼东边户、3 号楼西边户及 4 号楼的两端头边户,南北通透,三开间朝南,拥有独立的电梯前室,南向面宽约 15.9 米,极大限度的增加了室内的采光。双套房设计,主卧还有 270° 的全景舱观景飘窗。
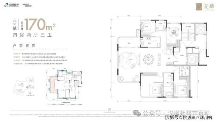
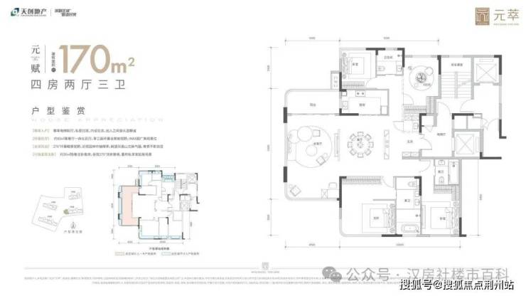
元 赋丨约170m² 四房两厅三卫
该户型位于 2号楼西边户,南北通透,拥有独立的电梯前室,约 80m²客餐厅一体化空间,双套房设计,主卧约 30m²,空间极大。客厅及主卧均配备 270° 全景舱,设计很独特。
武汉天创元萃
售楼处电话▓:400-002-9578转接4444(已认证)
营销中心电话▓:400-002-9578转接4444【售楼中心】
温馨提示:售楼中心〢预约尊享1V1品鉴礼遇〢匠心钜制-恭迎品鉴〢
免责声明:本文所用信息图片来源于网络,如侵权请联系本网站及时删除
声明:本文由入驻焦点开放平台的作者撰写,除焦点官方账号外,观点仅代表作者本人,不代表焦点立场。
