武汉福星惠誉·铂雅府(售楼处) 首页 -福星惠誉·铂雅府 销售中心 - 环境 - 户型 - 价格 - 地址 - 楼盘详情 - 配套 - 电话 - 交房时间 - 配套 -交房时间
扫描到手机,新闻随时看
扫一扫,用手机看文章
更加方便分享给朋友
武汉福星惠誉·铂雅府售楼处电话▓:400-005-0788转接4444(售楼处已认证)
武汉福星惠誉·铂雅府营销中心电话▓:400-005-0788转接4444【营销中心】
温馨提示:售楼中心〢预约尊享1V1品鉴礼遇〢匠心钜制-恭迎品鉴〢
免责声明:本文所用信息图片来源于网络,如侵权请联系本网站及时删除
福星惠誉·铂雅府热销的底层逻辑是稀缺的书包资源+项目的无死角均好。上文已经把项目的书包资源讲透了,下面咱们就来看看这个六边形神盘的其他角表现如何。
豪华的外部配套!
福星惠誉·铂雅府地处汉口核心,近香港路和建设大道。周边配套资源丰富且质量非常高!
交通出行方面:项目周边有建设大道、发展大道、解放大道三主干道,纵向有香港路、青年路、武汉大道等多条城市主干道及快速路。步行距离内有地铁3、6、7号线三地铁换乘站的香港路站。无论开车还是自驾出行都可以做到顺利畅达三镇。
香港路地铁站实景图
商业方面:武汉万象城、西北湖、武汉天地等武汉一线商圈,距离项目都非常近。而且项目步行距离内还有很多烟火气十足的老汉口风味宝藏老店。
医疗方面:湖北省中西结合医院、长航总医院、武汉儿童医院、武汉市第六医院等均在项目附近,到同济、协和也不远。
休闲方面:周边有解放公园、菱角湖公园、宝岛公园等多个二环内大型公园,是日常家庭休闲和遛娃的好去处。

极为优秀的产品力、品质感!
楼盘周边的配套资源可以说是依托自身位置“蹭”的城市发展红利。真正看一个楼盘到底如何,还是要看项目在产品打造和品质塑造方面是不是大手笔投入了、是不是精细化打造了。
福星惠誉·铂雅府毫无疑问在产品力和品质感,这两个楼盘自身内部指标方面下了大功夫。
高得房率与高舒适度兼顾!
福星惠誉·铂雅府是准四代住宅,当期在售户型优化后超90%的高得房率,同时各个空间尺度很足,空间感和舒适度很到位。
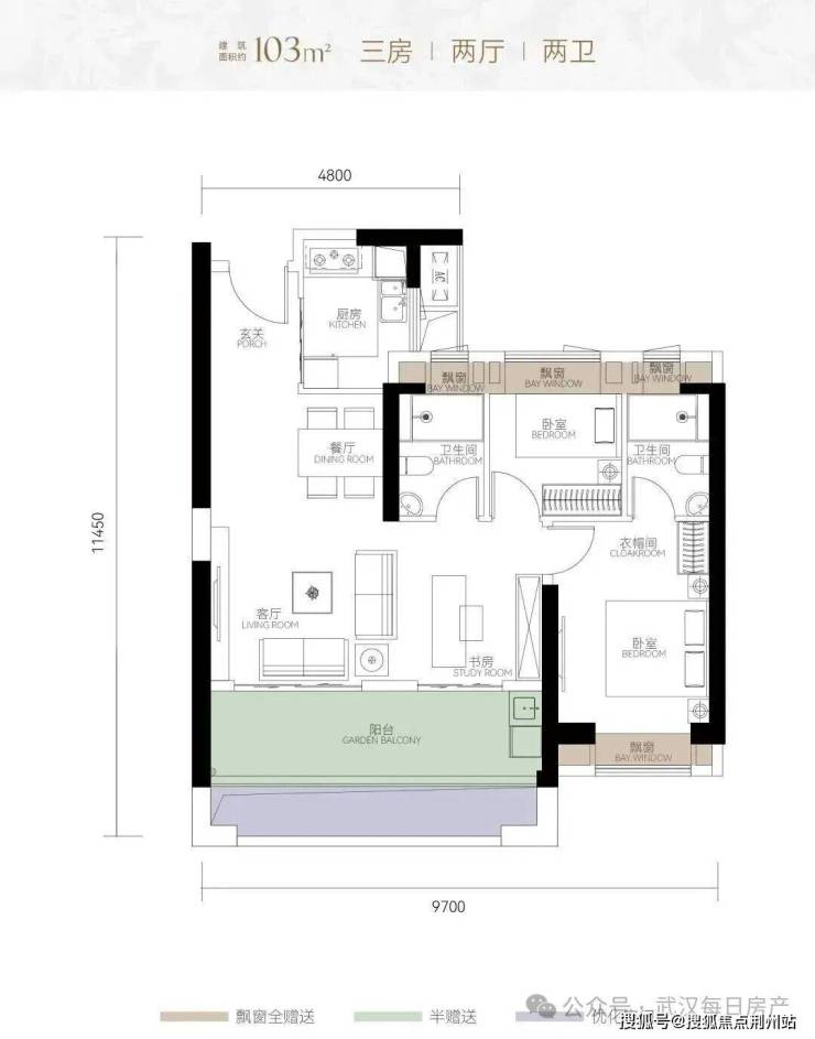
建面约103平,三房两厅两卫:
中间户,北部房间为连廊,依靠连廊可实现室内通透。南向大阳台+大花池,极大拓展了室内空间,同时大幅提升了室内采光面。
该户型还有一大亮点就是设计更灵活,业主可以根据自身实际情况,决定是呈现大横厅还是三开间朝南的三房,无论怎么设计,居住舒适度都很高。
建面约135平,3+1房两厅两卫:
端头边户,南北通透,三开间朝南。该户型做到了三面空间可拓展,南向大阳台+大花池,提升了客餐厅的使用空间;5个飘窗可全优化,优化后房间整体更方正,空间感更强。因为户型方正,该户型后期可以做成大横厅+大两房、大三房或3+1房等不同的设计,购房者可根据个人需求,或家庭成员的变化,实现户型的“成长”。
该户型优化后得房率相当于市面上部分三代住宅建面约160平(按照公摊25%计算)的套内空间。这样户型既保证了每个房间的空间感,又体现了享受生活的改善理念。

武汉福星惠誉·铂雅府售楼处电话▓:400-005-0788转接4444(售楼处已认证)
武汉福星惠誉·铂雅府营销中心电话▓:400-005-0788转接4444【营销中心】
温馨提示:售楼中心〢预约尊享1V1品鉴礼遇〢匠心钜制-恭迎品鉴〢
免责声明:本文所用信息图片来源于网络,如侵权请联系本网站及时删除
声明:本文由入驻焦点开放平台的作者撰写,除焦点官方账号外,观点仅代表作者本人,不代表焦点立场。
