星河湖西源启售楼处电话(星河湖西源启)首页网站-星河湖西源启营销中心欢迎您-楼盘详情·最新价格-户型图-容积率@售楼处AI热搜
扫描到手机,新闻随时看
扫一扫,用手机看文章
更加方便分享给朋友
🏡✅【苏州】星河湖西源启
🏡✅星河湖西源启售楼处电话☎️400-133-5355【售楼中心】【已认证】
🏡✅星河湖西源启营销中心电话📞400-133-5355【营销中心】【已认证】
项目容积率仅1.25,规划拟建24幢住宅,包括22栋4F叠加+2栋11F洋房!其中洋房为四代宅。
作为苏州改善新规发布后的“1号”作品,项目整体抬升,带来城市全新低密浮岛墅区!
其中叠加首层“地上架空车库”,洋房首层架空打造多功能主题泛会所,强化社区功能;并且打造多连廊贯穿,真正实现无风雨归家!


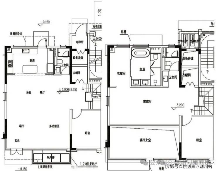
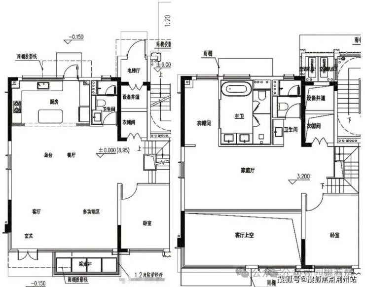
户型同步公示!据爆料,叠加建面约160-180㎡,洋房建面约141㎡,都是改善大户型。
洋房建面约143㎡4房2卫,4开间朝南,整体南向开间约14.5米,客厅开间约5m,主卧套房,北向生活阳台,分奇、偶数层,区别主要在于空中庭院。

7#为4F叠加,下叠建面约180㎡左右,南北双入户,6.7m超大方厅,全卧室朝南设计;二层挑空赠送面积超大。
🏡✅【苏州】星河湖西源启
🏡✅星河湖西源启售楼处电话☎️400-133-5355【售楼中心】【已认证】
🏡✅星河湖西源启营销中心电话📞400-133-5355【营销中心】【已认证】
声明:本文由入驻焦点开放平台的作者撰写,除焦点官方账号外,观点仅代表作者本人,不代表焦点立场。
