苏州澜庭壹号院售楼处电话→户型→地址→【营销中心】苏州澜庭壹号院最新价格→楼盘详情→最新销售动态
扫描到手机,新闻随时看
扫一扫,用手机看文章
更加方便分享给朋友
苏州澜庭壹号院售楼处电话▓:400-002-9578转接4444(售楼处已认证)
苏州澜庭壹号院营销中心电话▓:400-002-9578转接4444【营销中心】
温馨提示:售楼中心〢预约尊享1V1品鉴礼遇〢匠心钜制-恭迎品鉴〢
免责声明:本文所用信息图片来源于网络,如侵权请联系本网站及时删除
苏州高新产业新城建设发展有限公司以3.6亿元拿下。地块容积率仅1.02,周边生态优势突出,南面是苏州乐园森林水世界,西面紧邻大阳山森林公园,属于罕见的一线山景宅地,未来大概率会开发低密山景别墅。
苏州澜庭壹号院(备案名:晓月澜院)是位于苏州高新区狮山商务创新区的高端低密住宅项目,由苏高新集团与绿城管理联合开发。以下是该项目的关键信息:
项目概况
位置:狮山商务创新区向阳路南、大运路西,紧邻苏州外国语学校,周边交通便利,距离地铁5号线石城站约500米,1号线汾湖路站约800米。
产品类型:包括17栋3层联排合院、2栋6层叠加别墅、2栋10层精装洋房,总户数约205户,容积率1.2,绿化率30%,低密属性稀缺。
户型面积:
联排合院:约380-528㎡(含地下室),主力户型为380㎡、470㎡、528㎡,总价1212万-2433万元。
叠加别墅:约265-338㎡(含地下室)。
精装洋房:约115㎡、135㎡。
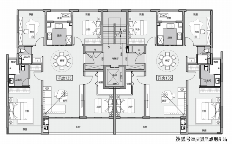
狮山·澜庭壹号院容积率为1.2,绿地率30%,打造低密墅区,主打家庭全生命周期需求。规划21栋住宅,包括17栋3F联排和2栋6F叠墅和2栋10F洋房。
墅境洋房:主力建面约135㎡,精装修交付。

建面约135平米的户型,阳台开间约7.75米,南向开间约11.45米,主卧套房,开间3.7米。
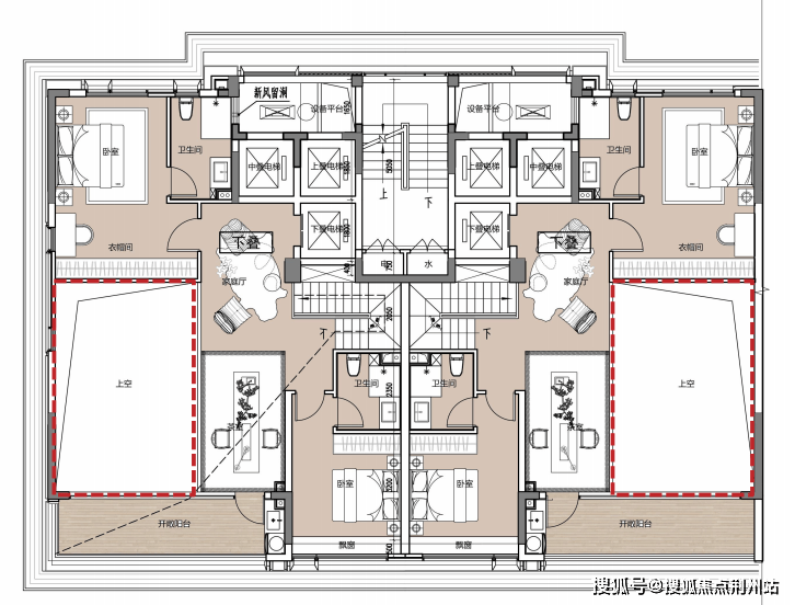
17栋3F联排:建面约265㎡/325㎡/370㎡,二层挑空、三层带露台,总共仅69套,堪称狮山“绝版”资源。
建面约265㎡4房3厅4卫户型如下:二层挑空、三层带露台,超高使用面积。

2栋6F叠墅:建面约230㎡/245㎡/270㎡下叠带私家庭院,客厅挑空+南向大阳台,每户有独立入户电梯,仅36套。
下叠一层平面图如下:南向面宽约10.3米。

下叠二层平面图如下:客厅挑空,得房率超90%。

配套方面,项目双地铁,靠近轨交1号线靠近轨交1号线汾湖路站、5号线石城站(约500米),毗邻苏州外国语学校,周边有美罗、泉屋、龙湖狮山天街等商业体,紧邻狮山商务创新区核心,后劲十足
四代宅洋房:约156-190㎡,户户带空中露台,南向大面宽设计。

瞰景叠墅:约220-260㎡,每层独立空间,互不干扰。



瞰景叠墅:约286-316㎡,上带露台,下设宽敞生活空间。
苏州澜庭壹号院售楼处电话▓:400-002-9578转接4444(售楼处已认证)
苏州澜庭壹号院营销中心电话▓:400-002-9578转接4444【营销中心】
温馨提示:售楼中心〢预约尊享1V1品鉴礼遇〢匠心钜制-恭迎品鉴〢
免责声明:本文所用信息图片来源于网络,如侵权请联系本网站及时删除
声明:本文由入驻焦点开放平台的作者撰写,除焦点官方账号外,观点仅代表作者本人,不代表焦点立场。
