无锡华侨城雲湖别院官方售楼处电话(无锡华侨城雲湖别院)首页官方网站-无锡华侨城雲湖别院营销中心欢迎您-楼盘详情·最新价格-户型图-容积率@2026售楼处✦
扫描到手机,新闻随时看
扫一扫,用手机看文章
更加方便分享给朋友
无锡雲湖别院售楼处电话▓:400-005-0788转接4444(售楼处已认证)
无锡雲湖别院营销中心电话▓:400-005-0788转接4444【营销中心】
温馨提示:售楼中心〢预约尊享1V1品鉴礼遇〢匠心钜制-恭迎品鉴〢
免责声明:本文所用信息图片来源于网络,如侵权请联系本网站及时删除
作为华侨城布局无锡经开核芯区的重要作品,雲湖别院院式大平层已经交付。秉承了华侨城一贯的“在花园中建城市”规划理念,结合无锡城市自然文化特色,打造一座与城市共和的自然艺术社区。纯叠墅地块为容积率仅约1.24的臻稀低密墅境,亲地建筑与六大自然园境是亲密联结的,在植物与光影的编织中,让人沉浸在院落自然的怀抱里。
雲湖别院作为当前经开芯热销的低密产品,容积率约1.7,打造14栋墅境小高层,8栋艺境叠墅,稀缺性立显。
以江南绿意勾画建筑的底色,融合大面灰色铝板立面,横向勾勒铝板线条及超宽屏的采光面,实现超高南向窗墙比和超阔观景视野,与内外风景相得益彰,兼具当代审美与属地特色,让建筑与艺术相互成就。

院式大平层地块则著建洲岛花园、河谷童趣、冥想花园、元气健身等意趣空间,唤回城市人群在都市中向往已久的那份惬意、松弛、自如的生活状态,趣享一部富有生命的“自然艺术作品”。

A区城市纯墅区,以江南至高礼遇的“院中园、园中院”为设计原点,打造一轴六园逸游十景的怡然逸境,以自然笔触描绘度假式理想生活。B区小高层区,以太湖涟漪为设计灵感,打造一轴一环三组团六花园。
经开少有的低密纯墅产品,建筑面积约180-310㎡;匠著地上双层多开间采光宽境、南向度假式天地院落、南北星空双露台;并探索家庭社交、高朋会晤的私密性需求,将地下约5.2米挑高空间锻造成约100㎡的私人会所。
将景观无界延展到楼幢下,营造打破邻里情感边界的「无界泛趣」架空层,以长者空间、轻氧运动、亲子互动、全龄休闲的主题业态,重新激发更高频、多元的邻里场景,让心灵得到放松和滋养,重塑社区精神高地。
下叠【院隐】户型建面约310㎡,4室2厅4卫的三层院墅,地上六开间朝南,地下约5.2米挑高空间打造近100㎡私人会所;一楼超大南向度假式庭院与客厅相通,近50㎡全龄社交会客厅,采光视野媲美大平层。
建面约180㎡上叠【观雲】户型,上下双层南向六开间,270°环幕式方厅,客厅与四个卧室均朝南,充分享受阳光平权,私享近40㎡南北双露台,打破空间边界化,尽揽园区自然与城市繁华双重奢景。
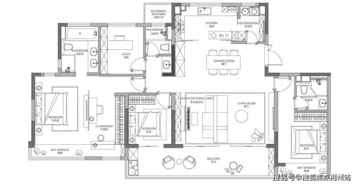
建筑面积约128-183㎡院式大平层,以专梯入户、私厅独立玄关,为业主营造日常归家的
仪式场景;最大达19米南向四开间,酒店式套房设计,探索心灵回归和自我释放的情绪空间;270°巨幕大阳台,装得下“植物爱好者”的私家花园……
建面约183㎡户型实景图
无锡雲湖别院售楼处电话▓:400-005-0788转接4444(售楼处已认证)
无锡雲湖别院营销中心电话▓:400-005-0788转接4444【营销中心】
温馨提示:售楼中心〢预约尊享1V1品鉴礼遇〢匠心钜制-恭迎品鉴〢
免责声明:本文所用信息图片来源于网络,如侵权请联系本网站及时删除
声明:本文由入驻焦点开放平台的作者撰写,除焦点官方账号外,观点仅代表作者本人,不代表焦点立场。
