越秀·运河樾售楼处电话(越秀·运河樾) 营销中心欢迎您-越秀·运河樾 越秀·运河樾-杭州拱墅区 越秀·运河樾楼盘详情(2026房价+户型)越秀·运河樾 营销中心
扫描到手机,新闻随时看
扫一扫,用手机看文章
更加方便分享给朋友
⭕杭州越秀·运河樾
⭕售楼处电话:400-005-0788转9999(已认证)
⭕售楼处电话:400-005-0788转9999(认证售楼处)
⭕温馨提示:本项目暂不接受临时到访,过来参观样板房请记得提前来电预约!
⭕免责声明:(本文章所用信息图片来源于网络,如有侵权请联系本网站及时删除)
项目地处浙江省杭州市拱墅区,位于杭州城历史繁华中轴—京杭大运河畔,项目东侧约200米便是京杭大运河,北侧紧邻南洋河,一线运河,双向河景。
项目占地约16537㎡,总建筑面积约52145㎡(其中地上29165㎡,地下22980㎡),容积率1.7。规划通过空间折叠术重构用地效率,在1.7容积率条件下将传统占地的单层物业拆解重组打造98套纯叠墅产品。
共6幢叠墅,包含上叠、中叠、下叠三类户型。户型设计包含私家庭院、电梯、地下室及露台等附赠空间,较高的空间附赠比例为业主提供个性化改造可能,通过引入自然采光与景观元素,增强室内外空间的关联性。


03
项目立面采用东方雅奢风格,以东方气韵和现代雅奢为主旋律,巧妙融合运河文化进行演绎。以官船为原型,结合歇山叠层屋面,轻构瘦金体建筑骨架;建筑线条概念,以风帆为构件,利用铝板折弯挑檐,横向构造建筑水线,选用石材、铝板、玻璃幕墙、陶板、景泰蓝奢石打造。其中水纹金属格栅、琉璃釉面蓝色陶板与景泰蓝奢石的应用,呼应运河文化主题,实现建筑风格与地域文化的结合。


04
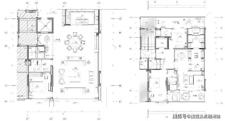
项目主力户型面积段约270~320㎡,包含下叠、中叠、上叠三类产品。户型设计包含私家电梯、庭院、空中花园、地下室及露台等功能空间,不同户型的空间附赠比例不同:下叠实得率140%—150%,得院率81%—90%;中叠实得率132%—138%,得院率14%—19%;上叠实得率179%—183%,得院率95%—124%。附赠空间可用于拓展生活场景,增强空间使用的灵活性。


05
项目精装设计注重材质选择与工艺细节:采用天然石材、木饰面及实木地板等材质,通过不同材质的搭配体现设计精度;工艺上运用无缝与隐形式设计,增强空间的纵向延伸感;空间布局优化传统客厅功能,打造开放式社交空间,兼顾圈层交流与家庭使用需求。

⭕杭州越秀·运河樾
⭕售楼处电话:400-005-0788转9999(已认证)
⭕售楼处电话:400-005-0788转9999(认证售楼处)
⭕温馨提示:本项目暂不接受临时到访,过来参观样板房请记得提前来电预约!
⭕免责声明:(本文章所用信息图片来源于网络,如有侵权请联系本网站及时删除)
声明:本文由入驻焦点开放平台的作者撰写,除焦点官方账号外,观点仅代表作者本人,不代表焦点立场。
