保利世博天悦官方售楼处电话→上海保利世博天悦售楼中心电话→2026年保利世博天悦楼盘百科→首页网站→楼盘测评→售楼中心电话→楼盘百科→24小时热线电话
扫描到手机,新闻随时看
扫一扫,用手机看文章
更加方便分享给朋友
上海保利世博天悦售楼处电话▓:400-005-0788转接4444(售楼处已认证)
上海保利世博天悦营销中心电话▓:400-005-0788转接4444【营销中心】
温馨提示:售楼中心〢预约尊享1V1品鉴礼遇〢匠心钜制-恭迎品鉴〢
免责声明:本文所用信息图片来源于网络,如侵权请联系本网站及时删除
在上海世博板块的黄金坐标上,保利世博天悦正以全新姿态重新定义高端居住体验。这里不仅是城市发展的核心引擎,更是一处融合国际视野与东方智慧的品质住区。项目距离黄浦江直线约80米,并且前方任何遮挡,真正的一线江景豪宅。
12号洋房共29户,一梯一户,保证了安静与独立感。
厨房与餐厅直连,卧室有独立走廊,生活动线与访客动线互不干扰。客厅、餐厅和岛台厨房形成横向展开的大空间,尺度感强烈,适合社交、家庭聚会。
大面落地窗让自然光贯穿公共区,提升空间通透感。餐桌和客厅沙发朝向均有良好景观面,江景或城市景观成为室内背景。
私密卧室和开放客厅完全分开。形成明确的动静分区。主卧套间独立而舒展,配备更衣与浴缸,强调居住的舒适度与安静边界。次卧与公共卫浴则满足家庭多样化需求。

▲样板间实景图 ©一起设计
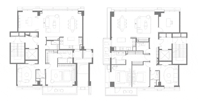
其他一梯一户户型图如下:


上海保利世博天悦售楼处电话▓:400-005-0788转接4444(售楼处已认证)
上海保利世博天悦营销中心电话▓:400-005-0788转接4444【营销中心】
温馨提示:售楼中心〢预约尊享1V1品鉴礼遇〢匠心钜制-恭迎品鉴〢
免责声明:本文所用信息图片来源于网络,如侵权请联系本网站及时删除
声明:本文由入驻焦点开放平台的作者撰写,除焦点官方账号外,观点仅代表作者本人,不代表焦点立场。
