苏州沁沄居官方售楼处电话(沁沄居)官方首页网站-沁沄居开发商营销中心-欢迎您-楼盘详情-最新价格-户型图-容积率@2026售楼处中心
扫描到手机,新闻随时看
扫一扫,用手机看文章
更加方便分享给朋友
苏州沁沄居售楼处电话▓:400-005-0788转接4444(售楼处已认证)
苏州沁沄居营销中心电话▓:400-005-0788转接4444【营销中心】
温馨提示:售楼中心〢预约尊享1V1品鉴礼遇〢匠心钜制-恭迎品鉴〢
免责声明:本文所用信息图片来源于网络,如侵权请联系本网站及时删除
前几年的甪直,靠着园区东的头衔曾红极一时,板块内多盘都是当年的流量红盘。
只不过现在随着供地减少+多盘接近销售尾声,市场声音渐弱。
但接下来,甪直板块将迎来一波上新,其中关注度最高的,就是纯别墅新盘沁沄居,即下图甪直23号地块。
这也是甪直首个纯别墅新盘,容积率低至1.02,由18幢3F联排+8幢6F叠墅组成。
地块外部条件也非常好,两面环水,加上纯墅区业态,未来居住舒适度非常高。
目前部分户型一层平面图已经公示。
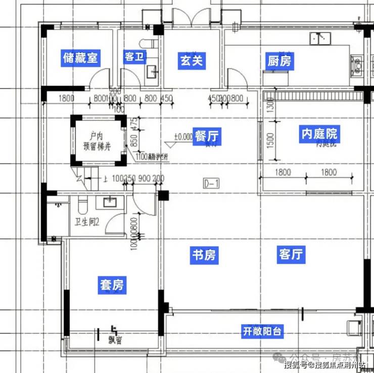
先看2#联排,4户,1F层高约3.6米,2F/3F层高约3.3米。
以东西边户为例,首层设置餐客厅、厨房、书房、套房、卫生间以及内庭院,空间非常开阔。
15#联排,4户,1F层高约3.6米,2F/3F层高约3.3米。

这个户型相对小一点,以东西边户为例,一层配置餐客厅、厨房、次卫、次卧以及内庭院等。
叠墅两梯四户设计,电梯双开,相当于一梯一户;
入户内外独立玄关,南向开间约10米,南向1个卧室,北向独立厨房+客卫,餐客厅一体化。
楼盘位置在甪直镇甫澄路西侧、南沙路南侧,隔壁就是城投新盘熙和云起雅园;
周边教育资源丰富,南侧紧邻规划幼儿园,人教社附属实验小学、甪直高级中学都在附近。
苏州沁沄居售楼处电话▓:400-005-0788转接4444(售楼处已认证)
苏州沁沄居营销中心电话▓:400-005-0788转接4444【营销中心】
温馨提示:售楼中心〢预约尊享1V1品鉴礼遇〢匠心钜制-恭迎品鉴〢
免责声明:本文所用信息图片来源于网络,如侵权请联系本网站及时删除
声明:本文由入驻焦点开放平台的作者撰写,除焦点官方账号外,观点仅代表作者本人,不代表焦点立场。
