2025深圳 后海招商玺(售楼处) 首页-后海招商玺营销售中心-环境-户型-价格-地址-楼盘详情-配套-电话-交房时间-配套-电话-交房时间
扫描到手机,新闻随时看
扫一扫,用手机看文章
更加方便分享给朋友
后海招商玺
☎️售楼处电话:400-179-0800【售楼中心】
💌 网上售楼中心〢安全通话隐藏真实号码〢一对一热情服务〢
✅售户型图丨项目介绍丨最新房源丨周边配套丨详细解答〢营销中心✅

招商蛇口继 “招商双玺” 后打造的「后海招商玺」后,在后海布局的又一高端作品。
开发商:招商地产
🔻占地面积:1.496万㎡
🔻总建面:9.87万㎡
🔻产权:70年(25-95年)
🔻总户数:548户(首推261户)
🔻面积:186-196-237-247㎡4-5房
🔻车位比:1:1.28总车位:700个)
🔻梯户比:4梯5户/1梯1户
🔻交楼标准:精装
🔻物业公司:招商物业
🔻物业管理费:3.5元/㎡
🔻容积率:6.5
🔻绿化:35%
🔻交楼时间:28年底
🔻建筑类型:住宅
🔻层高:3.3米
🔻使用率:90-95%
🔻楼层高:3栋39-41层超高层和1栋21层高层
🔻栋数:5栋(4栋住宅1栋公寓)
🔻水电:民水民电
🔻学校:育才二小」和「育才三中」配建的九年制学校。🔻商业2100㎡
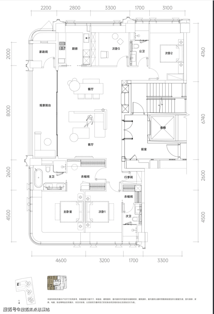
197㎡4-1房3卫
237㎡4+1房3卫

平面•户型图
今年首开1栋的小高层住宅,约42套197-237㎡四房大平层。
户型结构,采用核心筒+边柱设计,确保户型多样化,且赠送率、阳台率最大化,算上专梯入户使用率预计能达100%左右。
这次「后海招商玺」住宅设计采用“浮岛甲板”设计策略,四栋住宅落于甲板之上,独享甲板庭院花园。进而形成超级社区底盘 + 浮岛绿化甲板的垂直共生人居标杆。

197㎡四+1房三卫户型阳台达8米采用板式结构,南北通透,专梯入户 通风和视野条件优越。双套房,主卧套房配备独立衣帽间和卫生间

237㎡4+1房3卫户型阳台达11.8米,采用270°全景阳台最大化采光和观景效果,功能分区做得很好。采用一户一梯专梯入户,南北通透结构,是整个南山里非常稀缺的户型

后海招商玺
☎️售楼处电话:400-179-0800【售楼中心】
💌 网上售楼中心〢安全通话隐藏真实号码〢一对一热情服务〢
✅售户型图丨项目介绍丨最新房源丨周边配套丨详细解答〢营销中心✅
声明:本文由入驻焦点开放平台的作者撰写,除焦点官方账号外,观点仅代表作者本人,不代表焦点立场。
