南山璞缦官方售楼处电话(南山璞缦)官方网站-南山璞缦营销中心欢迎您-楼盘详情•最新价格-户型图-容积率-2026.3.7售楼处
扫描到手机,新闻随时看
扫一扫,用手机看文章
更加方便分享给朋友
☎️☎️南山璞缦售楼处电话:400-005-0788转接5555【已认证】
☎️☎️南山璞缦售楼处位置:400-005-0788转接5555【售楼中心】
☎️☎️房价特价信息丨优惠政策丨详细解答丨在售房源丨在售户型图丨项目介绍丨
周边配套丨VR看房丨楼盘图丨沙盘图丨位置图丨配套图丨售楼处地址丨足不出户丨
更值得称道的是,项目四期还带来仅32席约198m²奢阔大平层,
据克而瑞数据显示,嘉定2015-2025年十年内,约一千套新房仅3套面积约200㎡的大宅,想在嘉定住上真正的“豪宅级”大平层?机会真的少得可怜!
这就是嘉定城芯楼市里的“稀有物种”!是真正懂行的改善家庭、高净值人群紧盯着的“藏品”。
最新消息!嘉定南门,国匠南山2024年度封面之作【南山·璞缦】热卖中!
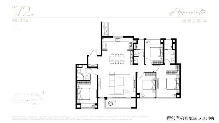
推售建面约105-123-143-172-198㎡3-4房
均价45675元/㎡,总价420万起

上车首选户型!建面约105㎡的房源,主力总价段约400万级,这个价位段能买到嘉定品质标杆,绝对的性价比。
改善宽奢3房!标准的长面宽、短进深户型,再加上大宽厅的设计,采光面非常出众。另外,宽厅除了增加南向采光面外,还能作为一个灵动空间,不管是用作健身区域、瑜伽空间还是孩子的游玩天地,都是极佳的选择。
一步到位的宽奢4房!这是一个超大横厅的飞机户型,尺度感超强,餐厅甚至能放下一个8人桌,让一家人享受天伦。
双套房的设计更是让各个家庭成员都能享受到私密空间。
☎️☎️南山璞缦售楼处电话:400-005-0788转接5555【已认证】
☎️☎️南山璞缦售楼处位置:400-005-0788转接5555【售楼中心】
☎️☎️房价特价信息丨优惠政策丨详细解答丨在售房源丨在售户型图丨项目介绍丨
周边配套丨VR看房丨楼盘图丨沙盘图丨位置图丨配套图丨售楼处地址丨足不出户丨
终极改善的顶奢4房!极端宽奢的南北通透户型飞机户型,你能想象到的美好都能在这个户型中体验到。
卷精装卷细节 超硬核产品力装标全线公开!
中央空调:日立、松下、东芝(或同档次品牌);地暖:博世(或同档次品牌);新风:迈迪龙(或同档次品牌);西门子、博世(或同档次品牌)厨房三件套;弗兰卡(或同档次品牌)厨房洗涤盆及龙头;名族、雷士、三雄极光(或同档次品牌)厨房凉霸;怡口(或同档次品牌)末端直饮;高仪、汉斯格雅、当代(或同档次品牌)卫生间龙头;恩仕(或同档次品牌)马桶。


2023年10月24日,上海第三批次土拍中,南山以总价175602万元成交嘉定工业区南门社区JDC1-0801、JDC1-0802单元44-08地块,地块出让面积34703.9㎡,容积率2.3。溢价率0%,楼板价22000元/㎡,房地联动价46000元/㎡。
项目四至范围东至沪宜公路,西至群裕路,南至基地边界,北至沪宜公路。
根据设计方案显示,项目拟建12幢14-18F住宅(含保障房)以及其他配套用房等建筑,规划共计702户。

具体经济指标:

☎️☎️南山璞缦售楼处电话:400-005-0788转接5555【已认证】
☎️☎️南山璞缦售楼处位置:400-005-0788转接5555【售楼中心】
☎️☎️房价特价信息丨优惠政策丨详细解答丨在售房源丨在售户型图丨项目介绍丨
周边配套丨VR看房丨楼盘图丨沙盘图丨位置图丨配套图丨售楼处地址丨足不出户丨
根据土地转让合同要求,项目全装修交付,装修标准2000元/m²(集采价格)
形颂|俯仰一城高定的原点
透过一幢建筑的威仪,我们可以洞鉴一个时代的立意。
南山·璞缦,融入海派元素。横向近45米的面宽展翼风格,立于城中路起点,为主城打造区域昭示性建筑。
墙体采用雪山蓝石材,搭配香槟色铝板,普拉达绿石材、安哥拉黑石材、真石漆保温一体板与大面积落地玻璃,叠水小品迎宾启幕归家礼序。
景观雕塑,将“缦奢归璞”所追求的圈层礼制得以具象。敕造奢阔实景,境现嘉定主城高阶圈邻。
境颂|平移双轴六景的浪漫
项目园林对轴线的运用同样出彩,堪称神来之笔的“双轴六境”,由“礼序归家轴+景观漫步轴”纵横交织,融在地文化,以“非遗”竹编形制,铺陈园林步道,同步淬取“州桥壁落”、“紫藤熏风”、“天水远香”等嘉定古今6景,提炼细节元素及专属色系,营造主题园林空间。

在南山·璞缦的中心景观区,艺术草坪中心特设以“秋霞丹赪”为设计理念的艺术雕塑,让归家礼序徜徉于一个层层递进的轴线式院落,水韵造景、非遗文脉、森态曲径皆在其中,这样富有生活意趣的艺术设计俯拾皆是,为的就是给即将栖居在此的知交,一种更超脱,更关注精神向往的生活方式。

☎️☎️南山璞缦售楼处电话:400-005-0788转接5555【已认证】
☎️☎️南山璞缦售楼处位置:400-005-0788转接5555【售楼中心】
☎️☎️房价特价信息丨优惠政策丨详细解答丨在售房源丨在售户型图丨项目介绍丨
周边配套丨VR看房丨楼盘图丨沙盘图丨位置图丨配套图丨售楼处地址丨足不出户丨
声明:本文由入驻焦点开放平台的作者撰写,除焦点官方账号外,观点仅代表作者本人,不代表焦点立场。
