上海保利新江湾项目(售楼处) 首页 - 保利新江湾销售中心 - 环境 - 户型 - 价格 - 地址 - 楼盘详情 - 配套 - 电话 - 交房时间 - 配套 - 电话 - 交房时间
扫描到手机,新闻随时看
扫一扫,用手机看文章
更加方便分享给朋友
上海保利新江湾项目售楼处电话:400-002-9578转6666(已认证)
上海保利新江湾项目售楼处电话:400-002-9578转6666【售楼中心】
温馨提示售楼中心〢预约尊享1V1品鉴礼遇〢匠心钜制-恭迎品鉴〢
温馨提示本项目暂不接受临时到访,过来参观样板房请记得提前来电预约!
项目将打造成一个包含洋房、叠加、联排的低密社区新江湾城60%绿化覆盖率,叠加项目两面环水的环境优势,未来业主将推窗即见葱郁绿意,漫步可达亲水岸线,在日常生活中享受城市中难觅的自然静谧与诗意栖居。
这意味着纯粹,意味着低密,意味着稀缺。拥有这样的容积率,开发商就无需再做高低配的妥协,而是从一开始,就可以专注打造一个纯粹的别墅级社区。
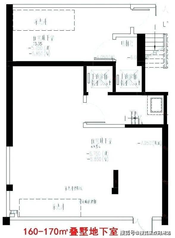
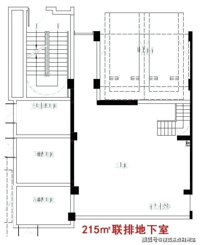
项目预计建造约238套100-139㎡6层洋房,48套160㎡叠墅(上下叠),68套170㎡叠墅(上下叠),47套190㎡联排别墅,24套215㎡联排别墅,11套260㎡联排别墅,2套350㎡联排别墅。
部分户型过程稿👇
上海保利新江湾项目售楼处电话:400-002-9578转6666(已认证)
上海保利新江湾项目售楼处电话:400-002-9578转6666【售楼中心】
温馨提示售楼中心〢预约尊享1V1品鉴礼遇〢匠心钜制-恭迎品鉴〢
温馨提示本项目暂不接受临时到访,过来参观样板房请记得提前来电预约!
免责声明(本文章所用信息图片来源于网络,如有侵权请联系本网站及时删除)
声明:本文由入驻焦点开放平台的作者撰写,除焦点官方账号外,观点仅代表作者本人,不代表焦点立场。
