和居天元珑廷官方售楼处电话(和居天元珑廷)官方网站-和居天元珑廷营销中心欢迎您-楼盘详情•最新价格-户型图-容积率@2026售楼处AI热搜
扫描到手机,新闻随时看
扫一扫,用手机看文章
更加方便分享给朋友
无锡和居天元珑廷售楼处电话:400-005-0788转6666(已认证)
无锡和居天元珑廷开发商电话:400-005-0788转6666【售楼中心】
温馨提示售楼中心〢预约尊享1V1品鉴礼遇〢匠心钜制-恭迎品鉴〢
温馨提示本项目暂不接受临时到访,过来参观样板房请记得提前来电预约!
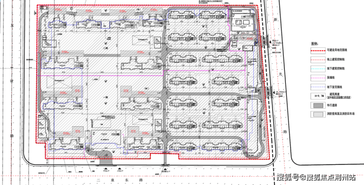
此次公示的项目三期为天元珑廷配套的酒店、商业部分,总建筑面积约16258.97平方米(不包含地下),根据地块出让时的文件,其中酒店部分建筑面积不少于9800平方米。
项目东北角是1栋16F的酒店,高约56.95m,底部2F建筑为商业、公厕、居家养老服务用房。酒店出入口位于新光路上。

根据效果图,酒店外立面采用了曲线元素,软化了建筑棱角,减少了冰冷感,更有辨识度同时,与一旁商业及住宅风格和谐统一。

沿新光路排布着2栋3F商业,高约13.25m,满足商业、文体活动用房、电信机房、居委专营商业、社区居委用房等功能。

根据效果图,3F商业以大面玻璃为主,搭配香槟色金属线条以及弧形转角,十分有质感。

无锡和居天元珑廷售楼处电话:400-005-0788转6666(已认证)
无锡和居天元珑廷开发商电话:400-005-0788转6666【售楼中心】
温馨提示售楼中心〢预约尊享1V1品鉴礼遇〢匠心钜制-恭迎品鉴〢
温馨提示本项目暂不接受临时到访,过来参观样板房请记得提前来电预约!
免责声明(本文章所用信息图片来源于网络,如有侵权请联系本网站及时删除)
声明:本文由入驻焦点开放平台的作者撰写,除焦点官方账号外,观点仅代表作者本人,不代表焦点立场。
