星河·湖西源启售楼处电话→星河·湖西源启售楼中心电话→2026年星河·湖西源启楼盘百科→首页网站→楼盘测评→售楼中心电话→楼盘百科→24小时热线电话
扫描到手机,新闻随时看
扫一扫,用手机看文章
更加方便分享给朋友
星河·湖西源启
🌈🔥售楼处电话 ☎️400-005-0788转接3333【售楼中心】【已认证】
🌈🔥营销中心电话☎️400-005-0788转接3333【营销中心】【已认证】
🌈🔥售楼中心 〢预约尊享1V1品鉴礼遇 〢匠心钜制-恭迎品鉴〢
免责声明:【本文所用信息图片来源于网络,如侵权请联系本网站及时删除】
这一创新设计在天津、杭州楼市早有案例,就拿杭州大家咏月明庐为例,采用6米架空车库+5.6米架空层设计,将首层住宅标高提升近12米。
这样一来,整个居住组团如同被一座恢弘的空中平台托起,车库隐匿于平台之下,社区生活场景悉数铺陈于平台之上,传统意义上的 “一楼”约等同于常规建筑的 “四楼”。
更直白一点,它就像传统的吊脚楼,生活空间被抬离地面,一楼隐私差、采光差以及潮湿等问题迎刃而解。
其次,社区抬板后,人车可以做到完全分离,大大提升社区的安全性与安静度。
还有过去大家避而远之的配电房、垃圾房等都可以设置在1楼,2楼也能留出更多空间打造园林景观。
拟建24幢住宅,包括22栋4F叠加+2栋11F四代宅洋房,其中叠加共约194套,洋房约88套。
项目所有楼栋抬高约5.1米上盖,即首层全架空设计,过去的一楼在这里相当于二楼,视野更加开阔!
其次,配电房、垃圾房等功能性配套,均设置于与外部道路齐平的底层空间,实现了居住层与设备区的完全剥离,规避了传统社区因配套分布不均导致的楼栋价值差异,真正做到栋栋均好,无优劣之分。

自带约1500㎡下沉式会所,包含游泳池、健身房、瑜伽馆、私宴庭、室内高尔夫等丰富功能。
物业为国家一级物业管理资质的金钥匙物业——星河物业。
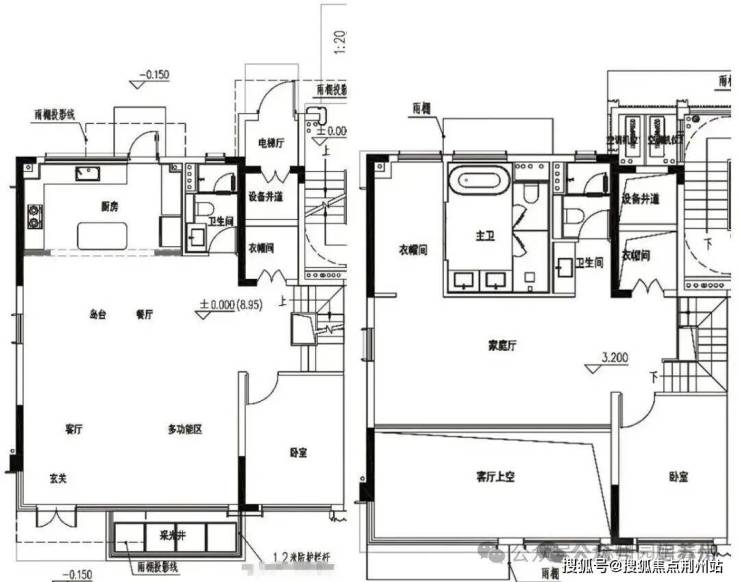
户型方面,清一色都是改善大户型,其中洋房约141㎡精装交付,叠加约167-188㎡,毛坯交付。
先看洋房户型,约143㎡4房2卫,这应该是目前吴中面积最小的洋房四代宅。
整体南向开间约14.5米,客厅开间约5m,主卧套房,北向生活阳台,分奇、偶数层,区别主要在于空中庭院,整个户型综合使用率超100%!

叠加为纯正的4F真叠墅。
下叠建面约188㎡,双独立入户(地库入户+一楼入户);
面宽相当感人,达到约10米,超大方厅约6.7米,全卧室朝南设计;
二层挑空,结合南北露台赠送,使用率高达约155%。
最后再来看一下星河·湖西源启的地段,位于吴中区郭巷街道林家潭路南侧、通达路东侧,北面就是龙湖·九里璟园。
周边配套齐全,出门7号线,正宗地铁盘;附近有郭巷实小、苏大附属尹山湖中学等;商业依赖尹山湖的歌林公园等,地铁6站可达苏州中心。
根据官方规划,该地块南侧还有一宗拟出让宅地,未来居住氛围会更加浓厚。
再往南侧是即将重磅升级的郭巷老街片区,打造集文化、休闲、运动、商业等多元业态于一体的文旅街区,势必将带动周边区域的高质量发展。
从天津和杭州的“先行探索” 到上海的“政策驱动”,抬板设计的趋势已十分明确:它不仅是一种建筑形式的创新,更是住宅市场从 “数量供给” 转向 “品质竞争” 的必然产物。截至2025年底,天津、杭州、上海、苏州、合肥、南宁等城市已出台类似政策,鼓励开发商利用底层架空设计进行产品创新,更多城市将逐渐出台政策。

未来,随着更多城市跟进类似的住宅品质提升政策,抬板设计有望向全国扩散,但大概率会延续“高端先行”的路径——先成为核心城市豪宅的“标配”,再逐步渗透到中端改善项目,最终或将普及到所有产品。
星河·湖西源启
🌈🔥售楼处电话 ☎️400-005-0788转接3333【售楼中心】【已认证】
🌈🔥营销中心电话☎️400-005-0788转接3333【营销中心】【已认证】
🌈🔥售楼中心 〢预约尊享1V1品鉴礼遇 〢匠心钜制-恭迎品鉴〢
免责声明:【本文所用信息图片来源于网络,如侵权请联系本网站及时删除】
声明:本文由入驻焦点开放平台的作者撰写,除焦点官方账号外,观点仅代表作者本人,不代表焦点立场。
