武汉联投·长江天元售楼处电话→武汉联投·长江天元售楼中心电话→2025武汉联投·长江天元楼盘百科→楼盘网站→楼盘测评→售楼中心电话→24小时热线
扫描到手机,新闻随时看
扫一扫,用手机看文章
更加方便分享给朋友
武汉联投长江天元
售楼处电话▓:400-002-9578转接4444(已认证)
营销中心电话▓:400-002-9578转接4444【售楼中心】
温馨提示:售楼中心〢预约尊享1V1品鉴礼遇〢匠心钜制-恭迎品鉴〢
免责声明:本文所用信息图片来源于网络,如侵权请联系本网站及时删除
一、楼栋规划与户型设计
根据规划,联投时代中心共规划3栋住宅,总高42-43层,以及1栋写字楼、多栋集中式商业街区。
二、区域定位与地段优势
项目位于武昌区临江大道和工院路交汇处,属于武昌内环滨江的核心地段。相对来说,这个位置更靠近积玉桥板块,周边以老社区为主,目前还没有大型商业体。

三、配套分析
商业:项目自带部分商业,还有一栋写字楼,隔壁联投中心也有酒店等规划。另外,项目直线2公里左右可达万象城、京东MALL以及武昌滨江天街,3公里左右可达楚河汉街、武汉亲橙万象汇、徐东销品茂等商业体。
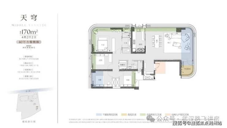
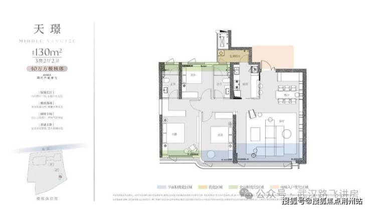
四;户型图
项目首开2号楼、3号楼,2号楼主推建面约180㎡户型,3号楼主推建面约130㎡、140㎡、170㎡户型。
①130㎡户型:三房两厅两卫,3号楼中间户,南北通透,三开间朝南;户型本身的布局还是比较方正的,并且有多处优化空间,厨房外还带一个生活阳台,可以用于后期晾晒,保留客厅阳台的纯粹性。但这一户型北面为连廊,加上客厅朝南设计,基本上没什么看江视野,主打优势是面积小,总价门槛低(项目内最低门槛)。
②140㎡户型:四房两厅两卫,该户型南北通透、三开间朝南;因为3号楼的楼栋朝向、位置,属于北向看江,因此,这一户型的北面房间——次卧、儿童房拥有还不错的看江视野(中高楼层以上房源)。客厅空间相当的开阔,动静分区做的也比较好。
③170㎡户型:四房两厅两卫,整个户型的布局与江面基本平行了,对比3号楼另外两个户型,170平户型的看江效果要优秀不少,客厅(270度观景)、主卧、主卫、厨房这几处空间都拥有不错的江景视野,观景面还是比较可观的。不过为了看江,这个户型的进深做的比较大,通透性稍显不足。
④180㎡户型:四房两厅三卫,客厅、北向次卧拥有非常不错的看江视野,并且客厅可以270度观景;另外,东头这一户型的生活阳台、主卧套房也可以看江,观江面更大。但东头户型离3号楼较近,低楼层采光可能有所影响。
⑤240㎡户型:四房两厅三卫,项目最大户型,不光观江视野最好,价格肯定也是最贵的。这户型南北通透,南边采光面挺宽,客厅是约12米的超级大横厅,还做了270度转角设计,能270度看江,就连旁边的主卧套房也能看江,能看江的地方特别多。不过选房源要注意,1号楼西边户旁边挨着写字楼,主卧看江的角度会受点影响,比起来还是东边户看江的角度更大些。
武汉联投长江天元
售楼处电话▓:400-002-9578转接4444(已认证)
营销中心电话▓:400-002-9578转接4444【售楼中心】
温馨提示:售楼中心〢预约尊享1V1品鉴礼遇〢匠心钜制-恭迎品鉴〢
免责声明:本文所用信息图片来源于网络,如侵权请联系本网站及时删除
声明:本文由入驻焦点开放平台的作者撰写,除焦点官方账号外,观点仅代表作者本人,不代表焦点立场。
