武汉邦泰璟和官方售楼处电话→邦泰璟和官方售楼中心电话→邦泰璟和楼盘百科→楼盘网站→楼盘测评→售楼中心电话→楼盘百科→电话→楼盘详情
扫描到手机,新闻随时看
扫一扫,用手机看文章
更加方便分享给朋友
武汉邦泰•璟和售楼处电话▓:400-005-0788转接4444(售楼处已认证)
武汉邦泰•璟和营销中心电话▓:400-005-0788转接4444【营销中心】
温馨提示:售楼中心〢预约尊享1V1品鉴礼遇〢匠心钜制-恭迎品鉴〢
免责声明:本文所用信息图片来源于网络,如侵权请联系本网站及时删除
邦泰·璟和坐落于武汉青山区临江大道与三弓路交汇处,是青山滨江板块中兼具景观稀缺性与交通效率的关键地块。项目直面长江,拥有连续、开阔的一线无遮挡江景界面,这使其显著区别于传统城区内部楼盘。同时临江大道的城市主干道属性,也为项目带来了快速通达的交通优势,实现了“观江”与“出勤”的双重价值。

项目整体规划8栋住宅,层高23-31F,共449户,车位配比约1:1.23,容积率约2.14,开发商自有物业。1号楼为23F,2/6号楼为31F,3/5/8/9号楼为29F,7号楼为30F。楼栋均是北向面江一字排开,是真正的一线临江住宅。

因为青山与武昌的区位关系,这里的住宅以北向看江为最佳朝向,项目在设计上将主卧与客厅布置在观江面,并打造约270°转角阳台,较大限度延展观江界面。小编实地去了一趟,正好遇上冬日的日落时分,体验了一把躺椅、一杯热茶、一本书,在沙发上随意靠着打个盹。阳光斜斜洒在身上,看着光影一点点移动,再看着夕阳缓缓沉入长江,整个过程安静而从容。从下午四点坐到六点,一杯下午茶慢慢喝完,太阳也刚好落山——那一刻让人真切感受到,生活的美好可以如此具象。

邦泰作为外来开发商,为了赢得本土住户的青睐,有在很认真的做产品。项目以抬高约3.2米的整体地势打造多层次立体空间界面,通过室内绿廊与生态景观延展视野。设计约100米长的双层酒店式主入口,配合中轴对称布局,形成极具仪式感的滨江归家界面。园区内一字引水入园,12座“岛”与3座“屿”串联成沉浸式度假景观,同时配置约2000㎡会所与约850㎡会馆的双会所体系,营造高定滨江生活方式。公区以度假酒店标准打造,甄选多种奢石与名木呈现艺术美学,并以全景舱式立面与大尺度环幕玻璃,形成游艇般的观江视角,将长江景观最大化引入日常生活。

关于户型
邦泰·璟和建面约140㎡,171㎡,201㎡定位改善。
建面约140㎡4房2厅2卫户型,是本项目的入门级改善选择。客厅朝东北,连接转角落地阳台,采光温和均匀,能避免夏季午后强烈的西晒,体感更为舒适。户型格局动静分区清晰,主卧设计为套房,兼顾私密性与舒适度,并享有最佳江景视野。两个次卧尺度适中,满足标准改善需求。整体而言,该户型将核心景观资源赋予主卧,适合看重江景价值、且总价预算位于改善门槛附近的置业者。

(建面约140m²户型图)
建面约171㎡的4房2厅3卫户型,以“南北双套房”与“3卫配置”为核心亮点,提升了多成员家庭在早晚高峰期的使用便利性与整体居住舒适度。为最大化卧室区的私密与纯粹,公共起居空间与睡眠区通过走廊适度分隔,确保了动静之间的有效缓冲。客厅东北向配备全景落地窗,不仅增强了室内的通透感与采光效果,也将户外景观引入日常生活。整体户型设计明显侧重于功能完备性与实际居住品质,为此在空间布局上做出了针对性取舍——包括独立家政动线、多卫生间及过渡走廊在内的设计,虽会占用一定面积,可能使实际得房率低于功能紧凑型产品,但换来了更高的私密性与功能性。该户型适合成员结构多元、对房间数量、私密性及功能完整性有明确要求的改善型家庭,而非单纯追求视觉空间感“显大”的客群。

(建面约171m²户型图)
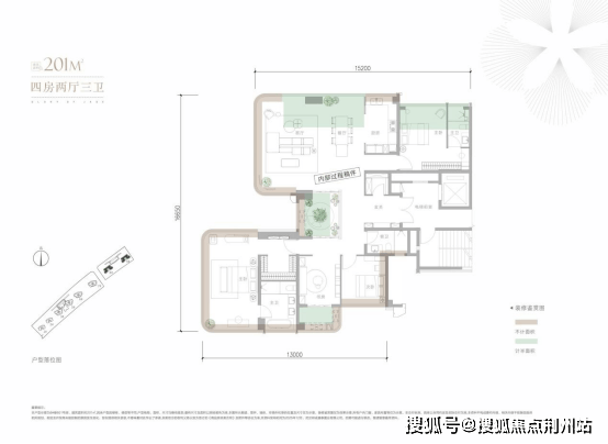
建面约201㎡的4房2厅3卫户型,户型最大亮点在于“景与光的双重设计”,客厅与主卧均采用西北向全景舱视角,确保从入户到就寝,江景与日落成为日常背景。餐客厅一体,面宽开阔,强化了空间的延伸感。主卧尺度较阔绰,并贴心地在客厅与主卧间设置了一个可享下午茶的独立小阳台,将生活意趣融入建筑细节。为达成功能区的纯粹与私密,户型采用了相对复杂的动线与较多过渡空间,牺牲了部分空间利用率与视觉通透性,但换来了家庭成员间互不干扰的尊崇体验。适合追求改善、对江景资源有要求、且家庭成员需较高程度私密分区的实力客群。它提供的不仅是一个住所,更是一种“于家中坐看江流日落”的从容生活范式。

(建面约201m²户型图)
周边生活配套
社区周边已形成较成熟的生活圈,底商业态丰富,可覆盖日常高频消费需求。大型商业方面,距奥山世纪广场约1.6公里、武商Mall·众圆约2.1公里,驾车均在10分钟左右可达,周末休闲购物较便捷。

项目距离地铁5号线科普公园站直线约1公里,步行约12分钟。自驾出行较便利,出门即可上临江大道,并快速衔接二环线,通达武汉三镇核心区域。

项目周边医疗配套较完善,距离武汉市第九医院约2.3公里,可满足日常门诊、基础诊疗及开药等高频需求;距离综合实力更强的华润武钢总医院(三甲)约5.5公里,驾车约15分钟,为专科诊疗、急诊及住院需求提供了有力保障,实现了“小病近处看,大病有靠山”的就医便利。

项目距离滨江未来实验小学步行约200m,任家路中学步行约1.5km。邦泰·璟和与青山江滩公园一路之隔,步行约200m即可直达。

邦泰·璟和以“青山滨江第一豪宅”为目标,在江景资源与社区品质上确实投入显著。然而,其能否获得市场买单,关键在于能否给出与其定位匹配的、足够有说服力的“价值等式”。同为青山滨江一线江景豪宅的武汉江山,近期二手房成交均价约1.75万元/㎡,形成了一个较明确的价值参照,那邦泰的定价相对较敏感,项目能否成功,不仅取决于“做得好”,更取决于客户是否认为值得。
武汉邦泰•璟和售楼处电话▓:400-005-0788转接4444(售楼处已认证)
武汉邦泰•璟和营销中心电话▓:400-005-0788转接4444【营销中心】
温馨提示:售楼中心〢预约尊享1V1品鉴礼遇〢匠心钜制-恭迎品鉴〢
免责声明:本文所用信息图片来源于网络,如侵权请联系本网站及时删除
声明:本文由入驻焦点开放平台的作者撰写,除焦点官方账号外,观点仅代表作者本人,不代表焦点立场。
