中铁·咏月台售楼处电话→中铁·咏月台售楼中心电话→2025中铁·咏月台楼盘百科→楼盘网站→楼盘测评→售楼中心电话→楼盘百科→24小时热线电话→楼盘详情
扫描到手机,新闻随时看
扫一扫,用手机看文章
更加方便分享给朋友
苏州中铁·咏月台售楼处电话▓:400-005-0788转接4444(售楼处已认证)
苏州中铁·咏月台营销中心电话▓:400-005-0788转接4444【营销中心】
温馨提示:售楼中心〢预约尊享1V1品鉴礼遇〢匠心钜制-恭迎品鉴〢
免责声明:本文所用信息图片来源于网络,如侵权请联系本网站及时删除
真正的人居变革,始于对土地的重构。中铁·咏月台以“苏州首个首层全架空社区”规划,将社区整体抬升约5米,让建筑与生活界面从容悬浮于架空层之上。这是一次空间的突破,也是对土地价值与居住形态的重新定义。

中铁·咏月台择址吴中繁华核芯,河岸的静谧、商圈的璀璨、交通的脉动与人文的底蕴在此交汇,承载一城丰盛与万千烟火。
•诗意河岸:东临古塘河,超2600㎡水岸公园
•繁华商业:龙湖东吴天街、万达广场、海星生活广场等商业地标环绕
•城市漫游:东吴南路、石湖东路等,连通城市脉络;轨交2、4、7号线,直抵苏州各区
•优教版图:枫津实验小学、碧波中学等构建全龄教育圈,护航孩子成长
•人文地标:“运河十景”宝带桥、吴文化博物馆等,人文底蕴深厚
自然静谧,河岸即日常:东临古塘河,延展约2600㎡水岸公园,漫步、亲子休闲举步即达,让自然成为家的延伸。
商业环伺,繁华举步享:毗邻龙湖东吴天街、海星生活广场等多元商圈,从日常购物到品质消费,皆在从容生活半径内。
立体交通,迅捷通全城:近邻轨交7号线枫津路站,联动东吴南路等城市主干道,快速接驳城市核心区域,通勤效率与生活自由兼得。
全龄优教,成长有陪伴:碧波实验小学、枫津实验小学、碧波中学等优质教育资源环绕,护航全龄段教育旅程。
人文浸润,精神皆可栖:吴文化博物馆、吴中区公共文化中心、体育中心等环伺,让文化熏陶与身心滋养融入日常场景。
这一革新,带来的是生活体验的系统性进化:全架空层阳光车库,实现车辆平层进出、自然采光通风;全程无雨归家系统,业主从车库经电梯直达入户,风雨无油,从容归家;全步行化地面社区,车辆均停于架空层,地面层则成为安全、静谧的漫步花园与休闲场域。
在产品营造上,项目创新推出建面约162-164㎡四代洋房,重构洋房的生活形态。通过奇偶层错层设计,为每一户规划全南向空中庭院,最高约22㎡拓展露台全数赠送,实现尺度、视野与私密性的整体提升。
空中庭院衔接内外空间,配合大开间与通透布局,将光线与自然引入日常。中铁·咏月台四代洋房既实现了空间功能的系统性升级,更以洋房的低密舒居形态,为城市家庭带来私密、舒适与自然共融的居住新解。
建面约176-192㎡叠墅,以4层亲地规划,重塑城市院墅标准。下叠配备私属独立院落,彰显墅居风范;上叠打造立体双露台系统,构筑空中庭院的奢阔体验。
✅【万科物业 中国物业管理领跑者】
万科物业成立于1990年,是中国物业管理行业的领跑者。目前共服务510万户家庭,在管住宅服务项目达3678个,于苏州服务玲珑湾、大象山舍等标杆项目。
✅【宽境洋房 改善人居标杆】
约13.4米面宽·南北双阳台+飘窗赠送近20㎡·三开间阳台👇👇

✅【四代洋房 革新住宅形制】
独立电梯厅·约21㎡空中花园·约14.9米面宽·南向双套房👇👇

创新270°观景角厅·约22㎡空中花园·约15.2米面宽·南向双套房👇👇

✅【叠墅四层空间赠送体系(上叠送屋顶露台,下叠送地下室)】
下叠:边户约186㎡;中间户约192㎡(四房两厅三卫):
10米左右南向面宽+南北双庭院,一层都配有老人房,并配有地下室;
二层拥有较大的挑空空间👇👇
上叠:约176㎡(四房两厅三卫)双露台+星空阁楼,北退台实现“空中院落”视野;二层拥有较大的挑空空间,可以改造成一个大套房,另外还赠送屋顶露台👇👇
项目打造了叠加、四代洋房、洋房三种业态:叠加建面约176-192㎡;四代宅建面约162-164㎡;洋房建面约132㎡。

4#边户建面约186平,一层为前庭后院双入户与LDKG一体化;客厅上空是挑空空间,还有南向阳台,未来可打造为双套房设计。
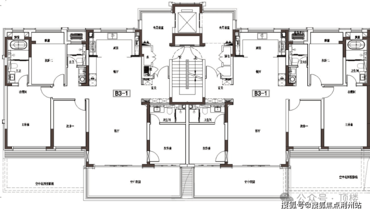
5#楼洋房奇偶层户型


四代宅洋房整体户型为4房2厅3卫,4开间朝南设计,并且做了南向双套房,奇数层与偶数层的区别就在于,空中庭院与客厅或卧室相连的区分。
苏州中铁·咏月台售楼处电话▓:400-005-0788转接4444(售楼处已认证)
苏州中铁·咏月台营销中心电话▓:400-005-0788转接4444【营销中心】
温馨提示:售楼中心〢预约尊享1V1品鉴礼遇〢匠心钜制-恭迎品鉴〢
免责声明:本文所用信息图片来源于网络,如侵权请联系本网站及时删除
声明:本文由入驻焦点开放平台的作者撰写,除焦点官方账号外,观点仅代表作者本人,不代表焦点立场。
