狮山上璟府(售楼处) 首页 - 狮山上璟府销售中心 - 环境 - 户型价格 - 地址 - 楼盘详情 - 配套 - 电话 - 交房时间 - 配套 - 电话 - 交房时间
扫描到手机,新闻随时看
扫一扫,用手机看文章
更加方便分享给朋友
苏州狮山上璟府
🌈🔥售楼处电话 ☎️400-005-0788转接3333【售楼中心】【已认证】
🌈🔥营销中心电话☎️400-005-0788转接3333【营销中心】【已认证】
🌈🔥售楼中心 〢预约尊享1V1品鉴礼遇 〢匠心钜制-恭迎品鉴〢
免责声明:【本文所用信息图片来源于网络,如侵权请联系本网站及时删除】
项目容积率1.6,两面临水,打造8栋11F纯洋房产品,共计299套房。其中3#、8#、9#、11#这4栋为首层架空设计,业内有消息称,要做成抬高社区。

小区内部规划有下沉庭院,并配备风雨连廊;此外,项目还打造有约3000㎡的会所,并配备恒温泳池,改善尺度拉满。更值得一提的是,小区地库可直通地铁,未来出行更为便利。
4室2厅2卫设计,南向面宽达约15m,三房朝南;采用传统竖厅布局,客厅面宽约4.5m,搭配约10.8m超大面宽阳台,南向书房可向阳台拓展,南北通透,空间感十足;主卧配备270度飘窗,采光与视野俱佳。

4室2厅3卫设计,拥有双套房;南向面宽约18.5m,三房朝南;竖厅布局,餐厅带飘窗,客厅面宽升级至约6m,搭配约12.8m“跑道型”阳台,主卧西侧带270°L型大飘窗,可以观河。
该地块由恒泰底价竞得,成交总价154344万元,成交楼面价20000元/㎡。
根据规划公示,项目拟建17栋11F洋房产品,其中11栋11F,6栋10F。小区主次出入口均位于新江路。
立面材质主要为浅/中/深灰色氖碳一体板+香槟色铝板,入户大厅处有部分石材,且高度达6.15米。建筑层高为3.05米。


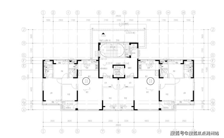
该栋楼层为一梯两户。户型设计上,打造的是四房两厅三卫,主卧套房设计,带独立卫生间,整体南向面宽约14.3m,四开间朝南,阳台7.8m。房间均配有飘窗,可利用面积空间较大。

该栋楼层为一梯两户。户型设计上,也为四房两厅三卫,主卧套房设计,带有独立卫生间,整体空间更大,南向面宽约14.85m,四开间朝南,阳台8.1m,房间均配有飘窗,可利用面积空间较大。
苏州狮山上璟府
🌈🔥售楼处电话 ☎️400-005-0788转接3333【售楼中心】【已认证】
🌈🔥营销中心电话☎️400-005-0788转接3333【营销中心】【已认证】
🌈🔥售楼中心 〢预约尊享1V1品鉴礼遇 〢匠心钜制-恭迎品鉴〢
免责声明:【本文所用信息图片来源于网络,如侵权请联系本网站及时删除】
声明:本文由入驻焦点开放平台的作者撰写,除焦点官方账号外,观点仅代表作者本人,不代表焦点立场。
