天创.元萃(售楼处) 首页-武汉 天创.元萃营销售中心-环境-户型-价格-地址-楼盘详情-配套-电话-交房时间-配套-电话-交房时间
扫描到手机,新闻随时看
扫一扫,用手机看文章
更加方便分享给朋友
武汉 天创.元萃
☎️售楼处电话:400-033-1899转接5555 【售楼中心】
💌 网上售楼中心〢安全通话隐藏真实号码〢一对一热情服务〢
✅售户型图丨项目介绍丨最新房源丨周边配套丨详细解答〢营销中心✅
天创元萃—是天创西城壕B区项目案名,该项目P(2025)035号地块位于武昌区中山路与解放路交汇处西城壕B地块,旁边就是华发外滩玺、华发农讲所地块。该地块是今年5月21号,经过38轮的竞价,最终由湖北天创拍下P(2025)035号西城壕B地块,成交总价3.41亿,楼面价14532元/㎡,溢价率30.6%。
【开 发 商】:天创地产(汉阳区国企)联合贝好家(贝壳旗下C2M平台)
【项目区位】:武昌区中山路与解放路交汇处
【面 积】:建面约127㎡、142m²
【楼 层】:10~13层洋房
【装 修】:精装
【产 权】:70年
【梯 户 比】:1 梯 1 户、2 梯 2 户
【容 积 率】:2.0
【车位配比】:1:1.07
【得 房 率】:约106%~113%左右
【地 铁】:地铁 5 号线 昙华林站
【教 育】:中华路小学金都校区、粮道街中学积玉桥校区、武昌实验中学
【医 疗】:湖北省中医院、湖北省人民医院
户型赏析
元 礼丨约127m² 四房两厅三卫
该户型位于1号楼2 单元及 2、3、4 号楼的中间户,南北通透,127m²的空间做成了 4 房 3 卫,可以说是功能型拉满。独立的电梯前室,一方面归家的舒适性得到了保障,也扩大了得房率。采用大横厅设计,连接南向阳台,最大化空间感和采光。3 开间朝南,2 个卧室套房均为南向。
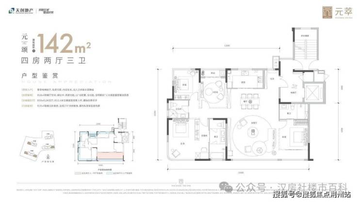
元 颂丨约142m² 四房两厅三卫
该户型位于 2号楼东边户、3 号楼西边户及 4 号楼的两端头边户,南北通透,三开间朝南,拥有独立的电梯前室,南向面宽约 15.9 米,极大限度的增加了室内的采光。双套房设计,主卧还有 270° 的全景舱观景飘窗。
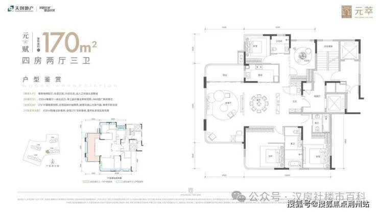
元 赋丨约170m² 四房两厅三卫
该户型位于 2号楼西边户,南北通透,拥有独立的电梯前室,约 80m²客餐厅一体化空间,双套房设计,主卧约 30m²,空间极大。客厅及主卧均配备 270° 全景舱,设计很独特。
武汉 天创.元萃
☎️售楼处电话:400-033-1899转接5555 【售楼中心】
💌 网上售楼中心〢安全通话隐藏真实号码〢一对一热情服务〢
✅售户型图丨项目介绍丨最新房源丨周边配套丨详细解答〢营销中心✅
声明:本文由入驻焦点开放平台的作者撰写,除焦点官方账号外,观点仅代表作者本人,不代表焦点立场。
