苏州道壹号售楼处电话-苏州道壹号官网已认证-楼盘价格/户型/地址/前台电话/环境/配套/交房时间/售楼处电话
扫描到手机,新闻随时看
扫一扫,用手机看文章
更加方便分享给朋友
苏州道壹号售楼处电话:400-005-0788转6666(已认证)
苏州道壹号开发商电话:400-005-0788转6666【售楼中心】
温馨提示售楼中心〢预约尊享1V1品鉴礼遇〢匠心钜制-恭迎品鉴〢
温馨提示本项目暂不接受临时到访,过来参观样板房请记得提前来电预约!
项目主打两个改善户型:约143㎡和178㎡。
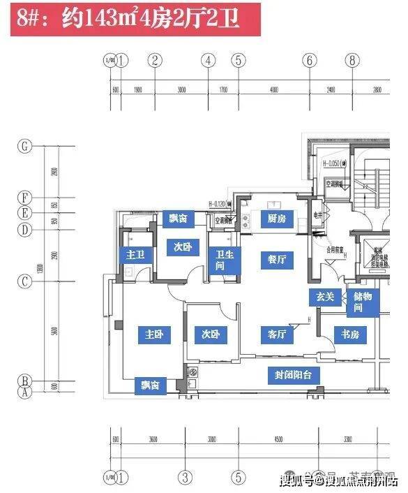
约143㎡4房2卫设计为改善型四房,是板块内备受青睐的经典改善型产品,在空间布局与功能性上取得了很好平衡,精准对标主流品质家庭。
子母门、玄关带储物间
南向面宽15米,三卧朝南
双联阳台设计达到7.5米
厨房带大窗,南北通透
点击添加图片描述(最多60个字) 编辑
点击添加图片描述(最多60个字) 编辑

约178㎡定位更高,预计做成四房三卫的格局,属于真正的改善型豪宅尺度,私密性和空间感更强。
子母门、玄关带储物间
南向面宽18.5米,三卧朝南
双联阳台设计达到9.4米
餐厅带飘窗
主卧西侧带270°L型大飘窗,可以观河
点击添加图片描述(最多60个字) 编辑

苏州道壹号打造8栋11F纯洋房产品,共296套!
点击添加图片描述(最多60个字) 编辑
招商永旺北项目鸟瞰图
打造园区首个抬板社区,全域抬高3m!打造「地下通勤层-地面交互层-私域生活层」的新加坡式高效且松弛,丰富且纯粹的立体生活体系与立体归家动线系统。
点击添加图片描述(最多60个字) 编辑
区域最大规模的奢华会所规模约4000㎡ +架空层泛会所,放眼整个湖东板块,能拥有如此规模与高标准会所的新建项目并不多见,足以与翡丽甲第(会所约3000㎡)、玫瑰园(会所约2600㎡)、晋墅(会所约7000㎡) 等高端住区的配套水准相媲美。
垂直功能会所涵盖运动、社交、休闲多维需求,四大主题架空层泛会所,覆盖儿童成长乐园、太太会客厅、人文艺术、社交友好空间,全龄段日常休闲下楼即享,为园区改善提供更佳选择!
而且社区地下地库直接通地铁,与钟南街地铁站相通,让业主全年无雨归家。
点击添加图片描述(最多60个字) 编辑

红线内外一体化开发,打造约1万方亲水景观带,L型滨水河畔公园(申报中),实现从公园里回家,借由抬板进一步打造新加坡风情立体园林,实现「下沉庭院-板上游园-洄游景廊-阳台观景」四重景观体验。
点击添加图片描述(最多60个字) 编辑
整个项目位于钟南街东,苏州大道南,是2025年12月土拍被招商竞得,成交总价12.6亿元,成交楼面价27342元/㎡,溢价率2.02%。
点击添加图片描述(最多60个字) 编辑

地块地处湖东成熟高端住区,毗邻唐宁府、绿城云庐等知名小区,人文与居住氛围纯粹。周边配套成熟度高,生活便利性堪称全能:
北侧:现代大道、苏州大道东、1号线钟南街1号地铁口。
南侧:一条河流、永旺梦乐城、新加坡国际学校、海归人才子女学校、星汇学校。
西侧:住宅天地源·水墨三十度、海悦花园四五区、钟南幼儿园,次新房颐和源璟,还有一大片空地
点击添加图片描述(最多60个字) 编辑

点击添加图片描述(最多60个字) 编辑
低密洋房、核芯地段、全能配套、稀缺户型、豪华会所…… 当所有这些顶级要素叠加在仅有的296套住宅上,其市场热度可想而知。
点击添加图片描述(最多60个字) 编辑
苏州道壹号售楼处电话:400-005-0788转6666(已认证)
苏州道壹号开发商电话:400-005-0788转6666【售楼中心】
温馨提示售楼中心〢预约尊享1V1品鉴礼遇〢匠心钜制-恭迎品鉴〢
温馨提示本项目暂不接受临时到访,过来参观样板房请记得提前来电预约!
免责声明(本文章所用信息图片来源于网络,如有侵权请联系本网站及时删除)
声明:本文由入驻焦点开放平台的作者撰写,除焦点官方账号外,观点仅代表作者本人,不代表焦点立场。
