星河湖西源启售楼处电话→星河湖西源启售楼中心首页网站→楼盘百科详情→@24小时电话
扫描到手机,新闻随时看
扫一扫,用手机看文章
更加方便分享给朋友
☑️☑️苏州 星河湖西源启售楼处电话;400-133-5355【预约热线】
☑️☑️星河湖西源启售楼处电话/地址☎:400-133-5355 (开发商热线)
☎️如有问题欢迎来电咨询,专业一对一热情服务,让您用专业眼光去买房。
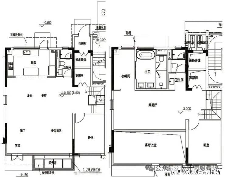
项目位于独墅湖西核心地段,容积率仅1.25,拟建22栋4F叠加+2栋四代宅洋房,其中洋房约143㎡,叠加约167/188㎡。
产品也相当惊艳,小区配有下沉式会所庭院,四代宅采用首层架空设计,下叠都配有地下室,并通过多连廊贯穿,实现无风雨归家。


户型同步公示!据爆料,叠加建面约160-180㎡,洋房建面约141㎡,都是改善大户型。
洋房建面约143㎡4房2卫,4开间朝南,整体南向开间约14.5米,客厅开间约5m,主卧套房,北向生活阳台,分奇、偶数层,区别主要在于空中庭院。

7#为4F叠加,下叠建面约180㎡左右,南北双入户,6.7m超大方厅,全卧室朝南设计;二层挑空赠送面积超大。
☑️☑️苏州 星河湖西源启售楼处电话;400-133-5355【预约热线】
☑️☑️星河湖西源启售楼处电话/地址☎:400-133-5355 (开发商热线)
☎️如有问题欢迎来电咨询,专业一对一热情服务,让您用专业眼光去买房。
声明:本文由入驻焦点开放平台的作者撰写,除焦点官方账号外,观点仅代表作者本人,不代表焦点立场。
