澜庭壹号院官方发布:苏州【澜庭 · 壹号院】售楼处首页网站-营销中心-澜庭壹号院欢迎您-楼盘详情-最新价格-@售楼处2026-1-2最新公示
扫描到手机,新闻随时看
扫一扫,用手机看文章
更加方便分享给朋友
🔴苏州【澜庭 · 壹号院】⏰售楼处📞VIP: 400-113-0178【售楼中心】【已认证】
🔴苏州【澜庭 · 壹号院】⏰营销中心📞VIP: 400-113-0178【置业顾问】【已认证】

项目基础档案
项目名称:澜庭壹号院
地块信息:苏地2024-WG-Z31号地块
项目地址:苏州高新区狮山商务创新区向阳路南、大运路西
开发品牌:苏高新集团&绿城管理
住宅指标:占地约3.6万方,容积率1.2,总建约4.4万方
产品规划:17栋3F联排/2栋6F叠加/2栋10F洋房,约205户
户型面积:约115㎡/135㎡墅境洋房;约215㎡/236㎡/259㎡见山叠墅;约271㎡/325㎡/369㎡山水和院
装修状态:洋房精装、墅类毛坯
销售信息:24.11.28拿地,楼面价25155元/平

全盘总计205套,又是“一把清”的节奏,效果图惊鸿一瞥!重点是,面积段总价段控制合理,不仅有狮山绝版联排,更有洋房小户型,预计要靠抢!

—— 苏高新集团有限公司 ——
苏高新集团成立于1990年,现总资产规模超1800亿元,主体信用等级AAA,拥有31家一级企业,参股28家企业,控股2家上市公司。秉持“让城市生活更美好”的品牌理念,集团正聚焦城市建设、城市服务、产业园区三大主业,以类金融板块为支撑,以战略新兴产业为新动能,努力成为新兴产业培育发展和城市开发运营商。打造“澜”系经典住宅作品、如荷澜庭、山水樾澜庭、海胥澜庭、狮子山澜庭等二十余个品质项目。
◆狮山芯 国际会客厅
落子狮山核心区,狮山商务创新区聚焦世界目光,交通、教育、产业、商业等国际化生活配套环伺,城市顶豪人居聚集地。
◆5大名校云集 书香涵养
苏州外国语学校、高新区第一中学,外国语幼儿园、狮山实验小学、高新区第一初级中学等优质学府。

洋房面积段115-135㎡,狮山绝版小洋房??
叠加230-275㎡,得房率超90%,客厅挑空,上叠送露台,下叠送院子;
联排最小也要260㎡+,最大370㎡,最大院子超300㎡,得房率相当逆天!!
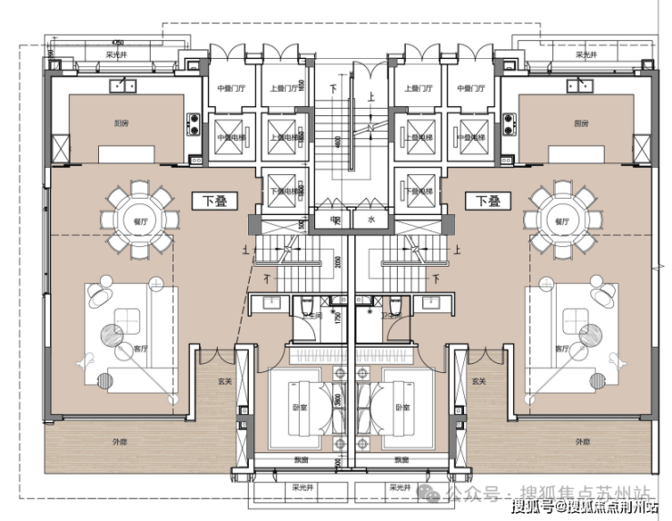
简单曝光几大户型。合院265㎡4房3厅4卫户型↓二层挑空、三层带露台,超高使用面积。

下叠一层平面图如下:南向面宽约10.3米。

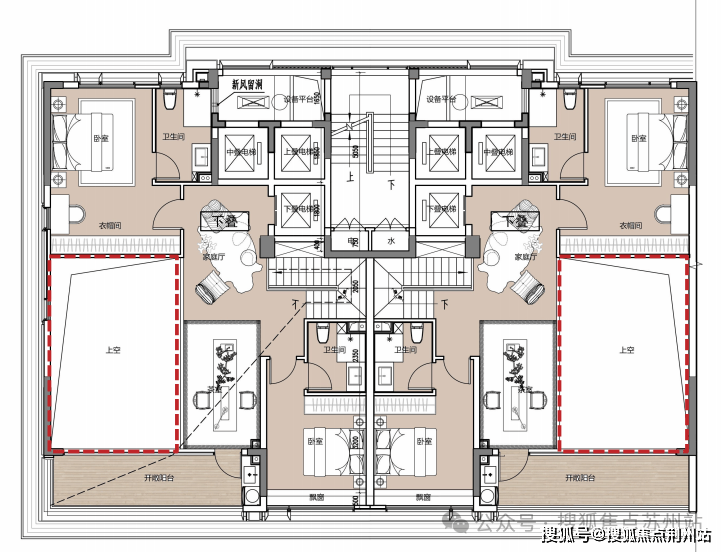
下叠二层平面图如下:客厅挑空,得房率超90%。

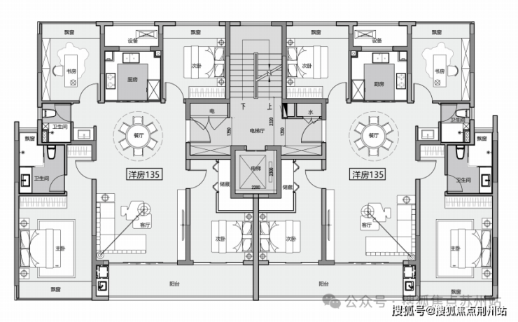
洋房135㎡3+1房2厅2卫户型图如下:
阳台开间约7.75米,南向开间约11.45米,主卧套房,开间3.7米。

🔴苏州【澜庭 · 壹号院】⏰售楼处📞VIP: 400-113-0178【售楼中心】【已认证】
🔴苏州【澜庭 · 壹号院】⏰营销中心📞VIP: 400-113-0178【置业顾问】【已认证】
声明:本文由入驻焦点开放平台的作者撰写,除焦点官方账号外,观点仅代表作者本人,不代表焦点立场。
