隐山(售楼处)官网 - 无锡 隐山销售中心 - 环境 - 户型 - 价格 - 地址 - 楼盘详情 - 配套 - 电话 - 交房时间
扫描到手机,新闻随时看
扫一扫,用手机看文章
更加方便分享给朋友
无锡 隐山
售楼处电话:400-005-0788转接7777(官方认证)
营销中心电话:400-005-0788转接7777【售楼中心】
温馨提示:售楼中心〢预约尊享1V1品鉴礼遇〢匠心钜制-恭迎品鉴
免责声明:(本文章所用信息图片来源于网络,如有侵权请联系本网站及时删除)
隐山,即惠山古镇三期DE地块,位于梁溪区运河西路与盛岸路交汇处西南侧。
项目由梁溪文旅、世纪金源、腾云筑科联手打造,整体容积率约1.2,取意传统建筑与园林,邀春山秋水与青墨建筑,打造东方风骨的稀贵合院,为无锡新时代家族敬呈叠墅/合院产品。
项目规划打造17栋3-5F产品,有四叠、五叠、合院等,共计约144套,其中叠墅120套,合院24套。
隐山四叠建面约233-340㎡,五叠建面约243-423㎡,合院建面约436-618㎡,项目已于近日公开了叠墅+合院户型图。
该户型为隐山建面约435-545㎡合院户型,仅15套,位于中轴线位置。户型层高约3.5米,地上三层,地下一层。
该合院户型建面约526-618㎡,同样位于中轴线位置,都是边套,共8套。

合院|心院“山字屋宇、树宅相生,人与山的心心相印,墅居与自然相合。”
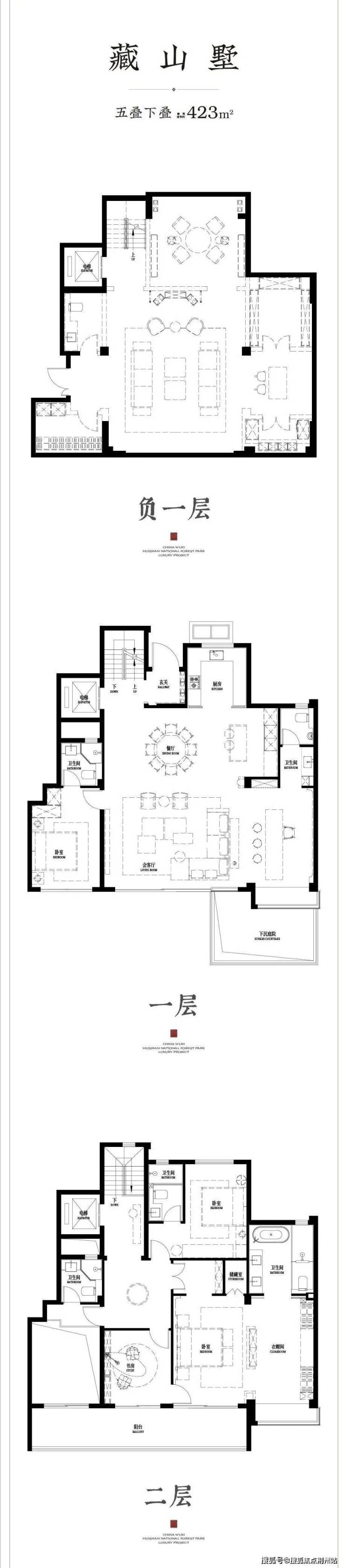
该户型为隐山五叠的下叠户型,建面约423㎡,开间约13.25米,全套房设计,层高约3.3米。
隐山五叠的上叠 建面约244㎡
隐山五叠的中叠 建面约243㎡
隐山的叠墅,均为独立电梯入户,上叠和中叠是咬合式设计,挑空位置足够做两层。此外,每一户都在负一层带有地下室。
五层叠拼|伴山墅“仰山、观山、藏山,山与人相伴,悠然尽佳时。”
四叠户型也是调挑空设计。四叠的上叠建面约为233㎡,下叠建面约340㎡。
四层叠拼|江南墅“揽樾、倚泉,最忆是江南,俯拾山水城林间。”
隐山的景观组团以寄畅园50景图为原型,在主轴设计中将龙光塔纳入取景框,为每一户私藏山水新赋的畅想与诗意。
无锡 隐山
售楼处电话:400-005-0788转接7777(官方认证)
营销中心电话:400-005-0788转接7777【售楼中心】
温馨提示:售楼中心〢预约尊享1V1品鉴礼遇〢匠心钜制-恭迎品鉴
免责声明:(本文章所用信息图片来源于网络,如有侵权请联系本网站及时删除)
声明:本文由入驻焦点开放平台的作者撰写,除焦点官方账号外,观点仅代表作者本人,不代表焦点立场。
