杭州松川境售楼处电话→杭州松川境售楼中心电话→2026杭州松川境楼盘百科→楼盘网站→楼盘测评→售楼中心电话→楼盘百科→24小时热线电话→楼盘详情
扫描到手机,新闻随时看
扫一扫,用手机看文章
更加方便分享给朋友
杭州松川境
售楼处电话 400-005-0788转接3333 【售楼中心】【已认证】
营销中心电话 400-005-0788转接3333 【营销中心】【已认证】
售楼中心〢 预约尊享1V1品鉴礼遇 〢匠心钜制-恭迎品鉴〢
免责声明【本文所用信息图片来源于网络,如侵权请联系本网站及时删除】
当城市的天际线不断被刷新,真正稀缺的,是土地之上的远见与共识。世界奥体,历经十年淬炼,已成为杭州公认的价值巅峰。它不仅是城市的封面,更是资本、人流、信息与高净值圈层汇流的超级枢纽。当奥体高耸的建筑鳞次栉比,或许唯有低密才是城市一席难求的存在。

松川境的热销实属意料之中,毕竟,自拿地开始,项目关注度就居高不下。从双城市展厅启幕,到现代东方静奢美学馆开放,每一次新动向,都能引发行业约市场的强烈关注与热议。示范区开放双周客户来访超8000人次……

门头气势恢宏。做了约80米宽,6.5 米高。大门材质用的是熔铜,入口处还设置 25 米长叠级水景承托整个入口,沉香米黄、蓝翡翠潘多拉等多种名贵石材搭配,每平米光石材成本就是近万元。
立面和奥映鸣翠同等级别。整体采用超 70%大面积的全面屏玻璃、珠光青铜铝板与弧形造型,从视觉上就把项目直接拉到2000万级产品行列,这是越级提升!
杭州松川境
售楼处电话 400-005-0788转接3333 【售楼中心】【已认证】
营销中心电话 400-005-0788转接3333 【营销中心】【已认证】
售楼中心〢 预约尊享1V1品鉴礼遇 〢匠心钜制-恭迎品鉴〢
免责声明【本文所用信息图片来源于网络,如侵权请联系本网站及时删除】
每一个出圈的作品,都需要充足的时间来打磨。每一处产品细节的研磨,每一道技艺所蕴含的智慧,都呼唤着拳拳匠心。
特别是公区的审美、工艺、用材是后期再花多少钱都无法改变的。那对于豪宅专家滨江和拥有独立美学的兴耀,它俩的“稳定输出”早已经有目共睹。仅25年下半年,江南岸“滨江X兴耀”,就有4子待售。

这是奥体,奥体三公里的顶流之地。当前市况之下,当天线上选房就能告罄的楼盘,极少。其中,有三个都在奥体,奥映鸣翠、松川境和晓澜玉华。更重要的是,这是奥体的滨江造。越是这个时候,越能凸显了头部房企的号召力。
在项目高层组团和叠墅组团之间,我们看见了一个板块内体量最大,约3300方的中心景观,相比于传统紧凑排布的纯叠墅项目,松川境业主有更多大块的景观空间,且整个场景在感受上并没有被建筑隔断,下沉式庭院和双水院景观错落排布,很自然的就连接成为一个整体的大空间。
▲下沉式庭院会所实景图
杭州松川境
售楼处电话 400-005-0788转接3333 【售楼中心】【已认证】
营销中心电话 400-005-0788转接3333 【营销中心】【已认证】
售楼中心〢 预约尊享1V1品鉴礼遇 〢匠心钜制-恭迎品鉴〢
免责声明【本文所用信息图片来源于网络,如侵权请联系本网站及时删除】
屹立世界奥体这般矜贵之地,松川境以「奥体3公里」宣誓自己超然于世的土地禀赋。
在奥体首座天街(规划)、奥体印象城、SKP(在建)等地标级资源簇拥之下,松川境以约1.8低容积,以「奥体至高规模墅境住区」为名,拔萃于奥体。

无论从公区的规模、内容,还是审美以及到细节上的用料,项目的调性和品位无疑是TOP级的,美学、私密、社交在此完美融合,业主尊贵感、面子拉满。这也是松川境拥有的独家竞争力。
△ 松川境效果图过程稿
在寸土寸金的奥体,寸景、寸光皆是金。松川境东临金一河,俯赏一线河景,于四季风光流转的静谧水岸,沉淀思绪、治愈心灵。
同时,作为奥体至高规模墅境住区,松川境以约1.8超低密规划,搭配全南厅设计,呈现高层无遮挡视野,整个排屋墅区尽呈眼前。

首先从户型设计来说:
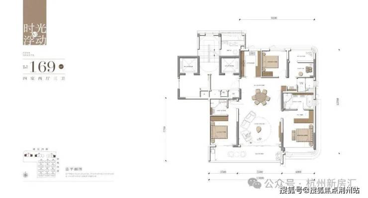
项目最显著亮点在于其超高的空间利用率。计容新规结合大面积赠送空间,赋予了户型设计极大的灵活性,使得高层产品使用率最高可达惊人的93%。具体而言,松川境建面约169方的户型:北阳台内包,飘窗不计面积,空间利用率远超同类产品。对购房者而言,则意味着显著的性价比优势,相当于节省了约一个房间的成本。
169㎡户型图
类一梯一户设计,带来每一套房子门口都有一个独立电梯厅。而且这块区域的面积不小,最少也有约6个平方左右,出入更具尊贵感、私密感。从门口进来满眼皆是奢石,大面积的奢石背景墙凸显空间高级感;双卧室硬包背景+造型天花吊顶,让每个功能空间都兼具设计感与氛围感;
杭州松川境
售楼处电话 400-005-0788转接3333 【售楼中心】【已认证】
营销中心电话 400-005-0788转接3333 【营销中心】【已认证】
售楼中心〢 预约尊享1V1品鉴礼遇 〢匠心钜制-恭迎品鉴〢
免责声明【本文所用信息图片来源于网络,如侵权请联系本网站及时删除】
在每一平方米都弥足珍贵的奥体,松川境以超高得房率,完成了一次对生活尺度的慷慨兑现。尤其是199㎡奥体绝版大5房,约16.5米巨幕开间,实现了约93%惊人得房率,全奥体罕见;
199㎡户型图
博世五件套、其中冰箱是博世8系最高顶配,全嵌入式、全进口的。还有方太万元侧吸油烟机,爆炒辣椒也不用担心跑烟。空调、厨余处理器、净水器等,也都包在交付标准内;卫生间:镜柜配置美妆冰箱,守护主人高端的护肤美容产品;
步入松川境实景示范区后瞬间的安定感,穿廊而过清幽禅意的优雅感,享受顺着旋转扶梯而下后,眼前飞瀑叠水、一步一景的丰盈感。
该有的下沉庭院、会所空间、恒温泳池、健身房、私宴厅等场景,松川境都有了。别人没有的「身处繁华,心如月满松枝」的山水意境,松川境也有。
杭州松川境
售楼处电话 400-005-0788转接3333 【售楼中心】【已认证】
营销中心电话 400-005-0788转接3333 【营销中心】【已认证】
售楼中心〢 预约尊享1V1品鉴礼遇 〢匠心钜制-恭迎品鉴〢
免责声明【本文所用信息图片来源于网络,如侵权请联系本网站及时删除】
声明:本文由入驻焦点开放平台的作者撰写,除焦点官方账号外,观点仅代表作者本人,不代表焦点立场。
