中铁青云府(售楼处) -中铁青云府售楼中心 - 环境 - 户型 - 价格 - 地址 - 楼盘详情 - 配套 - 电话 - 交房时间 - 配套 - 电话 - 交房时间
扫描到手机,新闻随时看
扫一扫,用手机看文章
更加方便分享给朋友
中铁青云府
🌈🔥售楼处电话 ☎️400-005-0788转接3333【售楼中心】【已认证】
🌈🔥营销中心电话☎️400-005-0788转接3333【营销中心】【已认证】
🌈🔥售楼中心 〢预约尊享1V1品鉴礼遇 〢匠心钜制-恭迎品鉴〢
免责声明:【本文所用信息图片来源于网络,如侵权请联系本网站及时删除】
青云府的“改善思维”,不仅体现在户型,更渗透于日常动线的每一处细节,提供妥帖的解决方案,这是单纯卷配置无法比拟的。
最典型的,当然是青云府打造了板块唯一的直通地铁地库——真正做到“零距离”接驳,出站即归家。

无论雨天或烈日,业主都可从容进出。这不仅是通勤的便利,更是一种全天候的体面与优雅,重新定义了“改善生活”的基准线。
青云府以世界级高奢酒店为蓝本,打造了一条极具仪式感的归家动线。
远远观之,长约33米的门庭入口处,一颗近50万元的黑松迎宾而立,高质感不彰自显。

走近细细领略,"劳斯莱斯同款"星空顶悬挑而出,明眼人都知道定是成本不菲~光是这一扇大门就将回家的情绪价值拉满。

青云府还大手笔打造了超2000㎡立体山水庭院先锋会所,包含会客、健身、瑜伽、童梦等多元空间,功能与体量直逼豪宅水平。
不仅提升业主生活品质,朋友来了有面子,更重要的是,未来在二手房市场更有竞争力~

当然还有架空层泛会所,涵盖亲子、健身、阅读等,无论哪个年龄段,都能在这里找到生活中美好的场景,细致入微、润物无声。
而这,仅是青云府产品力的几个切片。真正的竞争力,来自于它把改善需求拆解得如此透彻,又从生活细节予以扎实回应——
除了市场维度的领先。回归到居住体验本身,青云府的内核设计也处处是高配,将洋房四代宅的修养展现得淋漓尽致!
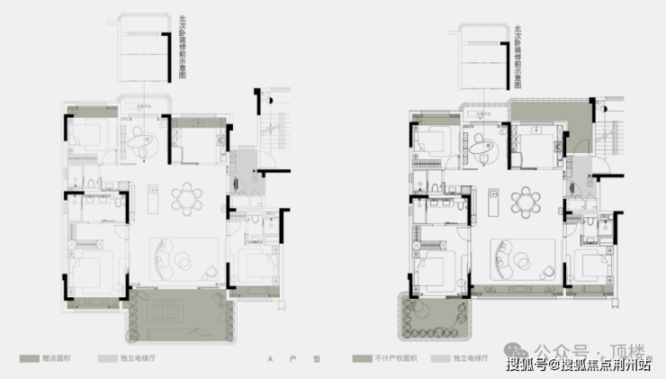
1、使用率超100%!真正神户型!尺度、功能格局全面打开!
项目打造了建面约100-120-148㎡的中小户型产品,并成功实现了回归生活的差异化设计。
传统中小户型的逻辑是“压缩”,在有限面积内强塞功能,结果往往是局促与妥协。而青云府借助“四代洋房”的产品形态,彻底重构空间逻辑——

光看户型图没太多实感,但切实走进样板间才惊觉,这哪里是100㎡,直接报130㎡我想也不会有人反对。
飘窗+北侧设备平台+约15㎡露台,带来超100%超高利用率,这是市面上传统产品完全不能比的!

尤其入眼这个约4.9米的大横厅设计,气场十足。连接南向大露台,LDKG一体化以满足当代改善人群更多社交需求。

北向的灵动空间,则可根据家庭成员的需求随心容纳。还有套房主卧的设计,南北通透,真正理解改善客群对“小家大主卧”的需求。

项目每个户型都配置了约15-23㎡大露台,结合奇偶错层设计,不仅观景视野更开阔,更让室内空间延展出不同的生活模式!


A户型为南北双露台的设计,主卧连接大露台,这里可以是瑜伽区、观景台又或是早咖晚酒等私人个性场域,完全满足自在生活~

B户型为露台与6米的大横厅相连,放大公区效能,大客厅想开场party,也能直接安排~

有了露台加持后,客餐厅不再只能吃饭/看电视,卧室也不是只能用来睡觉...种花、健身、瑜伽、聚餐、派对,多彩的生活就这么恣意展开,这就是青云府的空间魔法~
此外,不仅小户型设计出彩,约148㎡的标准改善户型也是非常热销~

独立入户、超100%的使用率、约23平的超大露台、约45平奢阔横厅...在使用率、归家体验、空间尺度、卧室场景方面,这款户型不仅在同面积段产品中遥遥领先,就是跟市面上不少常规建面约180㎡+的户型相比,也不相上下。
中铁青云府
🌈🔥售楼处电话 ☎️400-005-0788转接3333【售楼中心】【已认证】
🌈🔥营销中心电话☎️400-005-0788转接3333【营销中心】【已认证】
🌈🔥售楼中心 〢预约尊享1V1品鉴礼遇 〢匠心钜制-恭迎品鉴〢
免责声明:【本文所用信息图片来源于网络,如侵权请联系本网站及时删除】
声明:本文由入驻焦点开放平台的作者撰写,除焦点官方账号外,观点仅代表作者本人,不代表焦点立场。
