保利·姑苏瑧悦售楼处电话→苏州姑苏保利·姑苏瑧悦售楼电话→2026保利·姑苏瑧悦楼盘百科→楼盘网站→楼盘测评→售楼中心电话→楼盘百科→24小时热线电话
扫描到手机,新闻随时看
扫一扫,用手机看文章
更加方便分享给朋友
苏州保利姑苏瑧悦售楼处电话▓:400-005-0788转接4444(售楼处已认证)
苏州保利姑苏瑧悦营销中心电话▓:400-005-0788转接4444【营销中心】
温馨提示:售楼中心〢预约尊享1V1品鉴礼遇〢匠心钜制-恭迎品鉴〢
免责声明:本文所用信息图片来源于网络,如侵权请联系本网站及时删除

建发金门路新项目
全盘7栋纯洋房
户型及外立面大曝光!
在今年7月9日,建发以楼面价22800元/㎡拿下了姑苏金门路地块,溢价率0%。这是建发在金门路拿下的第二宗地块,就在建发璟园北侧。
如今,拿地不足一个月,规划已经出炉——
1、建面约5万方,打造7栋洋房,层高6-10层!
建发金门路地块,用地面积约2.5万方,总建面约5万方。

根据规划,该地块打造的是7幢纯洋房社区,层高6-10层。

2、外立面颜值很高!打造了4房2厅3卫的户型格局!
外立面也同步曝光了,整体质感很强。从外立面看到,该项目每层层高约3.1米。



此次规划同步公布了11栋楼的户型图,从标准层户型图上可以看出,该户型打造的是4房2厅3卫的户型格局,四开间朝南,阳台长12.5米。主卧开阔,带有270度转角飘窗。

至此,金门路地块四个项目规划均已出炉。

2、瑞嘉商业地块,打造4幢联排+1幢洋房!
2024年7月,苏州瑞嘉商业发展有限公司以总价1.3亿,拿下金门路Z08号地块,成交楼面地价20500元/㎡。
该地块容积率1.2,此前地块规划已出炉。根据规划,该地块打造4栋联排+1栋洋房,仅20多套房。
来看一下公示的户型图——
7号楼
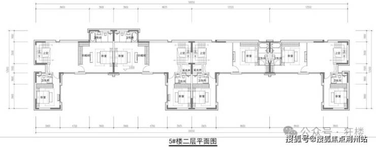
5号楼
3、保利姑苏瑧悦在售中,均价4.6万+!
保利姑苏瑧悦是目前该板块唯一在售楼盘,该楼盘打造了7栋6-10F洋房,3栋16F小高层,共计276户。
项目户型有建面约143m²、160m²、180㎡,装修交付,精装三大件都有,整体均价在4.6万+/㎡。
来看一下具体户型图——
最后,说一下板块配套——
总体来说,金门路板块的配套相对比较完善。
交通上,附近有金门路、桐泾北路、西环高架等城市主干道,轨交1/2号线也在不远处,出行方便。
商业上,板块附近有石路天虹、华贸中心(在建中)、石路步行街等等,吃喝玩乐购一站式满足。
教育上,金阊外国语学校、彩香实验中学、苏州第五中学、八一小学等学校都在附近,书香氛围浓郁,能够满足适龄儿童的教学需求。
休闲配套上,这里有留园、西园寺、寒山寺等风景名胜,日常休闲去处很多!
苏州保利姑苏瑧悦售楼处电话▓:400-005-0788转接4444(售楼处已认证)
苏州保利姑苏瑧悦营销中心电话▓:400-005-0788转接4444【营销中心】
温馨提示:售楼中心〢预约尊享1V1品鉴礼遇〢匠心钜制-恭迎品鉴〢
免责声明:本文所用信息图片来源于网络,如侵权请联系本网站及时删除
声明:本文由入驻焦点开放平台的作者撰写,除焦点官方账号外,观点仅代表作者本人,不代表焦点立场。
