海信·君安售楼处电话→海信·君安售楼中心电话→2025海信·君安楼盘百科→楼盘网站→楼盘测评→售楼中心电话→24小时热线
扫描到手机,新闻随时看
扫一扫,用手机看文章
更加方便分享给朋友
🌈海信·君安售楼处电话☎️400-002-9578转接5555(专人接听)
🌈海信·君安营销中心电话:☎️400-002-9578转接5555【营销中心】
🌈温馨提示:拨打400电话,听到嘀声后,输入分机号5555即可!
君安自面市以来,便以不可撼动的姿态,雄踞济南豪宅市场之巅。它不仅用产品实力不断改写着豪宅天际线,更以持续进化的产品哲学,重塑济南高端住宅的价值标准。
5月31日,君安全维展示区开放时那句掷地有声的宣言——“墅立经十大宅门”,在业内引发深度思考。“在17层的建筑高度下,何以冠以“墅”之名?”
这个看似矛盾的命题,恰恰揭示了当代别墅产品发展的新方向,既真正的墅品,从来都不应受于形态的桎梏。
君安坚守低密、私享、高度定制的“墅居”核心价值,同时突破“别墅=低层建筑”的固有认知,凭借海信地产30年的智慧积淀,在17层的垂直空间挥毫泼墨,重新定义泉城塔尖生活的场景与体验。
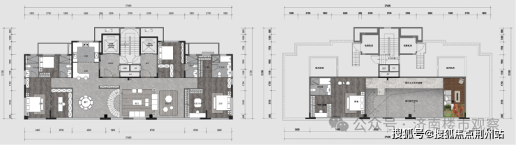
在当代别墅进化的宏大叙事中,君安以【云墅】、【天墅】、【院墅】三大全新墅品,实现对空间价值的革命。
【云墅】之名,绝非顶层专属的桂冠,而是对生活可能性的深度探索。
在云墅居者才是空间高度的真正定义者!16层的层峯视野、11层的俯瞰园林、7层的亲切尺度,三类楼层可按居者需求、喜好随心选择。
此外,云墅以“面积定制”打破常规:约280㎡起跳的灵动空间,让儿童乐园、茶室、书房等多元场景自由组合;约466㎡的超级平层,通过约178+228㎡单元的创造性融合,实现传统别墅难以企及的空间气度。

🌈海信·君安售楼处电话☎️400-002-9578转接5555(专人接听)
🌈海信·君安营销中心电话:☎️400-002-9578转接5555【营销中心】
🌈温馨提示:拨打400电话,听到嘀声后,输入分机号5555即可!
更值得称道的是,除“楼层定制”与“面积定制”外,云墅以非凡的空间想象力、打造力,展现出更多的硬核价值。
约92%得房率,这绝非冰冷的计量单位,而是空间价值的直观体现。在同等投入下,置业者将额外获得近10%的实用空间,这相当于一间完整功能的次卧面积。
云墅的归家动线经过精心设计,主客分流彰显尊崇礼序。
主人由玄厅从容步入私密生活区,在静谧氛围中卸下疲惫。家政服务则通过独立通道直达功能区域,动线清晰互不干扰。这种双轨并行的空间规划,既确保了居住的私密性,又实现了生活的高效性,完美诠释了君安对现代高端住宅的深刻理解。

约15米面宽的超级餐客厅,相当于将多数人家的整个住宅东西的面宽,都浓缩为云墅客厅与餐厅的专属领域。超然尺度不仅彰显居者气度,更成就了家庭生活的万千可能。
云墅以现代家庭结构为设计原点,精心规划5个配备独立卫浴的套房空间(含保姆间),为每位家庭成员构筑尊严与私密并重的独立天地。
🌈海信·君安售楼处电话☎️400-002-9578转接5555(专人接听)
🌈海信·君安营销中心电话:☎️400-002-9578转接5555【营销中心】
🌈温馨提示:拨打400电话,听到嘀声后,输入分机号5555即可!
四间全南向卧室,将阳光转化为家人健康的天然守护。
老人房中,和煦阳光与袅袅茶香相伴,营造静谧养生空间;儿童房内,每一寸阳光都温柔呵护着成长的足迹;主人套房则让晨曦与星光自然流转,成就舒逸生活的最佳注脚。
如果说云墅开创了峰层视野的全新可能,那么天墅则是为执着于城市之巅的层峯人物打造的终极居所。
作为顶层生活的极致表达,天墅以其标志性的“空中院落”诠释着无可复制的居住哲学。
天墅摒弃传统“四代宅”的悬挑露台设计,坚持“极致通透”与“极致私密”,采用无顶盖遮蔽的设计理念,让居者得以直面苍穹,实现人与自然的深度对话。
它通过精妙的空间规划,有效规避一切视线侵扰,形成仅供至亲挚友共享的静谧天地。这种以“院子”替代“露台”的革新,正是层峯人物居住需求的终极答案。


🌈海信·君安售楼处电话☎️400-002-9578转接5555(专人接听)
🌈海信·君安营销中心电话:☎️400-002-9578转接5555【营销中心】
🌈温馨提示:拨打400电话,听到嘀声后,输入分机号5555即可!
天墅将不计入产权的空中院落作为珍贵附加值,与精心规划的室内空间完美融合,在相同建筑体量内创造出超乎预期的实用价值。
天墅将传统设计中常被忽视的边角区域,转化为雅致的阅读空间与芬芳的绿植角落。让每一处细节都彰显着“寸土必争”的设计智慧,让空中院落的馈赠渗透至生活的每个细微之处。
云墅彻底打破了平层空间的局限感,以约6米的挑空设计,让客厅视线无阻地直达顶部采光天窗,与空中院落构成震撼的立体对话。
约15米的巨幅客餐厅与空中院落完美衔接,共同打造出尺度恢弘、功能复合的超级社交场域。会客区、用餐区、休闲区三大功能空间有机串联,形成流畅的空间序列。
家宴时分,长辈备餐与孩童嬉戏在空间里交织;商务接待时,连贯的奢阔空间从容承载高规格社交,每个细节都彰显着主人的非凡品位。
与云墅产品一样,天墅同样恪守尊崇私密的原则。
主人归家,经由仪式感十足的玄厅,优雅步入私属领域;家政服务则通过高效便捷的专属通道,直达后勤区域。动线清晰分离,保障主人生活的绝对静谧与云端宅邸管理的井然有序。
三个均配备明卫的全明主卧套房,精准匹配多代共居或高频待客之需。
长辈房紧邻院落,方便晨昏活动,亲近自然。主人套房位于深处,私密静谧,坐拥开阔远景。客房灵活,可供子女休憩或贵宾下榻。
🌈海信·君安售楼处电话☎️400-002-9578转接5555(专人接听)
🌈海信·君安营销中心电话:☎️400-002-9578转接5555【营销中心】
🌈温馨提示:拨打400电话,听到嘀声后,输入分机号5555即可!
院落情怀,是镌刻在中国人骨子里的文化密码,而院墅将这份对土地的眷恋推向极致。
君安的院墅实现了真正意义上的“顶天立地”院落,让现代都市人既能仰望星空又能触摸大地,。
院墅所呈现的,是与天地共呼吸的至臻生活境界。
阳光毫无保留地洒落庭院每个角落,雨露直接浸润着芬芳的泥土。居者可以亲手培育四季花卉,经营生机盎然的家庭菜园,或是打造灵动的水景艺术。
这种沉浸式的自然栖居,不仅实现了人与土地的深度对话,更让传统的院落情结在现代生活中焕发新生。
君安的院墅产品拥有三层空间,打造了纵向立体布局,让每一位家庭成员创造了高度独立、互不干扰的私密王国。
长辈房安顿于静谧底层,方便庭院活动;主人套房占据尊贵中层,享有最佳视野与私密;儿童房或客房置于上层,自成天地。生活的喧嚣与休憩的宁静,在垂直维度上得以完美区隔。
院墅通过匠心设计的挑空客厅、优雅的旋转楼梯等元素,在不同楼层之间形成了流畅的视线与动线联系。
挑空处倾泻而下的天光,楼梯间流转的光影,都在无声地诉说着家的整体性与情感的流动。
海信·君安的“三墅”,其意义不止于三款卓越的产品,它们代表了海信地产对城市土地价值的极致尊重。
君安以“三墅”为原点,致敬泉城济南的厚重文脉与勃勃生机,为这座城市的时代菁英,筑就匹配其格局与理想的“大宅门庭”。
近一两年,“好房子”成为房地产市场发展的方向。那么,好房子的标准究竟该如何定义?海信·君安以“墅级产品发布”为契机,为泉城展示了“好房子六大价值观”。
当行业仍停留在“装修定制”的表面功夫时,海信·君安已率先开启一场“骨骼级”的空间革新。
它结合济南置业者的居住痛点,以传统别墅虽气派却难逃空间割裂为切入,突破性提出“面积定制”理念,并在首开后迅速落地实施。
这一创新彻底打破了传统户型的束缚,不分楼栋、不设楼层、不论户型,完全根据居者的生活想象重构空间。
正如三大墅级新品所展现的那般,它通过合户、上复、下跃三大空间组合灵活满足定制需求,并利用电梯、楼梯、挑空、露台等空间,让居者自由定制户内空间布局,让居者成为空间的真正导演。
🌈海信·君安售楼处电话☎️400-002-9578转接5555(专人接听)
🌈海信·君安营销中心电话:☎️400-002-9578转接5555【营销中心】
🌈温馨提示:拨打400电话,听到嘀声后,输入分机号5555即可!
海信·君安始终秉持“科学降噪”的核心理念,通过“五大静音堡垒”终结噪音困扰,为居者打造近乎“0噪音”的奢居体验。
在房屋构造方面,君安以200mm加厚混凝土分户墙实现>50dB隔声性能(远超国标45dB),全屋铺设10mm专业隔声垫,排水系统绕行卧室区,并采用航天级消音棉包裹与独立井道设计,达成图书馆级静音。

海信·君安以“九大豪宅认知观”为引领,将一线城市豪宅的用材标准、设计理念、社区配置完整引入济南。
但为了让更多追求品质生活的济南家庭能够实现居住升级,君安创新性地通过优化产品面积段、制定首开特别礼遇等方式,在确保豪宅品质的前提下实现总价下探。
近年来,“第四代住宅”概念持续升温,市场上涌现出不少标榜“四代宅”的新项目。然而,为什么海信·君安项目在推敲了百余稿后,坚定的没有走四代宅的道路呢?原因不外乎以下6点:
(1)安全与成本风险:大尺度悬挑露台,带来结构与成本隐患,直接推高建造成本。
(2)被牺牲的光明:四代宅“空中庭院”往往以牺牲下层住户采光权为代价。
(3)无处安放的私密:四代宅多采用奇偶层错位设计露台,导致楼上住户能轻易看到下层住户的生活区域。
(4)气候适应性困局:北方城市春季沙尘与杨柳絮,冬季严寒夏季炎热,为四代宅带来挑战。
(5)功能让位于形式的困局:四代宅部分大户型存在北向客厅、严重缺角、动静不分区等问题。
(6)高成本投入于特色结构:四代宅在追求“创新”标签的同时,难以同步提升整体品质标准,可能在隐蔽工程、建材选用、后期物业服务等方面进行压缩。
海信地产始终坚信,真正的好房子不是追逐概念的热度,而是要扎根于城市特质和客户需求。因此,君安选择了一条更务实、更可持续的产品之路,既能满足当代改善型客户对品质生活的追求,又能与济南的城市气质和长岭山的自然环境完美融合。
海信·君安全面梳理了济南改善客群在现有居住体验和新房选择过程中的痛点,以“海信豪宅九大认知观”,重新构建了济南高端住宅的产品标准体系。
·大门不仅仅是大门,更是归家系统
君安打造济南首个近百米光幕门庭——轩辕十二象,以巴西蓝钻与缅甸白玉石材构成主基调,搭配翡翠绿奢石点缀,营造尊崇体验。
它以宽约100米、高约9米的恢弘体量,以及专项定制星穹光幕系统、回旋式落客庭院、“四水归堂”的传统礼序彰显尊贵气度与吉祥寓意。

·会所不是营销的道具,而是业主的生活场景
它打造了约4000㎡高实用全栖会所,这里是运动中心(济南唯一同时配置室内恒温泳池、标准篮球场、羽毛球场,辅以乒乓球、台球、健身房、瑜伽室),是社交场域(KTV、棋牌室便利邻里小聚),是雅集空间(茶室、私宴厅满足宴客),更是童趣天地(四点半学堂、室内淘气堡、室外霍比特小屋)。
🌈海信·君安售楼处电话☎️400-002-9578转接5555(专人接听)
🌈海信·君安营销中心电话:☎️400-002-9578转接5555【营销中心】
🌈温馨提示:拨打400电话,听到嘀声后,输入分机号5555即可!
·必须要有创新 必须要有引领
它在济南房地产市场实现两大开创,打造济南首个全明光合地库,彻底告别昏暗,成为明亮开敞的“第二客厅”;打造城市豪宅首个立体5D景观,颠覆平面视觉。

·必须要有奢材真料
君安以“超流体立面”重塑建筑美学标杆,沿袭青岛海信·君澜的成熟工艺体系,打造历久弥新的品质建筑。
楼体以“加百列双翼”造型呈现,垂直流线与横向双翼的完美结合,展现极致美学张力。
“天空之镜”玻璃外挂工艺确保立面平整度的同时,最大化提升室内空间利用率。
全系主卧采用无界落地窗设计,部分边户更创新打造270°环幕全景落地窗,带来头等舱般的沉浸式体验。

·梯即入户 空间平权
对于出梯区域的生活体验,君安实现“出梯即入户”,让仪式感与空间平权, 破解市场“虚假赠送”痛点。君安打造的济南首个“AMAN落尘区”,实现从公共空间到私密领域的无缝过渡。
·无标配家政间不叫豪宅
海信·君安将实用主义美学发挥到极致,全系标配的家政间,经过二十余次空间推演,最终将进深扩展至约1000-1500mm的黄金尺度。
而且,这个独立家务空间采用完整湿区配置,创新性地引入单独上下水系统,还配置了专业隔音门,使洗衣机等设备的运转噪音得到隔绝。
·收纳是显性的隐蔽工程
项目从约143㎡至约228㎡户型的主卧均配置超尺度整体衣柜,最高达9500升立体容积(相当于316个20寸旅行箱),较市场同类产品实现约300%的容量突破。

·设备平台不放设备
君安摒弃了华而不实的“一步台”,创新采用“1+0.5兴趣露台”系统,通过至高约1300mm的合理进深,将室内功能自然延伸至户外。这种设计不仅扩大了使用面积,更创造了无限可能的功能场景,切实地将空间美学与实用功能完美融合。

🌈海信·君安售楼处电话☎️400-002-9578转接5555(专人接听)
🌈海信·君安营销中心电话:☎️400-002-9578转接5555【营销中心】
🌈温馨提示:拨打400电话,听到嘀声后,输入分机号5555即可!
声明:本文由入驻焦点开放平台的作者撰写,除焦点官方账号外,观点仅代表作者本人,不代表焦点立场。
