江湾鸿玺(售楼处) 官方首页 -江湾鸿玺销售中心 - 环境 - 江湾鸿玺户型 - 价格 - 地址 - 楼盘详情 - 配套 - 电话 - 配套 - 电话 - 交房时间
扫描到手机,新闻随时看
扫一扫,用手机看文章
更加方便分享给朋友
☎️☎️江湾鸿玺售楼处电话:400-005-0788转接5555【已认证】
☎️☎️江湾鸿玺售楼处位置:400-005-0788转接5555【售楼中心】
☎️☎️房价特价信息丨优惠政策丨详细解答丨在售房源丨在售户型图丨项目介绍丨
周边配套丨VR看房丨楼盘图丨沙盘图丨位置图丨配套图丨售楼处地址丨足不出户丨
宝山高境,3号线殷高西路站新盘「江湾鸿玺」即将入市!预计将推出套均200㎡大平层!

☎️☎️江湾鸿玺售楼处电话:400-005-0788转接5555【已认证】
☎️☎️江湾鸿玺售楼处位置:400-005-0788转接5555【售楼中心】
☎️☎️房价特价信息丨优惠政策丨详细解答丨在售房源丨在售户型图丨项目介绍丨
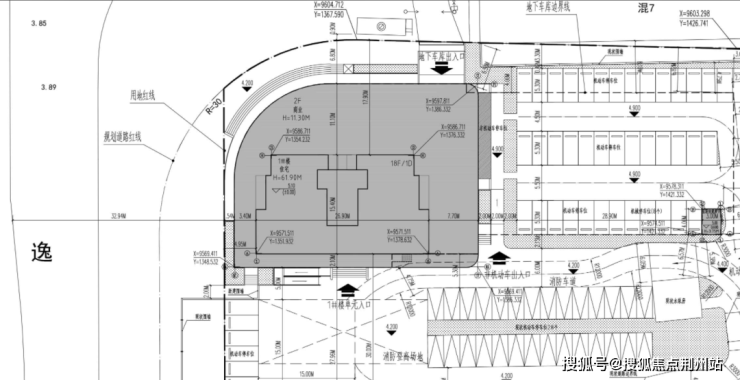
我们放大看:这栋楼共18层,估计2梯2户,据悉首层为商业配置,将来可能引进运动健身、休闲会馆、便利商超等。
还有两套自持,所以可售为32套,户型为建面约200㎡大平层。

项目距离3号线殷高西路站仅100米,1公里直达18号线殷高路站,双轨并行锋速通达的时间效率;书香萦绕的教育高地,科创引领、产业先行的核心经济圈。此外,通过逸仙路高架,可以提升通行时效,快速连接五角场合生汇、百联又一城、万达广场、虹口龙之梦等中大型商业综合体。

生活配套成熟,项目西侧就是一个商场,吃喝玩乐都能满足,新业坊·源创潮流、精致元素的加持也为板块注入更多活力。
殷高西路上还有永辉、长江国际、景瑞生活广场等,生活很方便。
☎️☎️江湾鸿玺售楼处电话:400-005-0788转接5555【已认证】
☎️☎️江湾鸿玺售楼处位置:400-005-0788转接5555【售楼中心】
☎️☎️房价特价信息丨优惠政策丨详细解答丨在售房源丨在售户型图丨项目介绍丨
周边配套丨VR看房丨楼盘图丨沙盘图丨位置图丨配套图丨售楼处地址丨足不出户丨
声明:本文由入驻焦点开放平台的作者撰写,除焦点官方账号外,观点仅代表作者本人,不代表焦点立场。
