平江观梅雅园→(售楼处) 官方→平江观梅雅园售楼中心 - 环境 - 户型 - 价格 - 地址 - 楼盘详情 - 配套 - 电话 - 交房时间 - 配套 - 电话 - 交房时间
扫描到手机,新闻随时看
扫一扫,用手机看文章
更加方便分享给朋友
苏州平江观梅雅园售楼处电话:400-005-0788转6666(已认证)
苏州平江观梅雅园开发商电话:400-005-0788转6666【售楼中心】
温馨提示售楼中心〢预约尊享1V1品鉴礼遇〢匠心钜制-恭迎品鉴〢
温馨提示本项目暂不接受临时到访,过来参观样板房请记得提前来电预约!
根据规划公示显示,该项目将打造11幢住宅,其中9幢3F联排,2幢8F洋房,比较纯粹的低密改善住宅。
点击添加图片描述(最多60个字) 编辑

分布上,联排别墅沿河排开,洋房沿分布,圈层更加纯粹。小区东侧为主出入口,北侧为次出入口,出入口均设计了汽车坡道,是姑苏核心区罕见的地下停车位。
点击添加图片描述(最多60个字) 编辑

项目的外立面让人惊艳,大面积落地玻璃窗+深灰色屋檐+金属线条勾勒,既有现代感又不失姑苏古城古韵底色。
点击添加图片描述(最多60个字) 编辑

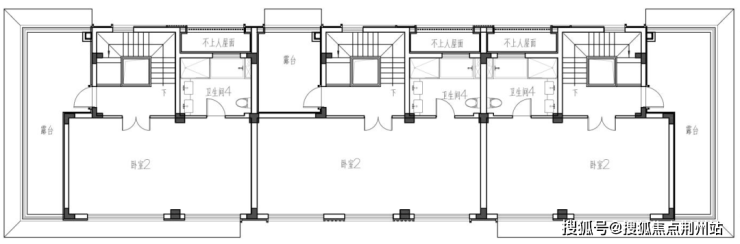
项目户型也同步公示,3F联排南北接口入户,南向面宽近10米。
1F为活动区,餐客厅一体化,中西双厨,干湿分离客卫,预留电梯位,南向卧室,可作为老人房。
点击添加图片描述(最多60个字) 编辑

2F生活区,餐客厅上空挑空,两个独立的卫生间,可根据自己的需求,设计成两个套房。
点击添加图片描述(最多60个字) 编辑

3F为生活区,边户主卧大套房+侧边L型大露台,中间户主卧大套房+北侧露台。让生活充满更多可能。
点击添加图片描述(最多60个字) 编辑

8F洋房户型,4房2厅2卫设计,全屋飘窗,南向面宽约10.2米,四开间朝南,其中3卧室均朝南,并且南向双套房。
南北双阳台,南向双联阳台,保证采光和通风的充足,入户家政间,保证收纳空间。
点击添加图片描述(最多60个字) 编辑

苏地2024-WG-Z46号地块,紧邻护城河,地块占地约1.18万㎡,非常迷你。
点击添加图片描述(最多60个字) 编辑
该地块也是一宗商住混合用地,容积率约1.05,根据出让要求,建筑高度≤40米。
根据拿地要求,该项目建筑立面要与周边区域整体风貌协调,强化建筑“第五立面”设计,立面材质以铝板、石材为主,采用透视围墙。
点击添加图片描述(最多60个字) 编辑

点击添加图片描述(最多60个字) 编辑

点击添加图片描述(最多60个字) 编辑

联排别墅南外立面效果图
项目的外立面让人惊艳,大面积落地玻璃窗+深灰色屋檐+金属线条勾勒,既有现代感又不失姑苏古城古韵底色。
点击添加图片描述(最多60个字) 编辑

平江观梅雅园,位于苏州姑苏区苏站路旁。地块距离轨交6号线梅巷站仅不到100米,一站地铁既可轻松到达拙政园苏博站,逛拙政园和博物馆相当便捷。
附近有城北快速路、北环快速路等交通动脉,可直达园区、姑苏、相城等核心区域,此外还有江宇路、苏站路等交通干道,交通脉络发达。
在商业配套方面,距离最近的大型商业就是平江万达商圈,除此之外,周边的盛博广场、阳光城平江悦等商业设施同样成熟完善,业态丰富多样,项目东北方向还有乐德购购物中心,另外项目还自带商业配套,从日常采购生活用品到周末休闲娱乐,都能轻松满足。
还有苏州市平江中学、苏州大学北校区,万达广场,苏州大学附属第一医院(总院)等,周边各类配套优质齐全,是不可多得的优质宝地。
点击添加图片描述(最多60个字)编辑

苏州平江观梅雅园开发商电话:400-005-0788转6666【售楼中心】
温馨提示售楼中心〢预约尊享1V1品鉴礼遇〢匠心钜制-恭迎品鉴〢
温馨提示本项目暂不接受临时到访,过来参观样板房请记得提前来电预约!
免责声明(本文章所用信息图片来源于网络,如有侵权请联系本网站及时删除)
声明:本文由入驻焦点开放平台的作者撰写,除焦点官方账号外,观点仅代表作者本人,不代表焦点立场。
