保利西源赋(售楼处) 官网 -保利西源赋售楼中心电话 - 环境 - 户型 - 价格 - 地址 - 楼盘详情 - 配套 - 电话 - 交房时间 - 配套 - 电话 - 交房时间
扫描到手机,新闻随时看
扫一扫,用手机看文章
更加方便分享给朋友
☎️☎️保利西源赋售楼处电话:400-005-0788转接5555【已认证】
☎️☎️保利西源赋售楼处位置:400-005-0788转接5555【售楼中心】
☎️☎️房价特价信息丨优惠政策丨详细解答丨在售房源丨在售户型图丨项目介绍丨
周边配套丨VR看房丨楼盘图丨沙盘图丨位置图丨配套图丨售楼处地址丨足不出户丨
保利置业·西源赋效果图
这到底是怎么一回事呢?且听我一一分析。
首先,有人会问,明明房价涨了约100元/方,怎么就买西源赋更划算呢?
买房子不能光看价格,在同样的地段,你还得看产品。
限价时代的产品,3.68万元/方对应的是4000元/方的装标。
而西源赋,作为不限价时代的新产品,在产品力上,已经超越限价时代卖5.5万元/方的申花板块,看齐限价时代卖6.6万元/方的钱二板块了。
要知道这两个板块当初的装标分别是4500元/方和6000元/方。我们就取个平均值按5000元/方估算吧。
西源赋比当初的限价才贵了约100元/方,但装标上至少提升了约1000元/方。
相当于一套建面约139方的房源,你才多花了约1.39万元,但是获得了约13.9万元的加装包升级,你说划算不划算?
整整放大了10倍的收益啊!
你说同样的板块,现在买西源赋是不是比之前买限价盘更划算呢?
02
Real Estate·Little Prince
HZ | 地产小王子
何况,西源赋作为不限价时代的产品,占优势的不仅仅在一个装标上,而是产品力全方位碾压式的领先。
整个项目运用了30多种奢石,光石材成本就超千万。不仅有奥映鸣翠同款的黑色铂金钻奢石、白色白雪公主奢石,还有西源赋特有的提取自西溪湿地绿色主题的莫奈森林奢石,承载着艺术与文化内涵,为整个项目增添高雅、超然的气质。
保利置业·西源赋门头实景图
整个门头约9.1米高,宽约63米,寓意“九九归一,圆满有余”。门头墙面采用铂金钻奢石,彰显阔绰尺度与奢豪感。
约30米长玉光长廊一面是白雪公主透光奢石墙,泛着玉质光泽,承载着历史与文化的厚重感;另一面则是西源赋LOGO与万字纹融合的超级符号金属格栅,一路走进来仿佛进入了一座文化长廊,大气高端,充满仪式感,让你花得每一分钱都获得超值回报。
保利置业·西源赋下沉庭院实景图
项目一共才288户,却造了一个高度近10米(上下两层),体量超2000方的地下室内会所+下沉庭院,恒温泳池、健身房、私宴厅、会客厅、茶室等多种功能齐备。
保利置业·西源赋恒温泳池实景图
约4-4.3米高架空层泛会所也有超约800方的面积,设置了瑜伽室、童玩区,儿童成长区,女王空间等等。
总共超2300方的会所(含架空层泛会所)让业主们与不少6万+豪宅享有同等的配置。
保利置业·西源赋健身房实景图
风雨连廊,奢豪的单元入户厅,下沉庭院中的飞瀑、百年油松,大门口的百年罗汉松,每一处细节,每一处奢材,把西源赋业主们的身价又往上抬高了一大个台阶。
保利置业·西源赋1F大厅效果图
这零零总总,绝非之前同板块限价项目可比。
你只多花了约100元/方,一套建面约139方房子统共才多花了约1.39万,却获得了这么多,你说现在买西源赋,是不是比早两年同板块拼死拼活摇中的限价房,更划算呢?
03
Real Estate·Little Prince
HZ | 地产小王子
如果你以为西源赋只有这些优势,那你又错了。
除了这些看得到的优势外,买西源赋还有你看不到的巨大优势,我来算给你看。
还是以同板块限价时代的大红盘为例,建筑面积约138方得房率在约85%左右,实际套内是约117.3方。
而西源赋受益于建筑新规范,其建筑面积约139方得房率在约87%左右,实际套内是约120.93方。
看出来了吗?
看上去你买限价盘少花了1个平方的钱,单价还便宜约100元/方,但你两套房子实际上得到的面积,西源赋反而要多约3.63方。
对应建约3.68万元/方的单价折算,买西源赋的建筑面积约139方户型,你相当于少掏了13万+的费用啊。

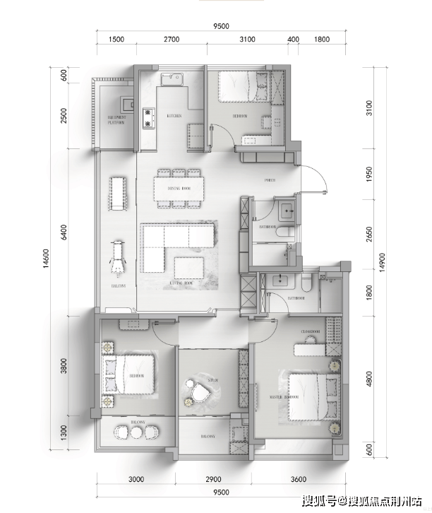
保利置业·西源赋139方户型示意图
如果把之前13.9万装标上的差距算上,同样一套建筑面积约139方户型,买西源赋相当于比买限价盘多获得价值25万+的东西(包括装标和套内实用面积)。这还没算上公区大门会所这些配置的提升。
而且,西源赋建筑面积约139方是边厅户型,采光佳,布局动静分离。
三个卧室朝南,三阳台高配。其中南向双卧带阳台,可以选择扩大室内空间,或者保留晾晒洗衣功能。
☎️☎️保利西源赋售楼处电话:400-005-0788转接5555【已认证】
☎️☎️保利西源赋售楼处位置:400-005-0788转接5555【售楼中心】
☎️☎️房价特价信息丨优惠政策丨详细解答丨在售房源丨在售户型图丨项目介绍丨
周边配套丨VR看房丨楼盘图丨沙盘图丨位置图丨配套图丨售楼处地址丨足不出户丨
声明:本文由入驻焦点开放平台的作者撰写,除焦点官方账号外,观点仅代表作者本人,不代表焦点立场。
