青岛中欧金茂锦棠售楼处电话(中欧金茂锦棠)首页网站-中欧金茂锦棠营销中心欢迎您-楼盘详情·最新价格-户型图-容积率@中欧金茂锦棠售楼处AI热搜
扫描到手机,新闻随时看
扫一扫,用手机看文章
更加方便分享给朋友
青岛中欧金茂锦棠
售楼处电话400-002-9578转接3333(已认证)
营销中心电话400-002-9578转接3333【售楼中心】
营销中心电话400-002-9578转接3333【售楼中心】
温馨提示:售楼中心〢预约尊享1V1品鉴礼遇〢匠心钜制-恭迎品鉴〢
免责声明:【本文所用信息图片来源于网络,如侵权请联系本网站及时删除】
这个项目也一定是个热销项目。
今年5月份,金茂联合高投以3.86亿拿下火炬路南地块,最终项目落子了金茂的棠系产品。
中欧金茂锦棠占地面积约6.26万平,容积率仅有1.6,项目计容建面约10万平。
为了匹配良好的土地指标,金茂结合区域的客群需求以及城市的产品喜好,最终规划为15栋8-11F洋房以及9栋14-17F小高层。
这种纯粹的洋房、小高层组成的高端楼盘,青岛已经多年未见。
从立面效果来看,大面积的窗墙比和公建化立面,让整个中欧金茂锦棠高级感知足。高级灰、鱼肚白的色调与竖向铝板轴线的结合,再加上飘逸的屋顶设计,中欧金茂锦棠的建筑细节处理,非常极致。

虽然景观的细节做法尚未呈现,但是目前来看“参与、自然、立体”应该是中欧金茂锦棠的景观设计原点。
项目景观采用一轴三心六园的递进式布局,设置了南北礼序的双向归家轴,同时融入了项目IP“棠宝”的成长故事线,通过三个园区核心,串联多个生活场景体验空间。

而且项目拥有高新区唯一超2200㎡的全龄友好泛会所,南北两个面积均超大面积的中央草坪,以及多功能全景下沉空间。
会所功能涵盖篮球场、儿童星空剧场、四点半学堂、台球室等,再加上金茂的金质物业服务,通过多维的休闲、娱乐、健身空间,组织多元化人文社群活动等,营造出金茂锦棠全龄友好型美好生活的新场景。
因为地块方正、容积率较低,所以中欧金茂锦棠也拥有较高的户均室外绿地面积。
社区门厅是小区的颜值担当,整个中欧金茂锦棠的社区大门宽约32米,高约6.6米,融合了中轴对称和层层递进的东方哲学。
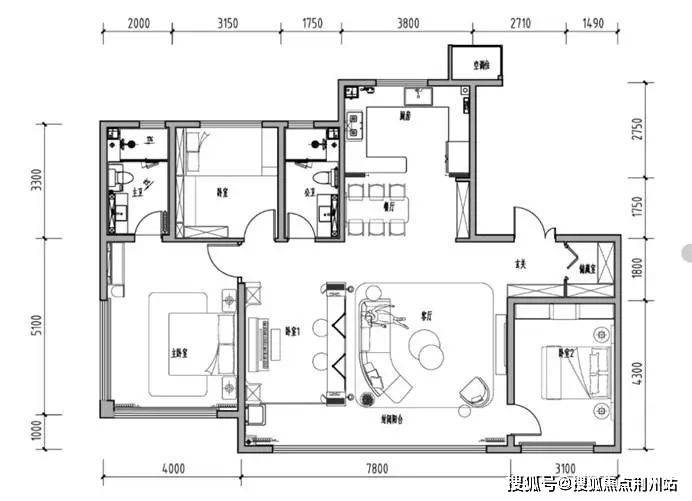
除了建筑精致、园林茂密、空间丰富,户型也是中欧金茂锦棠的优势之一,整个户型面积段达到了125-192㎡,层高全部为3米以上,从这个面积段就可以看出,这是个纯粹的改善楼盘。
以125平的户型为例,户型采用经典的元宝户型,南侧两个卧室独立分区、互不打扰,LDKB一体化的餐客厅设计,让整个户型的公共活动空间非常阔绰。
150平的三南卧户型(整体为四房两厅两卫设计),更是区域内的稀缺产品。入口处的独立储藏间可以让收纳家庭杂物,让室内更加规整有序。
主卧带独立卫生间,整体面积达到了约27平,这样的空间布局可以极大地提升居家舒适度。
青岛中欧金茂锦棠
售楼处电话400-002-9578转接3333(已认证)
营销中心电话400-002-9578转接3333【售楼中心】
营销中心电话400-002-9578转接3333【售楼中心】
温馨提示:售楼中心〢预约尊享1V1品鉴礼遇〢匠心钜制-恭迎品鉴〢
免责声明:【本文所用信息图片来源于网络,如侵权请联系本网站及时删除】
声明:本文由入驻焦点开放平台的作者撰写,除焦点官方账号外,观点仅代表作者本人,不代表焦点立场。
