绿城兴贤澜颂(2026年首发)绿城兴贤澜颂售楼处电话_来电预约看房_绿城兴贤澜颂楼盘详情 - 环境 - 户型 - 价格 - 地址 - 地铁 - 配套 - 电话
扫描到手机,新闻随时看
扫一扫,用手机看文章
更加方便分享给朋友
✅苏州绿城兴贤澜颂
✅售楼处电话:400-005-0788转9999(已认证)
✅售楼处电话:400-005-0788转9999(认证售楼处)
✅温馨提示:本项目暂不接受临时到访,过来参观样板房请记得提前来电预约!
✅免责声明:(本文章所用信息图片来源于网络,如有侵权请联系本网站及时删除)
根据规划,该项目总用地面积:56857平,容 积 率1.2,总 户 数375户。
项目拟建4栋11层洋房,3栋6F叠墅,32栋3层联排别墅,其中洋房为全装修交付,同时社区设计了私密庭院+下沉式会所。
项目大区营造1轴3心8大景观,以“京杭古韵,繁华姑苏”为设计主题,汲取<姑苏繁华图>八景的东方设计美学语言,营造闲适自在的山水园林度假氛围。

下沉式会所营造度假式的生活体验。
合院以金属型材+石材一体板搭配;全户型通透大面积玻璃运用;洋房深浅色调灵动搭配;洋房现代简约线条,舒展挺拔。
合院的中式屋檐,借景框景的建筑结构,合院古铜色金属色调,传统对称建筑结构。

面积段出炉 两种规划户型出炉
绿城兴贤澜颂目前还没有公布官方户型图,不过项目的户型面积段已经发布了!
合院:建筑面积约280、360、410、470平;
叠墅:建筑面积约170、187平上叠/中叠;建筑面积约270、300平下叠;
洋房:建筑面积约117、136、143平;

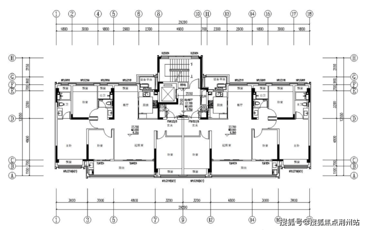
项目此前发布联排和洋房的规划户型图。
联排别墅户型】客厅挑空,大面宽

【洋房户型】四面宽,1梯2户高得房率


浒墅关板块
绿城兴贤澜颂,即苏地2024-WG-Z34号地块,位于高新区经开区(镇)鸿禄路东、中虹路北,属于浒墅关板块!
周边界面来看,其实居住氛围不错,北面是住宅小区阳山花苑,东面是汇金广场和住宅用地,南面是河流。

配套上来看,也是比较成熟的。
交通上来看,项目东面靠近中环西线北延,往南连接中环北线,可快速链接全城,自驾出行比较方便。
公共交通上,东面有有轨电车2号线,往西连接太湖科学城,往东连接苏州新区站,同时可以换乘轨交3号线和6号线,也是比较便捷的!城际出行上,距离苏州新区站比较近。
生活配套上来看,小区东面有汇金广场,同时兴贤路有部分沿街商业,可以满足日常生活所需。大型商业设施上,东面有大润发、兴贤商业广场。此外,靠近新区站附近还有四大国际MALL永旺、宜家、迪卡侬、Costco开市客齐聚于此,构成了集商务休闲、生活购物、餐饮住宿于一体的城市商业综合体系,大大完善板块的商业配套。
教育设施上,项目东面靠近阳山实小、阳山实验初中和吴县中学,东面还有文昌实小等学校。
整体来看,绿城兴贤澜颂是浒墅关比较少的低密项目,浒墅关也很久没有纯新盘入市了,板块目前主力项目还是以高层小高层为主,绿城兴贤澜颂的别墅和洋房配置,将是北新区改善客群的绝佳机会!

✅苏州绿城兴贤澜颂
✅售楼处电话:400-005-0788转9999(已认证)
✅售楼处电话:400-005-0788转9999(认证售楼处)
✅温馨提示:本项目暂不接受临时到访,过来参观样板房请记得提前来电预约!
✅免责声明:(本文章所用信息图片来源于网络,如有侵权请联系本网站及时删除)
声明:本文由入驻焦点开放平台的作者撰写,除焦点官方账号外,观点仅代表作者本人,不代表焦点立场。
