建发璟园官方售楼处电话(苏州建发璟园)官方网站-建发璟园营销中心欢迎您-楼盘详情•最新价格-户型图-容积率@2026.1.24售楼处AI热搜
扫描到手机,新闻随时看
扫一扫,用手机看文章
更加方便分享给朋友
苏州建发·璟园售楼处电话▓:400-005-0788转接4444(售楼处已认证)
苏州建发·璟园营销中心电话▓:400-005-0788转接4444【营销中心】
温馨提示:售楼中心〢预约尊享1V1品鉴礼遇〢匠心钜制-恭迎品鉴〢
免责声明:本文所用信息图片来源于网络,如侵权请联系本网站及时删除
金门路板块多盘供应!低密改善选择多
出了建发新项目,该板块已经集齐了建发璟园、保利姑苏臻悦和瑞嘉商业Z08号地块。
1、建发璟园!姑苏首个宋风四代叠墅!
今年4月,建发以总价约5.3亿拿下金门路北Z47号地块,成交楼面价26054元/㎡,溢价23.77%。
该地块容积率1.15,根据规划,项目拟建8幢4-6F纯叠墅,其中1栋4F,1栋5F,6栋6F。户型建筑面积约200-240㎡。

据悉,项目为四代墅设计,也是建发在苏州打造的首个宋韵别墅产品!目前案名已经曝光,为建发璟园!


感受一下户型图——
下叠

上叠

中叠

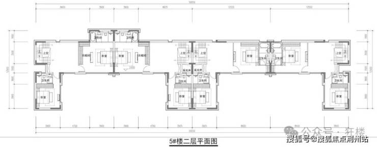
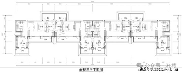
2、瑞嘉商业地块,打造4幢联排+1幢洋房!
2024年7月,苏州瑞嘉商业发展有限公司以总价1.3亿,拿下金门路Z08号地块,成交楼面地价20500元/㎡。
该地块容积率1.2,此前地块规划已出炉。根据规划,该地块打造4栋联排+1栋洋房,仅20多套房。
来看一下公示的户型图——
7号楼
5号楼
苏州建发·璟园售楼处电话▓:400-005-0788转接4444(售楼处已认证)
苏州建发·璟园营销中心电话▓:400-005-0788转接4444【营销中心】
温馨提示:售楼中心〢预约尊享1V1品鉴礼遇〢匠心钜制-恭迎品鉴〢
免责声明:本文所用信息图片来源于网络,如侵权请联系本网站及时删除
声明:本文由入驻焦点开放平台的作者撰写,除焦点官方账号外,观点仅代表作者本人,不代表焦点立场。
