保利琅誉·售楼处电话_来电预约看房_余姚保利琅誉楼盘详情-(2026年首发)-交房时间-看房预约通道@2026.04.20--请提前来电预约!
扫描到手机,新闻随时看
扫一扫,用手机看文章
更加方便分享给朋友
⭕余姚保利琅誉
⭕售楼处电话:400-005-0788转9999(已认证)
⭕售楼处电话:400-005-0788转9999(认证售楼处)
⭕温馨提示:本项目暂不接受临时到访,过来参观样板房请记得提前来电预约!
⭕免责声明:(本文章所用信息图片来源于网络,如有侵权请联系本网站及时删除)
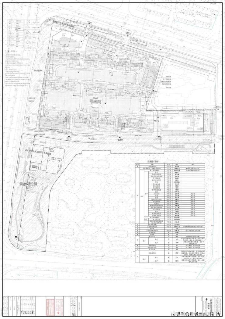
近日,谭家岭东路南侧、城东路东侧地块商住用房建设项目规划设计方案于余姚市自然资源和规划局官网公示,有关内容如下:
项目总用地面积67726㎡,总建筑面积197037.3㎡(地上134113.43㎡、地下62923.87㎡),容积率1.9,建筑密度32.10%,绿地率30%,共规划住户605户。
项目(住宅)共由10幢小高层组成,楼层数为15、16以及25层,据总平图显示小区设置下沉庭院、景观水池、喷泉广场等配套设施。此外项目北侧以及东南侧另有商业配套规划,并且南侧将带建体育公园。
项目人行主要出入口、车行出入口位于南侧的规划道路上,另谭家岭东路规划有人行出入口以及消防出口。项目规划机动车位1801个(地上121、地下1680),非机动车位2102个(地上624、地下1478)。
⭕余姚保利琅誉
⭕售楼处电话:400-005-0788转9999(已认证)
⭕售楼处电话:400-005-0788转9999(认证售楼处)
⭕温馨提示:本项目暂不接受临时到访,过来参观样板房请记得提前来电预约!
⭕免责声明:(本文章所用信息图片来源于网络,如有侵权请联系本网站及时删除)
声明:本文由入驻焦点开放平台的作者撰写,除焦点官方账号外,观点仅代表作者本人,不代表焦点立场。
